Contact Agent
Contact Ulster Property Sales (UPS) Andersonstown
4 Bed Detached House
14 Ballycolin Road
West Belfast, BT17 0NN
price
£2,200pm
Key Features & Description
Striking detached residence perfectly positioned on this magnificent elevated site
Three bedrooms in the main property
White bathroom suite on the ground floor
Bright and airy living room that features beautiful, elevated views
Kitchen which is open plan to a sizeable dining/entertaining area
Annex has a large living room, a good-sized bedroom and a separate utility
Oil-fired central heating / UPVC double glazing / ample off-road car parking
Extensive, well-maintained grounds surrounded by beautiful open countryside and offering a most peaceful setting
Convenient to Belfast, Lisburn and arterial routes
Description
An exceptional opportunity to rent this impressive detached home, occupying a generous elevated plot with far-reaching panoramic views, set within a peaceful and highly private countryside location.
Offering approximately 2,300 sq ft of flexible living space, the property is well suited to a variety of tenants seeking both space and tranquillity, without compromising on convenience. Andersonstown and Lisburn are both within a 10-minute drive, while Belfast International Airport can be reached in around 18 minutes and Belfast City Airport in approximately 22 minutes.
The main residence comprises three spacious bedrooms. The principal bedroom is located on the first floor and benefits from a large en-suite bathroom. Bedrooms two and three both include en-suite W.C. facilities, with the third bedroom conveniently positioned on the ground floor. A stylish main bathroom with contemporary tiling and spotlights is also located on this level.
The living accommodation is bright and welcoming, with large windows that take full advantage of the elevated setting and surrounding views. The layout flows into an open-plan kitchen and dining area, creating an ideal space for everyday living and entertaining.
A key feature of the property is the self-contained annex, which can be accessed internally or via its own private entrance. This space includes a well-proportioned living room with double doors, a comfortable bedroom, and access to a utility, storage, and study area-offering excellent flexibility for guests, extended family, or working from home.
Externally, the home is surrounded by extensive, well-kept grounds, along with a raised decking area that provides the perfect spot to relax and enjoy the scenic outlook.
Properties of this nature are rarely available to rent, and early viewing is strongly recommended!
An exceptional opportunity to rent this impressive detached home, occupying a generous elevated plot with far-reaching panoramic views, set within a peaceful and highly private countryside location.
Offering approximately 2,300 sq ft of flexible living space, the property is well suited to a variety of tenants seeking both space and tranquillity, without compromising on convenience. Andersonstown and Lisburn are both within a 10-minute drive, while Belfast International Airport can be reached in around 18 minutes and Belfast City Airport in approximately 22 minutes.
The main residence comprises three spacious bedrooms. The principal bedroom is located on the first floor and benefits from a large en-suite bathroom. Bedrooms two and three both include en-suite W.C. facilities, with the third bedroom conveniently positioned on the ground floor. A stylish main bathroom with contemporary tiling and spotlights is also located on this level.
The living accommodation is bright and welcoming, with large windows that take full advantage of the elevated setting and surrounding views. The layout flows into an open-plan kitchen and dining area, creating an ideal space for everyday living and entertaining.
A key feature of the property is the self-contained annex, which can be accessed internally or via its own private entrance. This space includes a well-proportioned living room with double doors, a comfortable bedroom, and access to a utility, storage, and study area-offering excellent flexibility for guests, extended family, or working from home.
Externally, the home is surrounded by extensive, well-kept grounds, along with a raised decking area that provides the perfect spot to relax and enjoy the scenic outlook.
Properties of this nature are rarely available to rent, and early viewing is strongly recommended!
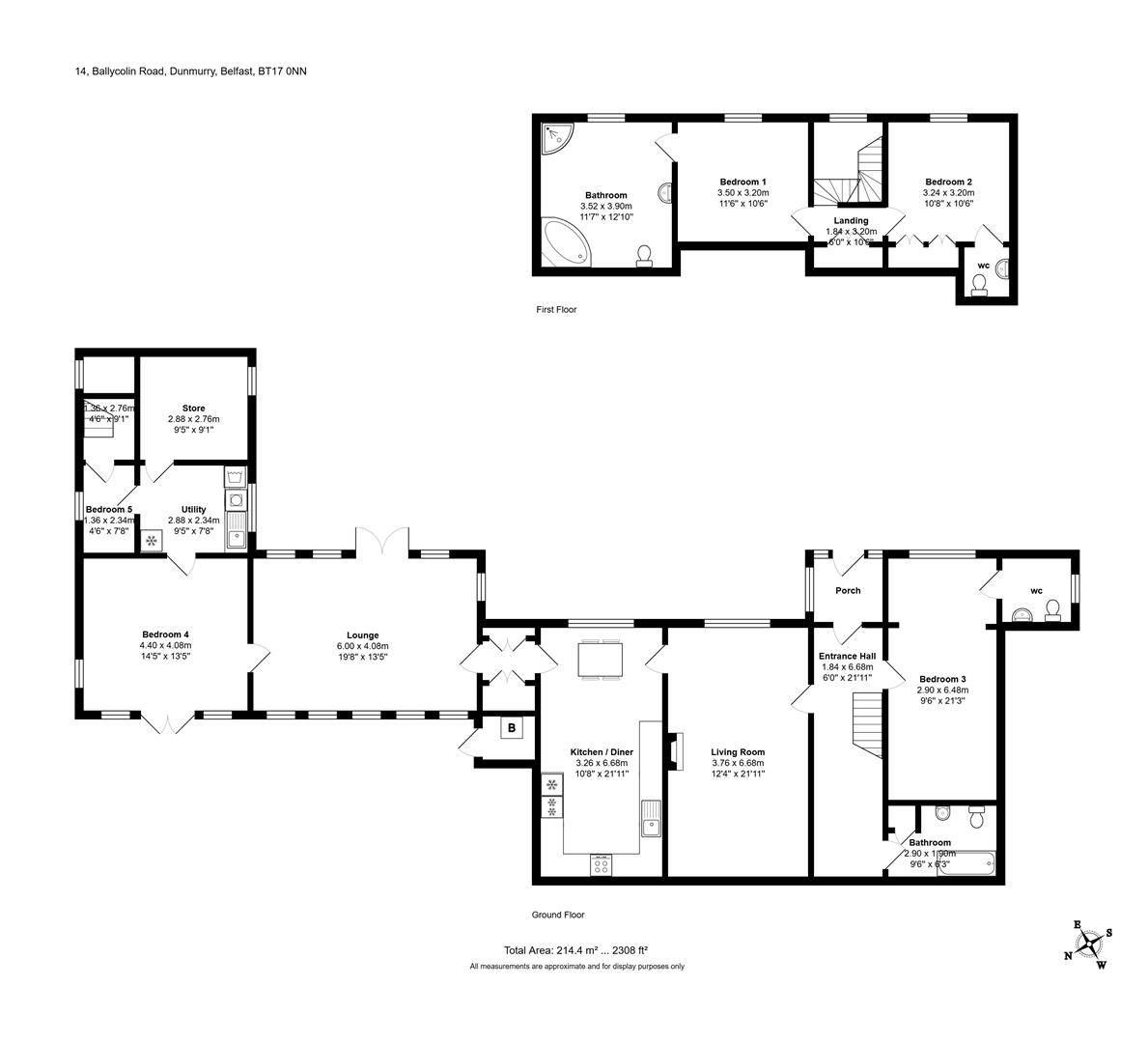
Rooms
GROUND FLOOR
Upvc double glazed front door to;
ENTRANCE PORCH
Tiled floor, pvc stripped ceiling, spotlights, inner door to;
SPACIOUS AND WELCOMING ENTRANCE HALL
Tiled floor, spotlights.
BEDROOM 3 21'3 X 9'11 (6.48m X 3.02m)
Beautiful views, built-in robes.
ENSUITE W.C
Low flush w.c., pedestal wash hand basin, chrome effect sanitary ware, partially tiled walls, wooden effect strip floor, PVC stripped ceiling.
WHITE BATHROOM SUITE
Tiled panelled bath, electric shower unit, low flush w.c, wash hand basin, chrome effect sanitary ware, beautiful tiled walls and floor, extractor fan, spotlights, pvc stripped ceiling, hotpress / storage.
LIVING ROOM 22'0 X 12'5 (6.71m X 3.78m)
Tiled floor, spotlights, beautiful elevated views.
KITCHEN / DINING AREA 21'6 X 10'6 (6.55m X 3.20m)
Range of high and low level units, single drainer 1 1/2 bowl sink unit, built-in oven, built-in microwave, built-in hob, extractor fan, integrated washer/dryer, partially tiled walls, tiled floor, spotlights, open plan to sizeable dining / entertaining area, beautiful views. (Access to annex.)
FIRST FLOOR
PRINCIPLE BEDROOM 1 12'1 X 11'5 (3.68m X 3.48m)
Beautiful views, wood panelled walls, pvc stripped ceiling. Access to;
PRIVATE ENSUITE BATHROOM
Corner Jacuzzi-type bath, separate shower cubicle, electric shower unit, low flush w .c, pedestal wash hand basin, chrome effect sanitary ware, spotlights.
BEDROOM 2 (10'610'5 X )
Beautiful views, built-in robes..
ENSUITE W.C
Low flush w.c, wash hand basin, extractor fan, laminated wood effect floor, tiled walls, pvc stripped ceiling.
ANNEX
LIVING ROOM 21'9 X 13'3 (6.63m X 4.04m)
Wooden effect strip floor, wood strip ceiling, Upvc double glazed double doors, beautiful views. Access to;
BEDROOM 4 14'11 X 13'2 (4.55m X 4.01m)
Upvc double glazed double doors leading to garden. Access to;
KITCHENETTE / UTILITY 10'1 X 8'9 (3.07m X 2.67m)
Single drainer stainless steel sink unit, laminated wood effect floor, plumbed for washing machine.
Store 11'6 X 8'11 (3.51m X 2.72m)
STUDY AREA
Stairs to;
ROOFSPACE / STORAGE AREA
OUTSIDE
Beautiful green "backdrop", privately enclosed, well-maintained rear garden and patio areas, additional loose stone garden. Well-maintained, mature gardens to front; flagged patios; features elevated decking, barn/storage, and ample off-road car parking. Magnificent views.
Broadband Speed Availability
Potential Speeds for 14 Ballycolin Road
Max Download
10000
Mbps
Max Upload
10000
MbpsThe speeds indicated represent the maximum estimated fixed-line speeds as predicted by Ofcom. Please note that these are estimates, and actual service availability and speeds may differ.
Property Location
Contact Agent
Contact Ulster Property Sales (UPS) Andersonstown
Request More Information
Requesting Info about...
14 Ballycolin Road, West Belfast, BT17 0NN
By registering your interest, you acknowledge our Privacy Policy
By registering your interest, you acknowledge our Privacy Policy