Contact Agent
Contact Ulster Property Sales (UPS) Andersonstown
4 Bed Detached House
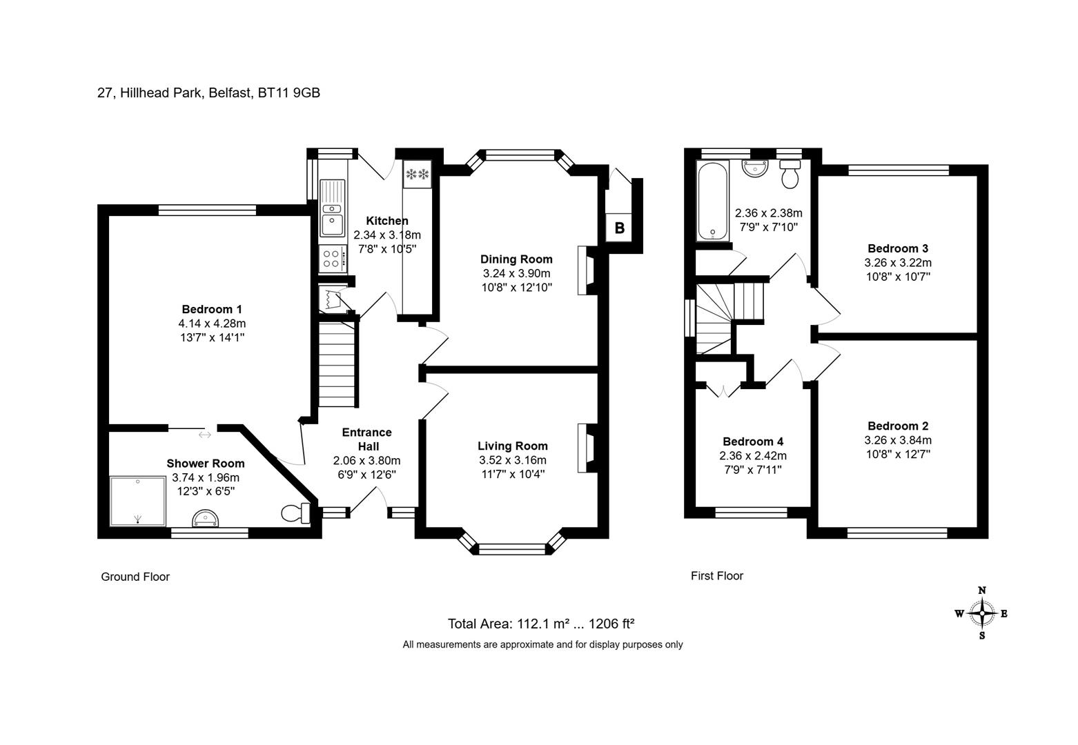
27 Hillhead Park
West Belfast, Stewartstown Road, BT11 9GB
offers around
£304,950
Key Features & Description
A superior well appointed extended detached family home that commands a spacious corner position with this highly regarded area.
Four comfortable bedrooms and two reception rooms or alternatively three bedrooms and three reception rooms.
Luxury fitted Kitchen
Downstairs shower room.
White bathroom suite.
Upvc double glazed windows / eaves and fascia also in Upvc.
Oil fired central heating.
Large detached garage
Private landscaped corner site with driveway / access to rear with ample car parking.
Description
A superior extended, well appointed substantial detached family home that commands an extensive landscaped corner position within this highly regarded established residential area. Four comfortable double bedrooms and two separate reception rooms or alternatively three bedrooms and three reception rooms. Ensuite shower room. Fitted kitchen. White bathroom suite. Feature internal doors. Upvc double glazed windows / eaves and fascia also in Upvc. Oil fired central heating system. Large detached garage. Extensive private landscaped site with feature paviours, neat lawns to boundary hedging and a driveway offering ample car parking with access to rear / double gates. Tremendous doorstep convenience within close proximity to leading Schools, Shops and a short walk to excellent transport links to include the Glider service and the abundance of amenities in Andersonstown that include cafes, restaurants and state-of-the-art leisure facilities. A family home with warmth and character throughout that can only be fully appreciated upon viewing. Well worth a visit. Chain free.
A superior extended, well appointed substantial detached family home that commands an extensive landscaped corner position within this highly regarded established residential area. Four comfortable double bedrooms and two separate reception rooms or alternatively three bedrooms and three reception rooms. Ensuite shower room. Fitted kitchen. White bathroom suite. Feature internal doors. Upvc double glazed windows / eaves and fascia also in Upvc. Oil fired central heating system. Large detached garage. Extensive private landscaped site with feature paviours, neat lawns to boundary hedging and a driveway offering ample car parking with access to rear / double gates. Tremendous doorstep convenience within close proximity to leading Schools, Shops and a short walk to excellent transport links to include the Glider service and the abundance of amenities in Andersonstown that include cafes, restaurants and state-of-the-art leisure facilities. A family home with warmth and character throughout that can only be fully appreciated upon viewing. Well worth a visit. Chain free.
Rooms
GROUND FLOOR
Feature Upvc double glazed entrance door to;
ENTRANCE HALL
Wooden effect strip floor, cornicing.
LOUNGE 12'3 X 11'3 (3.73m X 3.43m)
Feature fireplace, wooden effect strip floor, bay window.
LIVING ROOM 12'8 X 10'7 (3.86m X 3.23m)
Feature fireplace with inset and hearth, feature wooden block flooring, cornicing, bay window.
LUXURY FITTED KITCHEN 11'6 X 7'8 (3.51m X 2.34m)
Range of high and low level units, formica work surfaces, single drainer stainless steel sink unit, tiling, ceramic tiled floor, 4 ring hob, underoven, overhead extractor hood, storage understairs, plumbed for washing machine, extractor hood, feature corner window.
EXTENDED BEDROOM 4 / FAMILY ROOM 15'5 X 13'7 (4.70m X 4.14m)
Wooden effect strip floor.
ENSUITE SHOWER ROOM
Fully tiled shower facility, pedestal wash hand basin, low flush w.c, tiling, electric shower unit.
FIRST FLOOR
BEDROOM 1 12'6 X 11'3 (3.81m X 3.43m)
BEDROOM 2 11'3 X 10'9 (3.43m X 3.28m)
Wash hand basin with vanity unit.
BEDROOM 3 8'4 X 7'6 (2.54m X 2.29m)
Built-in robes.
WHITE BATHROOM SUITE
Panelled bath, electric shower unit, pedestal wash hand basin, tiling low flush w.c, tiling, ceramic tiled floor, hotpress with copper cylinder.
OUTSIDE
Extensive mature landscaped corner site, with high hedges, driveway with feature paviours and double gates to rear, ample car parking space, housed oil fired boiler and pvc tank.
LARGE DETACHED GARAGE
Up and over door
Broadband Speed Availability
Potential Speeds for 27 Hillhead Park
Max Download
1800
Mbps
Max Upload
220
MbpsThe speeds indicated represent the maximum estimated fixed-line speeds as predicted by Ofcom. Please note that these are estimates, and actual service availability and speeds may differ.
Property Location
Mortgage Calculator
Contact Agent
Contact Ulster Property Sales (UPS) Andersonstown
Request More Information
Requesting Info about...
27 Hillhead Park, West Belfast, Stewartstown Road, BT11 9GB
By registering your interest, you acknowledge our Privacy Policy
By registering your interest, you acknowledge our Privacy Policy