Contact Agent

Contact Ulster Property Sales (UPS) Andersonstown

Contact Ulster Property Sales (UPS) Andersonstown

3 Bed End Terrace

1 Navan Green

West Belfast, Andersonstown, BT11 8JR

offers around £159,950
  • Status Sale Agreed
  • Property Type End Terrace
  • Bedrooms 3
  • Receptions 1
  • Bathrooms 1
  • EPC Rating E53 / C78
  • Stamp Duty
    Higher amount applies when purchasing as buy to let or as an additional property
    £699 / £8,697*
  • Typical Mortgage
    Click price to use our mortgage calculator
EPC Rating

Key Features & Description

A comfortable, well maintained and presented end town house that enjoys an extensive site within this popular location.
Three good, bright, well appointed bedrooms.
One generous reception room with feature bay window.
Large fitted kitchen open to a casual dining area.
Upvc double glazed windows.
Oil fired central heating system.
White shower suite.
Feature double gates to car parking / driveway.
Extensive, private and mature rear gardens.
Chain free / Well worth a visit.
Description
A comfortable, well maintained and presented end town house that enjoys an extensive site within this popular established location. Three good, bright, well appointed bedrooms. One generous reception room with feature bay window. Large fitted kitchen open to a casual dining area. Upvc double glazed windows. Oil fired central heating system. White shower suite. Feature double gates to car parking / driveway. Extensive, private and mature rear gardens. Excellent doorstep convenience close to a wide range of amenities to include leisure facilities, local schools, shops, medical services, excellent transport links and the Glider service all within easy walking distance. Well worth a visit. Chain free.

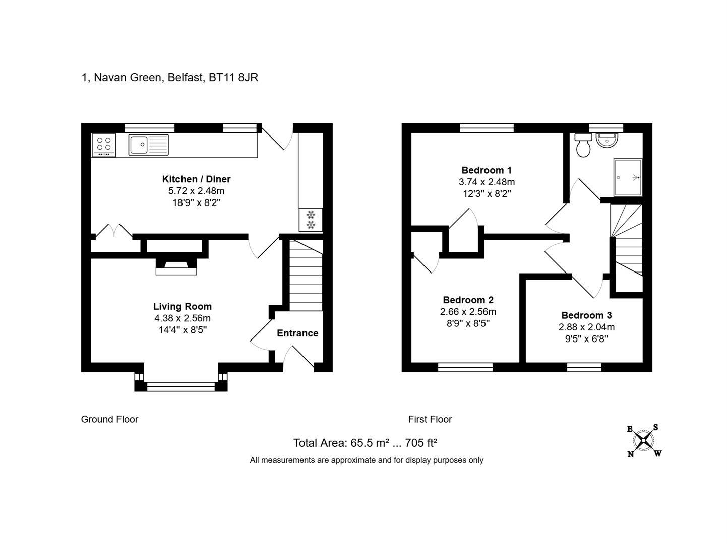
Rooms

GROUND FLOOR
OPEN ENTRANCE PORCH Feature entrance door to;
ENTRANCE HALL Wooden effect strip floor.
LOUNGE 15'0 X 12'1 (4.57m X 3.68m) Feature fireplace with inset and hearth, wooden effect strip floor. bay window.
LARGE FITTED KITCHEN / DINING AREA 19'5 X 8'6 (5.92m X 2.59m) Range of low level units, formica work surfaces, tiling, sink unit, ceramic tiled floor, 4 ring ceramic hob, overhead extractor hood, plumbed for washing machine.
FIRST FLOOR
BEDROOM 1 13'6 X 8'6 (4.11m X 2.59m) Built-in robe, hotpress with copper cylinder.
BEDROOM 2 13'6 X 10'2 (4.11m X 3.10m) Built-in robe.
BEDROOM 3 8'6 X 9'6 (2.59m X 2.90m)
WHITE SHOWER SUITE Feature Shower facility, low flush w.c, sink unit, tiling.
OUTSIDE Feature double gates to driveway, car parking front and side, private and secure rear gardens with lawns, flagging and paving. Mature hedging, Feature outhouse, oil fired boiler and pvc tank.

Broadband Speed Availability

Ultrafast

Potential Speeds for 1 Navan Green

Max Download
10000
Mbps
Max Upload
10000
Mbps
The speeds indicated represent the maximum estimated fixed-line speeds as predicted by Ofcom. Please note that these are estimates, and actual service availability and speeds may differ.

Property Location

Show Map

Mortgage Calculator

Disclaimer: The following calculations act as a guide only, and are based on a typical repayment mortgage model. Financial decisions should not be made based on these calculations and accuracy is not guaranteed. Always seek professional advice before making any financial decisions.

Contact Agent

Contact Ulster Property Sales (UPS) Andersonstown

Contact Ulster Property Sales (UPS) Andersonstown

Request More Information
Requesting Info about...
1 Navan Green, West Belfast, Andersonstown, BT11 8JR 1 Navan Green, West Belfast, Andersonstown, BT11 8JR

By registering your interest, you acknowledge our Privacy Policy