Contact Agent

Contact GOC Estate Agents

Contact GOC Estate Agents

4 Bed Semi-Detached House

242 Malone Road

Belfast, BT9 5LR

offers over £525,000
  • Status Sale Agreed
  • Property Type Semi-Detached
  • Bedrooms 4
  • Receptions 1
  • Heating GFCH
  • EPC Rating C80 / B87 -
  • Stamp Duty
    Higher amount applies when purchasing as buy to let or as an additional property
    £16,250 / £42,500*
  • Typical Mortgage
    Click price to use our mortgage calculator
EPC Rating

Key Features & Description

A Well Presented Semi Detached Villa, Built 2010
Modern Hallway with Polished Tiled Floor
Lounge with Oak Strip Flooring and Hole in the Wall Fireplace
Study/Gymn/Bedroom 4 on the Ground Floor
Modern High Gloss Kitchen with Corrian Worktops open plan to Dining Area
Three Bedrooms including Master with Ensuite shower room & Walk in Dressing Room
Luxury Fully Tiled Bathroom
Gas Central Heating, UPVc Double Glazed Windows with Kingspan Solar Panels for Hot Water
Electric Double Gates leading to enclosed Driveway
Large Paved patio Area to the Rear with Lawns and Garden Room
Popular Location , Convenient to Shaws Bridge, Barnetts Park
Description
We are delighted to bring to the market this beautiful home that was newly built in 2010. Offering excellent accommodation with private gardens to the rear overlooking Lagan Valley and Barnetts Park.Close to an array of many walks along the tow path.

Comprising of well proportioned modern accommodation including an open plan Kitchen, Living, Dining Room that has patio doors leading out to enclosed garden space with lawns beyond and has the benefit of an outdoor space with multiple usage.There are three bedrooms on the first floor , master with en suite and dressing room.Bathroom and excellent attic space.

Situated in a convenient location off Upper Malone Road, easy access to main arterial routes. We would recommend viewing.

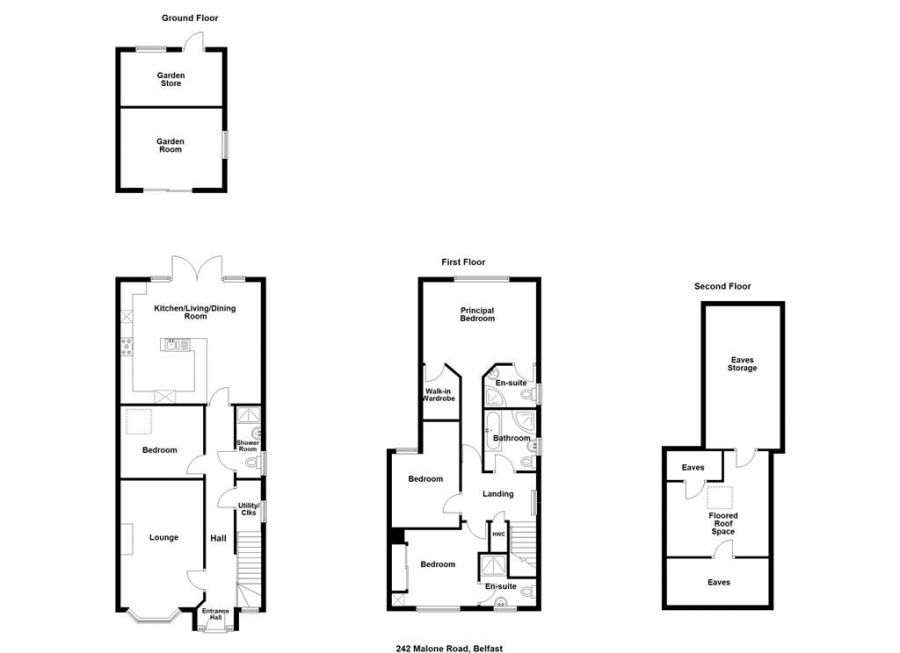
Rooms

HALLWAY: Polished tiled floor with border mosiac tiles.uPVC front door with side panels.Feature low lighting.
UTILITY ROOM: Plumbed for washing machine, gas boiler and tiled floor.
SHOWER ROOM: Comprising of vanitry unit, low flush wc,tiled shower cubical with thermostat shower, heated towel rail.
LOUNGE: 19' 0" X 11' 2" (5.79m X 3.40m) Oak flooring, hole in the wall brick fireplace and low voltage lighting.
STUDY/BEDROOM 4; 11' 6" X 9' 6" (3.51m X 2.90m) Polished tiled floor.TV point and velux window.
MODERN FITTED KITCHEN/LIVING/DINING: 19' 7" X 17' 1" (5.97m X 5.21m) Range of high and low level units,corrian work surfaces, curved breakfast bar.1.5 stainless steel sinkwith waste disposal unit, 5 ring hob with stainless steel splash back and matching cooker hood.Built in dishwasher, microwave, oven and glazed display cabinet.Tiled floor throughout, low voltage lighting.Double patio doors leading out to the rear gardens.
LANDING: Tiled stairs leading to first floor.Velux window, hotpress and access to floored roofspace.
BATHROOM: Comprising of panel bath, heated towel rail, corner showe cubical with thermostaically controlled shower, wash hnad basin. Low flush wc and bathroom mirror.
BEDROOM (1): 23' 4" X 16' 0" (7.11m X 4.88m) Oak flooring, walk in dressing room.Views over Lagan Valley. Ensuite Shower Room: Comprising of corner shower cubicle, thermostaically controlled, over head rain shower.Heated towel rail. Low flush wc and wash hand basin.
BEDROOM (2): 12' 2" X 11' 1" (3.71m X 3.38m) Oak flooring. Ensuite: Fully tiled shower cubical, low flush wc, wash hand basin.Fully tiled.heated towel rail.
BEDROOM (3): 14' 5" X 9' 0" (4.39m X 2.74m) Oak flooring.
GARDEN STORE: 13' 8" X 7' 0" (4.17m X 2.13m) Large brick pavior area with decked area beyond, leading to a garden room. Outside lighting.Hot and cold water supply. Double electric gates to the front leading to tarmac driveway and pebbled beds.

Broadband Speed Availability

Ultrafast

Potential Speeds for 242 Malone Road

Max Download
10000
Mbps
Max Upload
10000
Mbps
The speeds indicated represent the maximum estimated fixed-line speeds as predicted by Ofcom. Please note that these are estimates, and actual service availability and speeds may differ.

Property Location

Show Map

Mortgage Calculator

Disclaimer: The following calculations act as a guide only, and are based on a typical repayment mortgage model. Financial decisions should not be made based on these calculations and accuracy is not guaranteed. Always seek professional advice before making any financial decisions.

Directions

242 is on the Malone Road is at the House of Sport round a bout.

Contact Agent

Contact GOC Estate Agents

Contact GOC Estate Agents

Request More Information
Requesting Info about...
242 Malone Road, Belfast, BT9 5LR 242 Malone Road, Belfast, BT9 5LR

By registering your interest, you acknowledge our Privacy Policy