Contact Agent

Contact Templeton Robinson (Lisburn Road)

Contact Templeton Robinson (Lisburn Road)

4 Bed Detached Bungalow

16 Old Coach Road

Upper Malone Road, Belfast, BT9 5PR

offers over £535,000
  • Status For Sale
  • Property Type Detached Bungalow
  • Bedrooms 4
  • Receptions 3
  • Heating Gas
  • EPC Rating C72 / B81 -
  • Stamp Duty
    Higher amount applies when purchasing as buy to let or as an additional property
    £16,750 / £43,500*
  • Typical Mortgage
    Click price to use our mortgage calculator
EPC Rating

Key Features & Description

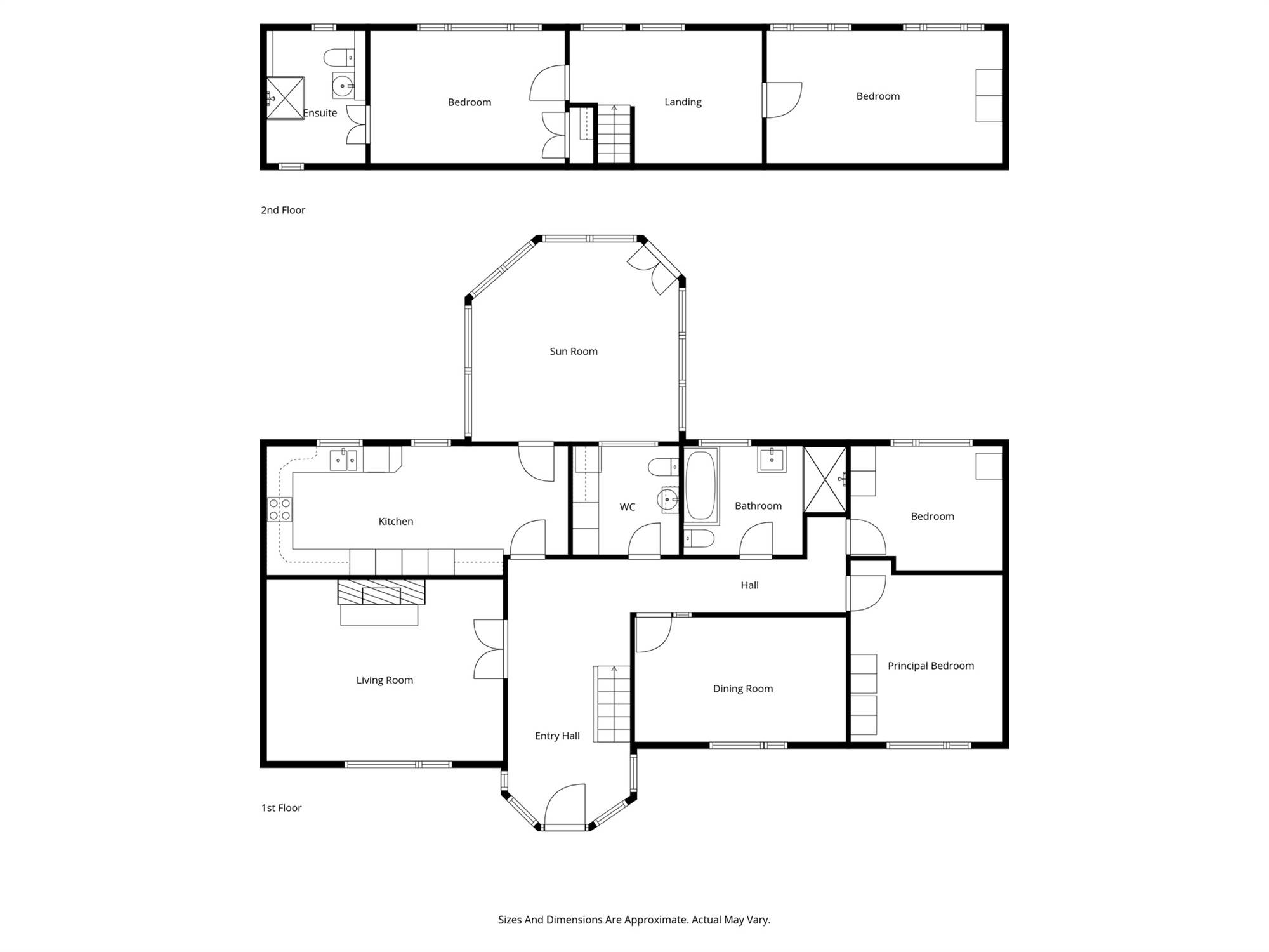
Detached Chalet Bungalow on Super Landscaped Site in Prime Upper Malone Road Location
Close to Many Local Amenities in the Area Including Shops, Restaurants, Cafes and Parks
Spacious Entrance Hall
Lounge with Attractive Ornate Fireplace with Wood Strip Floor
Modern Fitted Kitchen with Range of Integrated Appliances Open Plan to Casual Dining Area
Formal Dining Room
Uitlity Room & Cloakroom/wc
Sun Room with Double Doors to Rear Gardens
Four Well Proportioned Bedrooms
Modern Bathroom and Further Shower Room
Gas Heating / Double Glazed Windows
Large Stoned Parking and Turning Area for Several Cars
Beautiful Landscaped Gardens to the Front and Rear with Lawns, Raised Beds in Shrubs, Bushes and Trees and Rear Paved & Stoned Patio Area
Superb Convenient Location Just off the Upper Malone Road Close to Lady Dixon Park and Malone Golf Club
Description
Spacious chalet bungalow in popular Upper Malone Road location close to many local amenities including; shops, bars, restaurants, public transport and Lady Dixon Park and the Tow Path. The property is well presented throughout and adaptable accomodation.
Briefly the accommodation comprises; entrance hall, lounge with attractive feature fireplace, modern fitted kitchen open plan to casual dining area, utility room and cloakroom/wc, formal dining room and sun room. There are four well proportioned bedrooms, modern bathroom and further shower room.
Externally there is large stoned driveway parking for several cars, detached garage and landscaped front and rear gardens with spacious lawns, large stone and paved patio area.
An opportunity to purchase a home in this exclusive location, viewing is highly recommended.

Rooms

uPVC front door to . . .
ENTRANCE HALL: Wood strip floor, cornice ceiling. Double doors and glazing to . . .
LOUNGE: 17' 10" X 13' 6" (5.44m X 4.11m) (at widest points). Wood strip floor, attractive ornate fireplace with marble inset an hearth, gas coal effect fire, cornice ceiling.
MODERN FITTED KITCHEN & DINING AREA: 22' 11" X 11' 10" (6.98m X 3.61m) (at widest points). Range of high and low level units, granite work surfaces and drainer, 1.5 bowl ceramic sink unit,waste disposal unit, integrated Normende hob, stainless steel extractor fan, integrated fridge freezer, integrated dishwasher, combi microwave/oven and warming tray, integrated Neff single fan oven, granite splashback, laminate wood effect floor, low voltage spotlights, uPVC door to rear.
SUN ROOM: 15' 2" X 14' 5" (4.62m X 4.39m) Wood strip floor, uPVC double doors to rear.
DINING ROOM: 16' 0" X 9' 4" (4.88m X 2.84m) (at widest points). Wood strip floor, cornice ceiling.
UTILITY ROOM & CLOAKROOM: Range of high and low level units, work surfaces, plumbed for washing machine, gas boiler, low flush wc, vanity unit with wash hand basin, ceramic tiled floor, part uPVC panelled wall.
BEDROOM (1): 13' 4" X 11' 5" (4.06m X 3.48m) (at widest points).
BEDROOM (2): 11' 5" X 9' 5" (3.48m X 2.87m) (at widest points).
MODERN BATHROOM: White suite comprising low flush wc, vanity unit with wash hand basin, fully tiled walk in shower unit, panelled bath, fully tiled walls, ceramic tiled floor, heated towel rail, uPVC sheeted ceiling, low voltage spotlights.
LANDING: Eaves storage.
BEDROOM (3): 18' 0" X 10' 0" (5.49m X 3.05m) Eaves storage.
BEDROOM (4): 14' 10" X 10' 0" (4.52m X 3.05m) Eaves storage.
SHOWER ROOM: White suite comprising low flush wc, wash hand basin, fully tiled shower cubicle with electric shower, part tiled walls, ceramic tiled floor, storage into eaves, Velux window, ceramic tiled floor, extractor fan.
Front gardens in lawns with beds in trees, bushes and shrubs. Large stone driveway parking for several cars. Enclosed rear gardens with large stone paved patio area, lawns, raised beds with shrubs and bushes.
DETACHED GARAGE: 22' 10" X 19' 3" (6.96m X 5.87m) Up and over door, sunken mechanic inspection pit.

Broadband Speed Availability

Ultrafast

Potential Speeds for 16 Old Coach Road

Max Download
1800
Mbps
Max Upload
220
Mbps
The speeds indicated represent the maximum estimated fixed-line speeds as predicted by Ofcom. Please note that these are estimates, and actual service availability and speeds may differ.

Property Location

Show Map

Mortgage Calculator

Disclaimer: The following calculations act as a guide only, and are based on a typical repayment mortgage model. Financial decisions should not be made based on these calculations and accuracy is not guaranteed. Always seek professional advice before making any financial decisions.

Directions

Leaving Belfast on the Malone Road conintue past House of Sport onto Upper Malone Road and turn left into Old Coach Road after Finaghy Road South.

Contact Agent

Contact Templeton Robinson (Lisburn Road)

Contact Templeton Robinson (Lisburn Road)

Request More Information
Requesting Info about...
16 Old Coach Road, Upper Malone Road, Belfast, BT9 5PR 16 Old Coach Road, Upper Malone Road, Belfast, BT9 5PR

By registering your interest, you acknowledge our Privacy Policy
Ask Holmes
Ask Holmes
Let's find your next home

Are you sure you want to reset the chat?

Checking API...