Contact Agent

Contact Simon Brien (South Belfast)

Contact Simon Brien (South Belfast)

4 Bed Terrace House

17 Wolseley Street

Belfast, County Antrim, BT7 1LG

price £225,000
  • Status Sale Agreed
  • Property Type Terrace
  • Bedrooms 4
  • Receptions 1
  • EPC Rating E53 / C71
  • Stamp Duty
    Higher amount applies when purchasing as buy to let or as an additional property
    £2,000 / £13,250*
  • Typical Mortgage
    Click price to use our mortgage calculator
EPC Rating

Key Features & Description

  • Three Storey Mid Terrace Property
  • Four Bedrooms
  • Spacious Open Plan Dining / Living Room
  • Kitchen
  • First Floor Bathroom & Separate Shower Room
  • Gas Heating
  • Income £19,200 Per Annum
  • Fully Let
  • HMO with license
  • Viewing by Private Appointment
  • Description
    Located in the popular Botanic area of Belfast, the property is well placed to local amenities and is within comfortable walking distance of Belfast City Centre and Queen's University.

    The property consists of a four-bedroom HMO with License. Current rental income of £19,200 per annum.

    Vieiwng by appointment through our South Belfast office on 028 9066 8888.

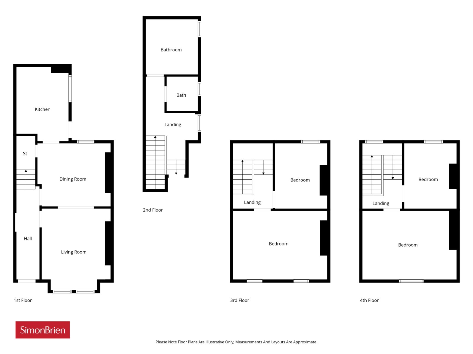
    Rooms

    Solid wood front door to
    Entrance Hall Laminate wood floor
    Dining/Living Room 24'7" X 11'7" (7.50m X 3.53m) Laminate wood floor
    Kitchen 11'3" X 14'7" (3.43m X 4.45m) Range of high and low level units, space for fridge and cooker, plumbed for washing machine, stainless steel sink unit, Vaillant gas boiler
    First Floor Landing
    Bathroom Low flush WC, pedestal wash hand basin, bath
    Shower Room Pedestal wash hand basin, shower with electric shower
    Bedroom 1 22'0" X 13'2" (6.70m X 4.01m)
    Bedroom 2 10'8" X 9'8" (3.25m X 2.95m)
    Bedroom 3 16'3" X 12'2" (4.95m X 3.70m) Velux window
    Bedroom 4 11'0" X 9'6" (3.35m X 2.90m) Velux window
    Outside Enclosed concrete back yard

    Broadband Speed Availability

    Ultrafast

    Potential Speeds for 17 Wolseley Street

    Max Download
    1800
    Mbps
    Max Upload
    220
    Mbps
    The speeds indicated represent the maximum estimated fixed-line speeds as predicted by Ofcom. Please note that these are estimates, and actual service availability and speeds may differ.

    Property Location

    Show Map

    Mortgage Calculator

    Disclaimer: The following calculations act as a guide only, and are based on a typical repayment mortgage model. Financial decisions should not be made based on these calculations and accuracy is not guaranteed. Always seek professional advice before making any financial decisions.

    Contact Agent

    Contact Simon Brien (South Belfast)

    Contact Simon Brien (South Belfast)

    Request More Information
    Requesting Info about...
    17 Wolseley Street, Belfast, County Antrim, BT7 1LG 17 Wolseley Street, Belfast, County Antrim, BT7 1LG

    By registering your interest, you acknowledge our Privacy Policy