Contact Agent
Contact Templeton Robinson (Lisburn Road)
2 Bed Apartment
11 Rugby Square
University Area, Belfast, BT7 1PY
offers over
£179,950
Key Features & Description
Superb Penthouse Duplex Apartment in Secure Gated Development off Rugby Road
Spacious Living Room, Dining room, Dining Area Open to Modern Kitchen
Additional Living Area on Mezzanine Level
Modern Fitted Kitchen with Range of Built-in Units
Two Well Proportioned Bedrooms, Principal Bedroom with Ensuite Shower Room
Main Bathroom
Secure Gated Development with Parking
Phoenix Gas Central Heating
Double Glazed Windows
Convenient Location Close to Queens University
Description
An excellent penthouse duplex apartment in a secure and popular development off Rugby Road in South Belfast. Ideally positioned for those seeking a self-contained city house within walking distance of Queen"s University and the City Centre. This fine property is complemented by its proximity to Botanic Gardens park area and the River Lagan.
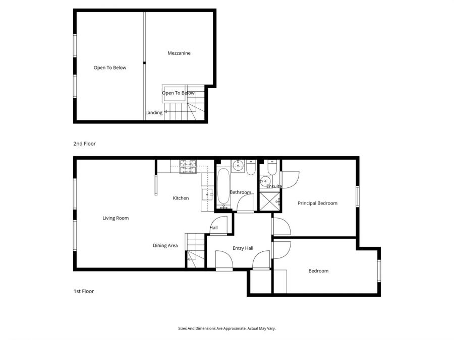
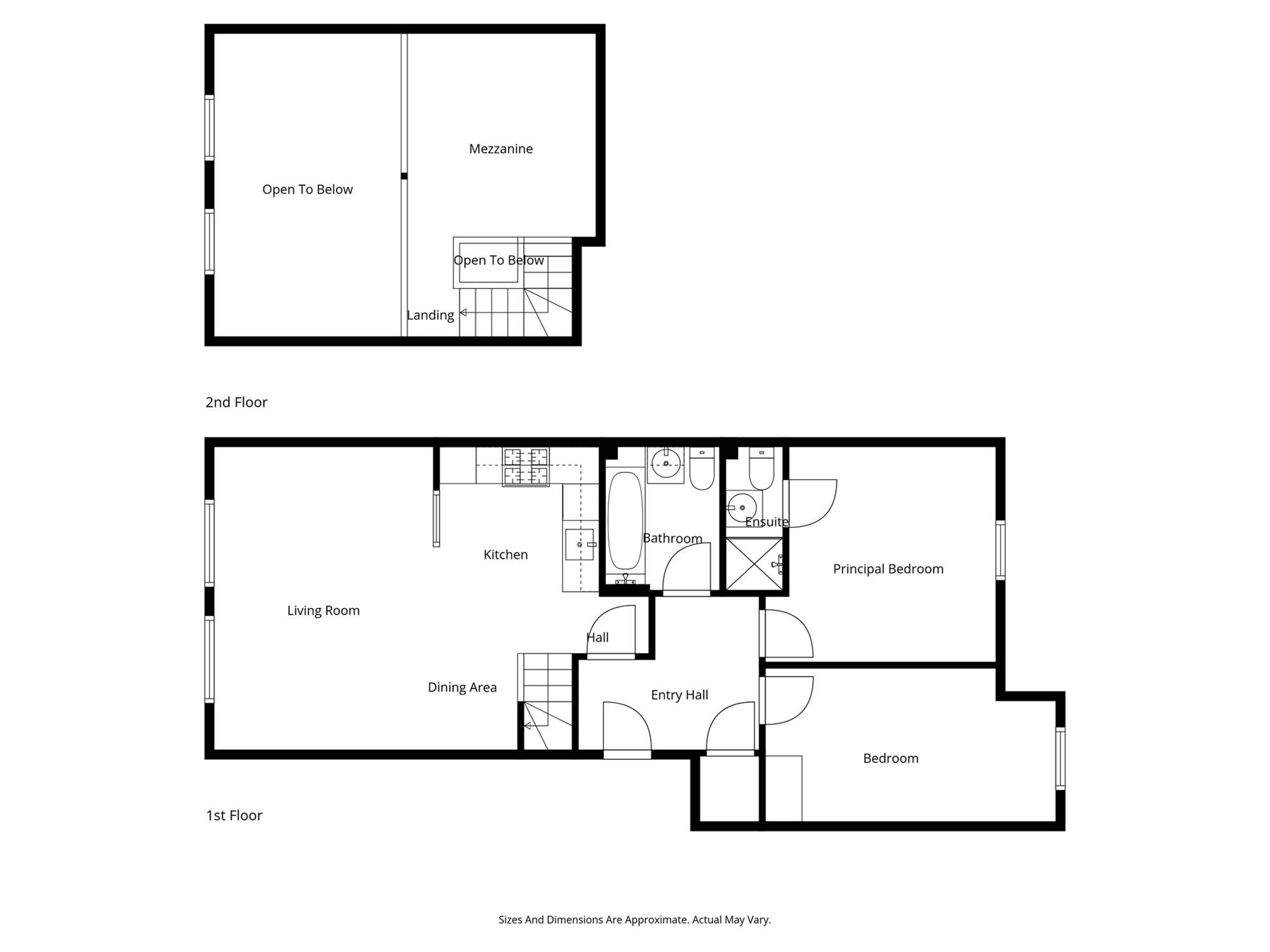
The well-proportioned accommodation comprises an entrance hall, a spacious living room, dining area and open plan kitchen area with an extensive range of built-in kitchen units with integrated appliances. The apartment benefits from a first floor mezzanine level ideal for an office or second living area. Two good sized bedrooms, the principal bedroom benefits from an ensuite shower room, and a main bathroom are in turn complemented by PVC framed windows, Phoenix Gas central heating, secure entrance gates and a convenience that will have wide ranging appeal.
An excellent penthouse duplex apartment in a secure and popular development off Rugby Road in South Belfast. Ideally positioned for those seeking a self-contained city house within walking distance of Queen"s University and the City Centre. This fine property is complemented by its proximity to Botanic Gardens park area and the River Lagan.
The well-proportioned accommodation comprises an entrance hall, a spacious living room, dining area and open plan kitchen area with an extensive range of built-in kitchen units with integrated appliances. The apartment benefits from a first floor mezzanine level ideal for an office or second living area. Two good sized bedrooms, the principal bedroom benefits from an ensuite shower room, and a main bathroom are in turn complemented by PVC framed windows, Phoenix Gas central heating, secure entrance gates and a convenience that will have wide ranging appeal.
Rooms
Solid wood front door to . . .
COMMUNAL RECEPTION HALL:
Stairs to . . .
Solid wood door to . . .
RECEPTION HALL:
Access to storage cupboard, access to roofspace, ceramic tiled floor.
KITCHEN / LIVING / DINING: 20' 5" X 16' 4" (6.22m X 4.98m)
Fitted kitchen with range of high and low level units, four ring gas hob, stainless steel extractor hood, stainless steel sink unit with drainer, integrated fridge freezer, electric oven, tiled splashback, ceramic tiled floor. Open plan to double height vaulted dining/living area with laminate wood effect floor. Stairs to . . .
MEZZANINE: 11' 3" X 10' 2" (3.43m X 3.10m)
Open plan to below, laminate wood effect floor.
BEDROOM (1): 12' 5" X 11' 7" (3.78m X 3.53m)
Laminate wood effect floor. Door to . . .
ENSUITE SHOWER ROOM:
White suite comprising fully tiled shower cubicle, low flush wc, pedestal wash hand basin, tiled splashback, ceramic tiled floor.
BEDROOM (2): 15' 7" X 8' 3" (4.75m X 2.51m)
Laminate wood effect floor.
BATHROOM:
White suite comprising panelled bath with shower over, low flush wc, vanity unit with wash hand basin, part tiled walls, ceramic tiled floor.
Broadband Speed Availability
Potential Speeds for 11 Rugby Square
Max Download
1800
Mbps
Max Upload
220
MbpsThe speeds indicated represent the maximum estimated fixed-line speeds as predicted by Ofcom. Please note that these are estimates, and actual service availability and speeds may differ.
Property Location
Mortgage Calculator
Directions
Rugby Road from Agincourt Avenue take first on right into Rugby Parade, continue to end.
Contact Agent
Contact Templeton Robinson (Lisburn Road)
Request More Information
Requesting Info about...
11 Rugby Square, University Area, Belfast, BT7 1PY
By registering your interest, you acknowledge our Privacy Policy
By registering your interest, you acknowledge our Privacy Policy