3 Bed Semi-Detached House
37 Temple Hall
Templepatrick, BT39 0FE
offers over
£249,950
Key Features & Description
Semi Detached Home
Three Bedrooms; Principal En Suite
Lounge; Gas Stove
Kitchen Through Dining Room
Deluxe Bathroom With White Suite
Gas Heating; Triple Glazed Sliding Sash Windows
Furnished Cloakroom
Private Driveway
Fully Enclosed Rear Garden
Immaculate Throughout; Well Sought After Development
Description
Immaculately presented, cottage style, three bedroom, semi detached home with fully enclosed rear garden, situated within the highly sought after Temple Hall development, Lylehill Road, Templepatrick.
The property is finished to an exceptional standard throughout and accommodation comprises entrance hall, furnished cloakroom, lounge with wood burning effect gas stove, kitchen through dining room, modern fitted kitchen with comprehensive range of integrated appliances, three well-proportioned bedrooms, to include principal en suite, and separate deluxe family bathroom, with contemporary, white three piece suite.
Externally, the property enjoys private driveway, finished in tarmac, and fully enclosed rear garden, finished in lawn and paved patio area.
Other attributes include gas fired central heating, PVC triple glazed sliding sash windows, feature height ceilings, and built in storage.
Early viewing highly recommended to avoid disappointment.
Immaculately presented, cottage style, three bedroom, semi detached home with fully enclosed rear garden, situated within the highly sought after Temple Hall development, Lylehill Road, Templepatrick.
The property is finished to an exceptional standard throughout and accommodation comprises entrance hall, furnished cloakroom, lounge with wood burning effect gas stove, kitchen through dining room, modern fitted kitchen with comprehensive range of integrated appliances, three well-proportioned bedrooms, to include principal en suite, and separate deluxe family bathroom, with contemporary, white three piece suite.
Externally, the property enjoys private driveway, finished in tarmac, and fully enclosed rear garden, finished in lawn and paved patio area.
Other attributes include gas fired central heating, PVC triple glazed sliding sash windows, feature height ceilings, and built in storage.
Early viewing highly recommended to avoid disappointment.
Rooms
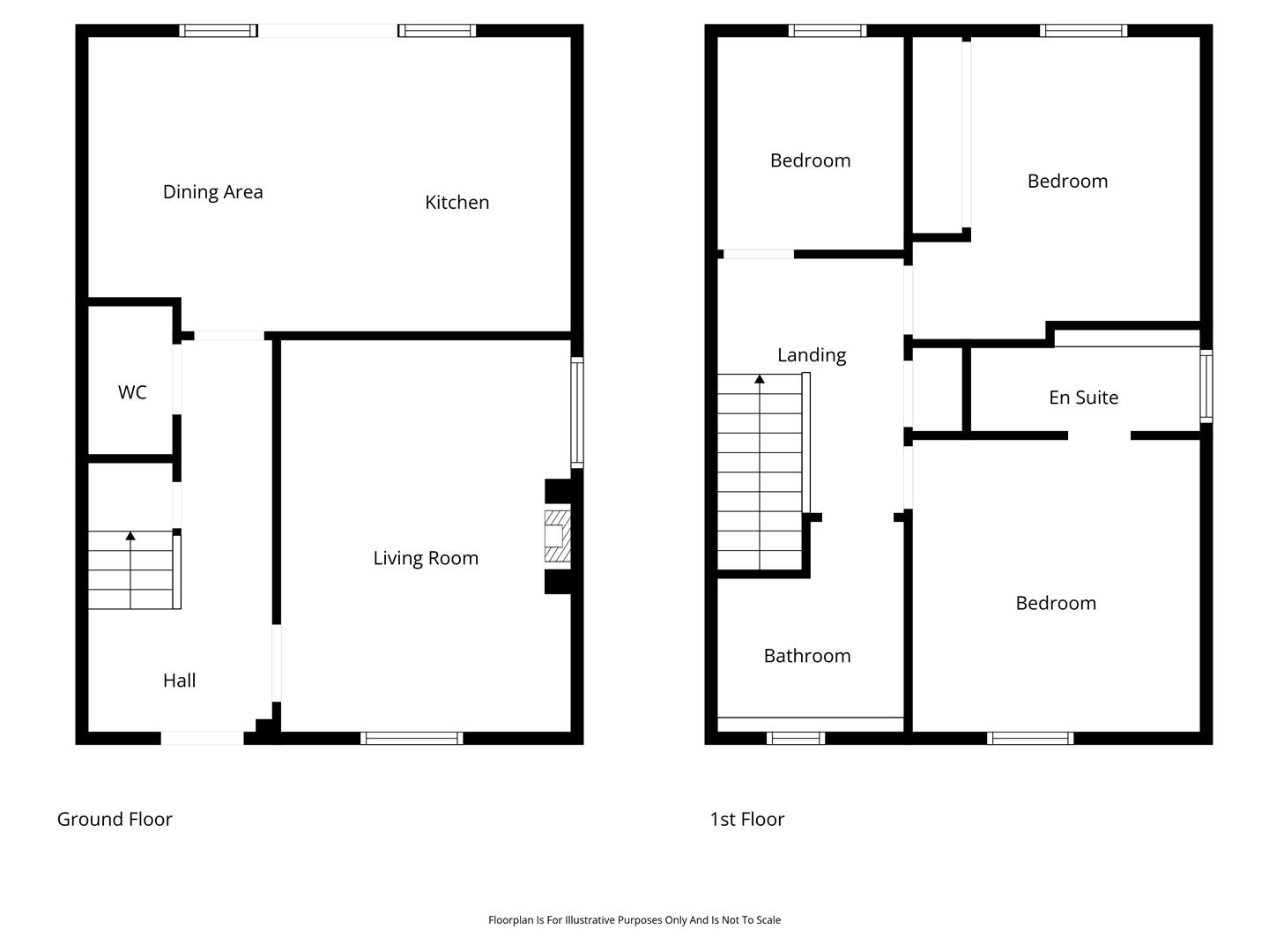
ACCOMMODATION
ENTRANCE HALL
Hardwood, double glazed, panelled front entrance door with matching double glazed fanlight over. Tiled floor. Stairwell to first floor. Access to under stairs store.
FURNISHED CLOAKROOM
White two piece suite comprising floating wash hand basin and WC. Splash back tiling to sink. Tiled floor.
LOUNGE 15'10" X 11'10" (wps) (4.85m X 3.62m (wps))
Woodblock effect, cast iron, gas stove set on slate tile hearth with floating timber mantle over. Wood laminate floor covering. Sliding sash triple glazed window to front elevation.
KITCHEN THROUGH DINING ROOM 19'0" X 12'8" (5.80m X 3.87m)
Modern fitted kitchen with range of high and low level storage units and contrasting melamine work surface. Stainless steel 1.25 bowl sink unit with draining bay and swan neck mixer tap. Integrated four ring, gas hob with stainless steel extractor canopy over. Integrated undercounter electric oven. Integrated fridge freezer, dishwasher and washing machine. Gas fired central heating boiler (housed in matching high level unit). Integrated microwave oven. Splashback tiling to walls. Tiled floor. PVC double glazed French patio doors with matching side screens. Recessed spotlights.
FIRST FLOOR
LANDING
Access to built in store. Access via slingsby style ladder to partially floored roof space with light.
PRINCIPAL BEDROOM 11'10" X 11'2" (3.63m X 3.42m)
Sliding sash triple glazed window to front elevation.
DELUXE EN SUITE SHOWER ROOM 8'11" X 4'3" (2.72m X 1.31m)
Contemporary, white, three piece suite comprising fully tiled shower enclosure, semi pedestal wash hand basin and concealed cistern WC. Thermostat controlled shower unit. Part tiled walls. Tiled floor. Chrome towel radiator. Recessed spotlights.
BEDROOM 2 12'4" X 10'11" (wps) (3.77m X 3.35m (wps))
Range of fitted wardrobes and overhead lockers. Elevated rural views.
BEDROOM 3 8'9" X 7'9" (2.69m X 2.37m)
Elevated rural views.
DELUXE FAMILY BATHROOM 8'5" X 7'6" (wps) (2.58m X 2.29m (wps))
Contemporary, white, three piece suite comprising panelled bath, semi pedestal wash hand basin and concealed cistern WC. Mixer tap, thermostat controlled main shower unit and glass shower screen over bath. Part tiled walls. Tiled floor. Chrome towel radiator. Recessed spotlights.
EXTERNAL
Small front garden finished in neat lawn and range of plants, trees and shrubbery.
Tiled pitch entrance canopy at front door.
Generous sized, private driveway area finished in tarmac.
Fully enclosed, private, rear garden finished in neat lawn, paved patio area and decorative stone.
External lighting.
Outside tap.
Tiled pitch entrance canopy at front door.
Generous sized, private driveway area finished in tarmac.
Fully enclosed, private, rear garden finished in neat lawn, paved patio area and decorative stone.
External lighting.
Outside tap.
TIMBER GARDEN SHED 9'10" X 6'0" (3.00m X 1.83m)
Light and power points.
IMPORTANT NOTE TO ALL POTENTIAL PURCHASERS
Every care has been taken with the preparation of these particulars, but complete accuracy cannot be guaranteed. If there is any point, which is of particular importance to you, please obtain professional confirmation. Alternatively, we will be pleased to check the information for you. All measurements quoted are approximate. The Fixtures, Fittings & Appliances have not been tested and therefore no guarantee can be given that they are in working order. Photographs are reproduced for general information and it cannot be inferred that any item shown is included in the sale.
Broadband Speed Availability
Potential Speeds for 37 Temple Hall
Max Download
1800
Mbps
Max Upload
220
MbpsThe speeds indicated represent the maximum estimated fixed-line speeds as predicted by Ofcom. Please note that these are estimates, and actual service availability and speeds may differ.
Property Location
Mortgage Calculator
Contact Agent
Contact Colin Graham Residential
Request More Information
Requesting Info about...
37 Temple Hall, Templepatrick, BT39 0FE
By registering your interest, you acknowledge our Privacy Policy
By registering your interest, you acknowledge our Privacy Policy