4 Bed Detached Bungalow
Wood Lodge, Plot 9 Ballytweedy Manor
150 Seven Mile Straight, Antrim, BT41 4FZ
price
£575,000
- Status Sale Agreed
- Property Type Detached Bungalow
- Bedrooms 4
- Receptions 3
- Interior Area Circa 2800 sq ft inc garage
- Heating Oil
-
Stamp Duty
Higher amount applies when purchasing as buy to let or as an additional property£18,750 / £47,500*
Key Features & Description
"HOMES OF DISTINCTION IN A HISTORICAL RURAL SETTING"
All Homes are distinctly individual and we will endeavour build them to the highest standard -
Therefore creating a Home that the purchaser can be proud of for many years to come.
Includes Double Car Port and Single Garage.
Description
"HOMES OF DISTINCTION IN A HISTORICAL RURAL SETTING"
Ballytweedy Manor is a prestigious country development of 8 luxury detached homes situated on the Seven Mile Straight in Templepatrick. Ballytweedy offers homeowners a truly unique opportunity in an exclusive living environment, comprising a largely rural landscape setting characterised by both woodlands and agricultural lands.
Ballytweedy Manor is situated on the former historical site of Ballytweedy Estate comprising approximately 68 acres. The original farmhouse possibly dates back to around the 1720"s and was the residence of the respectable Shaw family. Bearing this in mind and the importance of maintaining this link to the past, the Ballytweedy Manor properties represent a sustainable approach to development in the countryside where each Home is situated on approximately an acre site, within a magnificent rural setting.
Each property is individually designed by leading architect The Designworks Studio and constructed to an exceptional and individual turnkey specification - resulting in an exceptional living environment. The properties offer between two to three reception rooms and up to four spacious bedrooms and the combined square footage, including the garage, of up to and approximately 4,000 sq. ft. (A garage is included with each property).
The site is located at 150 Seven Mile Straight, Antrim. It is approximately 3km south-west of Templepatrick and approximately 3km south-east of Dunadry. Belfast International Airport is only a short drive and Belfast just 30 minutes by car. Antrim town itself is only 6 miles away and offers an excellent range of established shops, bars and restaurants including The Junction Retail Park. For the Golfing enthusiast Hilton Belfast Templepatrick Golf & Country Club is only 4 miles away. The development is also well positioned close to Antrim Area Hospital, leading local schools and the M2 Motorway connecting you further afield.
SPECIFICATIONS:
Homes set with in 68 acres of agricultural land and accessed by a private laneway from Sevenmile straight, Muckamore, Antrim. Laneway fenced then planted with hornbeam hedge and lined with lime trees, laneway finished with tarmac and verges grassed for mowing.
Annual management fee of £500.00 for common area maintenance.
External Finishes
Site 8 Driveway kerbed and tarmacked to entrance gates.
Site 9 Driveway kerbed and tarmacked to carport then gravelled to gates.
Site 3 Driveway kerbed and tarmacked to corner of house at front door then gravelled to gates.
Patio areas finished in Tobermore historical charcoal flags and paths laid in Tobermore slate tegula.
Gardens ½ acre laid out in lawn the remainder levelled.
Bespoke gate posts and gates (Can be automatic if required)
Electric garage doors.
Garage to have lighting and sockets.
Feature lighting at door openings around building.
Boundary to be fenced of with stock proof fence.
Outside cold water tap.
High quality uPVC double glazed windows finished in anthracite grey.
Internal Finishes
Generous P.C sum to cover kitchen, sanitary ware, fireplaces, wood burning stove and necessary attachments, carpets, tiles (adhesive/grout) builder will supply labour for fitting to be agreed on site.
Plot 8 tiling: Ground Floor - W.C floor, Mudroom, Utility, Kitchen.
1st Floor - Master ensuite floor, rear and side walls of shower, splash back at sink. Bed 2 Ensuite floor, around shower enclosure, splash back at sink.
Bed 3 Ensuite floor, around shower enclosure, splash back at sink.
Bed 4 Ensuite floor, around shower enclosure, splash back at sink.
Plot 9 tiling: Porch, Kitchen, W.C floor, Utility.
Master ensuite floor, rear and side walls of shower, splash back at sink
Bathroom floor, around shower enclosure, rear of bath and splash back at sink.
Plot 3 tiling: Ground Floor - Porch, utility, W.C, kitchen/dinning.
1st Floor - Master ensuite floor, rear and side walls of shower, splash back at sink. Bed 2 Ensuite floor, around shower enclosure, splash back at sink.
Bathroom floor, around shower enclosure, rear of bath and splash back at sink.
Electrical
Generous electrical spec with provision for data and tv points throughout data cabled back to main router with fibre connection available on site. Tv points cabled to attic to allow connection to terrestrial TV or satellite. Electrical faceplates in either white click mode or click deco satin chrome.
House to include security alarm.
Electric Vehicle: Supply will be left for EV charging point.
Joinery
Staircase with white oak newel post and handrail with spindles and string painted in a pavilion grey.
Internal doors Mexicano style fitted on ball race hinges and painted in a pavilion grey.
Skirting and architrave contemporary design painted in colour chalky white.
Painting
All walls and ceilings to be finished in chalky white.
Kitchen
Bespoke kitchen designed and fitted by Conrad Dougherty, style, colour, finish and counter tops all chosen by home buyer to put their stamp on their new home.
Heating System Fully programable saving money
Plot 8: Ground floor - zoned underfloor heating with individual digital programable room stats to give full control over heating zones.
1st Floor - radiators throughout with towel rails in ensuites all controlled by trv valves on radiators and digital programmable room stat in master bedroom.
Hot water - mains flow pressurised hot water cylinder giving mains pressure throughout. Thermostatically controlled so you don"t run out of hot water.
Plot 9: Entire ground floor zoned underfloor heating with individual digital programable room stats to give full control over heating zones.
Hot water - mains flow pressurised hot water cylinder giving mains pressure throughout. Thermostatically controlled so you don"t run out of hot water.
Plot 3: Ground floor - zoned underfloor heating with individual digital programable room stats to give full control over heating zones.
1st Floor - radiators throughout with towel rails in ensuites and bathroom all controlled by trv valves on radiators and digital programmable room stat in master bedroom.
Hot water - mains flow pressurised hot water cylinder giving mains pressure throughout. Thermostatically controlled so you don"t run out of hot water.
BUILDING WARRANTY - Each home will be issued with a 10-year warranty certificate.
Please Note - Final specifications are Subject to Change. Please confirm with Builder / Developer.
All Homes are distinctly individual, and we will endeavour build them to the highest standard and create a Home that the purchaser can be proud of for many years to come.
"HOMES OF DISTINCTION IN A HISTORICAL RURAL SETTING"
Ballytweedy Manor is a prestigious country development of 8 luxury detached homes situated on the Seven Mile Straight in Templepatrick. Ballytweedy offers homeowners a truly unique opportunity in an exclusive living environment, comprising a largely rural landscape setting characterised by both woodlands and agricultural lands.
Ballytweedy Manor is situated on the former historical site of Ballytweedy Estate comprising approximately 68 acres. The original farmhouse possibly dates back to around the 1720"s and was the residence of the respectable Shaw family. Bearing this in mind and the importance of maintaining this link to the past, the Ballytweedy Manor properties represent a sustainable approach to development in the countryside where each Home is situated on approximately an acre site, within a magnificent rural setting.
Each property is individually designed by leading architect The Designworks Studio and constructed to an exceptional and individual turnkey specification - resulting in an exceptional living environment. The properties offer between two to three reception rooms and up to four spacious bedrooms and the combined square footage, including the garage, of up to and approximately 4,000 sq. ft. (A garage is included with each property).
The site is located at 150 Seven Mile Straight, Antrim. It is approximately 3km south-west of Templepatrick and approximately 3km south-east of Dunadry. Belfast International Airport is only a short drive and Belfast just 30 minutes by car. Antrim town itself is only 6 miles away and offers an excellent range of established shops, bars and restaurants including The Junction Retail Park. For the Golfing enthusiast Hilton Belfast Templepatrick Golf & Country Club is only 4 miles away. The development is also well positioned close to Antrim Area Hospital, leading local schools and the M2 Motorway connecting you further afield.
SPECIFICATIONS:
Homes set with in 68 acres of agricultural land and accessed by a private laneway from Sevenmile straight, Muckamore, Antrim. Laneway fenced then planted with hornbeam hedge and lined with lime trees, laneway finished with tarmac and verges grassed for mowing.
Annual management fee of £500.00 for common area maintenance.
External Finishes
Site 8 Driveway kerbed and tarmacked to entrance gates.
Site 9 Driveway kerbed and tarmacked to carport then gravelled to gates.
Site 3 Driveway kerbed and tarmacked to corner of house at front door then gravelled to gates.
Patio areas finished in Tobermore historical charcoal flags and paths laid in Tobermore slate tegula.
Gardens ½ acre laid out in lawn the remainder levelled.
Bespoke gate posts and gates (Can be automatic if required)
Electric garage doors.
Garage to have lighting and sockets.
Feature lighting at door openings around building.
Boundary to be fenced of with stock proof fence.
Outside cold water tap.
High quality uPVC double glazed windows finished in anthracite grey.
Internal Finishes
Generous P.C sum to cover kitchen, sanitary ware, fireplaces, wood burning stove and necessary attachments, carpets, tiles (adhesive/grout) builder will supply labour for fitting to be agreed on site.
Plot 8 tiling: Ground Floor - W.C floor, Mudroom, Utility, Kitchen.
1st Floor - Master ensuite floor, rear and side walls of shower, splash back at sink. Bed 2 Ensuite floor, around shower enclosure, splash back at sink.
Bed 3 Ensuite floor, around shower enclosure, splash back at sink.
Bed 4 Ensuite floor, around shower enclosure, splash back at sink.
Plot 9 tiling: Porch, Kitchen, W.C floor, Utility.
Master ensuite floor, rear and side walls of shower, splash back at sink
Bathroom floor, around shower enclosure, rear of bath and splash back at sink.
Plot 3 tiling: Ground Floor - Porch, utility, W.C, kitchen/dinning.
1st Floor - Master ensuite floor, rear and side walls of shower, splash back at sink. Bed 2 Ensuite floor, around shower enclosure, splash back at sink.
Bathroom floor, around shower enclosure, rear of bath and splash back at sink.
Electrical
Generous electrical spec with provision for data and tv points throughout data cabled back to main router with fibre connection available on site. Tv points cabled to attic to allow connection to terrestrial TV or satellite. Electrical faceplates in either white click mode or click deco satin chrome.
House to include security alarm.
Electric Vehicle: Supply will be left for EV charging point.
Joinery
Staircase with white oak newel post and handrail with spindles and string painted in a pavilion grey.
Internal doors Mexicano style fitted on ball race hinges and painted in a pavilion grey.
Skirting and architrave contemporary design painted in colour chalky white.
Painting
All walls and ceilings to be finished in chalky white.
Kitchen
Bespoke kitchen designed and fitted by Conrad Dougherty, style, colour, finish and counter tops all chosen by home buyer to put their stamp on their new home.
Heating System Fully programable saving money
Plot 8: Ground floor - zoned underfloor heating with individual digital programable room stats to give full control over heating zones.
1st Floor - radiators throughout with towel rails in ensuites all controlled by trv valves on radiators and digital programmable room stat in master bedroom.
Hot water - mains flow pressurised hot water cylinder giving mains pressure throughout. Thermostatically controlled so you don"t run out of hot water.
Plot 9: Entire ground floor zoned underfloor heating with individual digital programable room stats to give full control over heating zones.
Hot water - mains flow pressurised hot water cylinder giving mains pressure throughout. Thermostatically controlled so you don"t run out of hot water.
Plot 3: Ground floor - zoned underfloor heating with individual digital programable room stats to give full control over heating zones.
1st Floor - radiators throughout with towel rails in ensuites and bathroom all controlled by trv valves on radiators and digital programmable room stat in master bedroom.
Hot water - mains flow pressurised hot water cylinder giving mains pressure throughout. Thermostatically controlled so you don"t run out of hot water.
BUILDING WARRANTY - Each home will be issued with a 10-year warranty certificate.
Please Note - Final specifications are Subject to Change. Please confirm with Builder / Developer.
All Homes are distinctly individual, and we will endeavour build them to the highest standard and create a Home that the purchaser can be proud of for many years to come.
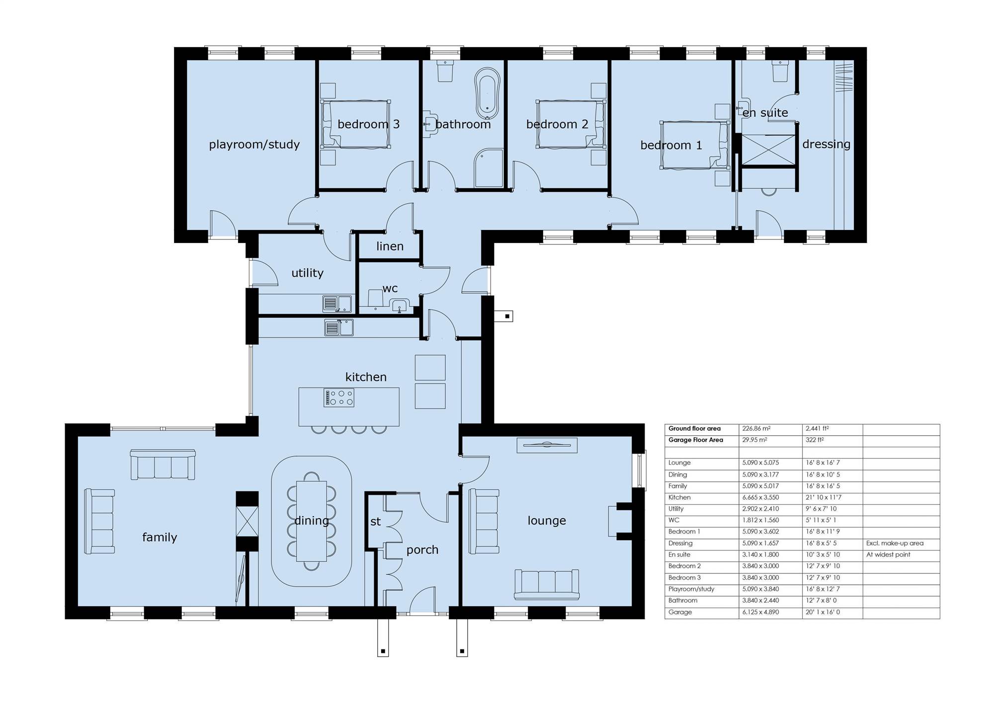
Rooms
ENTRANCE PORCH:
LOUNGE: 16' 8" X 16' 8" (5.09m X 5.08m)
DINING AREA: 16' 8" X 10' 5" (5.09m X 3.18m)
FAMILY ROOM: 16' 8" X 16' 6" (5.09m X 5.02m)
KITCHEN: 21' 10" X 11' 8" (6.67m X 3.55m)
UTILITY ROOM: 9' 6" X 7' 11" (2.90m X 2.41m)
DOWNSTAIRS W.C.: 5' 11" X 5' 1" (1.81m X 1.56m)
PRINCIPAL ROOM: 16' 8" X 11' 10" (5.09m X 3.60m)
DRESSING ROOM: 16' 8" X 5' 5" (5.09m X 1.66m)
Excl. make-up area
ENSUITE SHOWER ROOM: 10' 4" X 5' 11" (3.14m X 1.80m)
At widest point
BEDROOM (2): 12' 7" X 9' 10" (3.84m X 3.00m)
BEDROOM (3): 12' 7" X 9' 10" (3.84m X 3.00m)
PLAYROOM / STUDY 16' 8" X 12' 7" (5.09m X 3.84m)
BATHROOM: 12' 7" X 8' 0" (3.84m X 2.44m)
GARAGE: 20' 1" X 16' 1" (6.13m X 4.89m)
Property Location
Mortgage Calculator
Directions
Situated at 150 Seven Mile Straight, Muckamore, Antrim.
Contact Agent
Request More Information
Requesting Info about...
Wood Lodge, Plot 9 Ballytweedy Manor, 150 Seven Mile Straight, Antrim, BT41 4FZ
By registering your interest, you acknowledge our Privacy Policy
By registering your interest, you acknowledge our Privacy Policy