Contact Agent

Contact Templeton Robinson (Ballyhackamore)

Contact Templeton Robinson (Ballyhackamore)

2 Bed Terrace House

10 Oakdene Drive

Sydenham, Belfast, BT4 1LD

offers over £149,950
  • Status Sale Agreed
  • Property Type Terrace
  • Bedrooms 2
  • Receptions 1
  • Heating GFCH
  • EPC Rating D66 / B84 -
  • Stamp Duty
    Higher amount applies when purchasing as buy to let or as an additional property
    £499 / £7,997*
  • Typical Mortgage
    Click price to use our mortgage calculator
EPC Rating

Key Features & Description

Excellent, mid-terrace in popular residential location
Two well-proportioned bedrooms
Living room with feature fireplace
Kitchen, open to dining area
Bathroom on first floor
Gas fired central heating
Double glazing throughout
Enclosed rear garden with sunny aspect
Walking distance to Belmont & Ballyhackamore
Excellent transport links
Belfast City Centre only 2 miles away
No onward chain
Description
Conveniently situated within short walking distance to shops, schools and local amenities, the property is also well positioned to avail of George Best Belfast City Airport, Sydenham Train Station and main arterial transport links for the city centre and beyond. Belmont, Ballyhackamore and Holywood Exchange are also easily accessible.

The property itself consists of a living room with feature fireplace, kitchen open-plan to dining area with access to an enclosed rear garden. On the first floor there are two well proportioned bedrooms and a bathroom.

Early viewing is highly recommended as we expect demand to be high for this property.

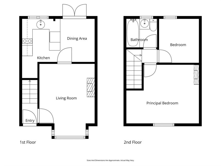
Rooms

Upvc front door to...
ENTRANCE HALL:
LIVING ROOM: 10' 5" X 13' 6" (3.18m X 4.11m) Into Bay. Feature fireplace.
KITCHEN/DINING SPACE: 19' 2" X 13' 9" (5.84m X 4.19m) Range of high and low level units, stainless steel sink with chrome mixer tap, space for under counter fridge, plumbed for washing machine, hob, extractor, tiled splashback, double doors to rear, open to casual dining area, Understair storage.
LANDING:
PRINCIPAL BEDROOM: 13' 8" X 11' 0" (4.17m X 3.35m)
BEDROOM (2): 7' 6" X 8' 3" (2.29m X 2.51m)
BATHROOM: White suite comprising low flush WC, pedestal wash hand basin with mixer tap, panelled bath with mixer tap, fully tiled walls, tiled floor.
FRONT: Enclosed front forecourt.
REAR: Garden laid in lawn with additional patio area.

Broadband Speed Availability

Ultrafast

Potential Speeds for 10 Oakdene Drive

Max Download
1800
Mbps
Max Upload
220
Mbps
The speeds indicated represent the maximum estimated fixed-line speeds as predicted by Ofcom. Please note that these are estimates, and actual service availability and speeds may differ.

Property Location

Show Map

Mortgage Calculator

Disclaimer: The following calculations act as a guide only, and are based on a typical repayment mortgage model. Financial decisions should not be made based on these calculations and accuracy is not guaranteed. Always seek professional advice before making any financial decisions.

Directions

Travelling along Connsbrook Avenue in the direction of Belfast, turn right into Oakdene Parade and take the first right into Oakdene Drive.

Contact Agent

Contact Templeton Robinson (Ballyhackamore)

Contact Templeton Robinson (Ballyhackamore)

Request More Information
Requesting Info about...
10 Oakdene Drive, Sydenham, Belfast, BT4 1LD 10 Oakdene Drive, Sydenham, Belfast, BT4 1LD

By registering your interest, you acknowledge our Privacy Policy