Contact Agent

Contact Templeton Robinson (Lisburn Road)
3 Bed Detached House
5 Sharman Park
Stranmillis, Belfast, BT9 5HJ
offers over
£275,000

Key Features & Description
Spacious Detached Property in a Convenient and Highly Sought After Location in South Belfast
Offering So Much Potential for those Seeking a Renovation Project to Add Their Own Stamp
Large Lounge with Feature Fireplace
Dining Room Leading to a Fitted Kitchen
Three Well Proportioned Bedrooms
White Family Bathroom Suite
Oil Heating; Double Glazing Throughout
Enclosed Rear Garden; Driveway Parking to the Front
Recent Sales have been Extremely Popular, Early Viewing Highly Recommended
Description
This spacious detached property occupies a superb situation in one of the most sought after locations in South Belfast and is extremely convenient to the many local amenities including shops, public transport, schools and the lagan towpath for the outdoor enthusiast. The property offers so much potential for those who seek a project and want to add their own stamp. Internally the property comprises spacious reception room, good sized dining room leading to a fitted kitchen. Upstairs are three well-proportioned bedrooms including a white family bathroom suite. Externally is a privately enclosed rear garden and driveway parking to the front. Early viewing is a must as recent sales in this particular area have proved extremely successful.
This spacious detached property occupies a superb situation in one of the most sought after locations in South Belfast and is extremely convenient to the many local amenities including shops, public transport, schools and the lagan towpath for the outdoor enthusiast. The property offers so much potential for those who seek a project and want to add their own stamp. Internally the property comprises spacious reception room, good sized dining room leading to a fitted kitchen. Upstairs are three well-proportioned bedrooms including a white family bathroom suite. Externally is a privately enclosed rear garden and driveway parking to the front. Early viewing is a must as recent sales in this particular area have proved extremely successful.
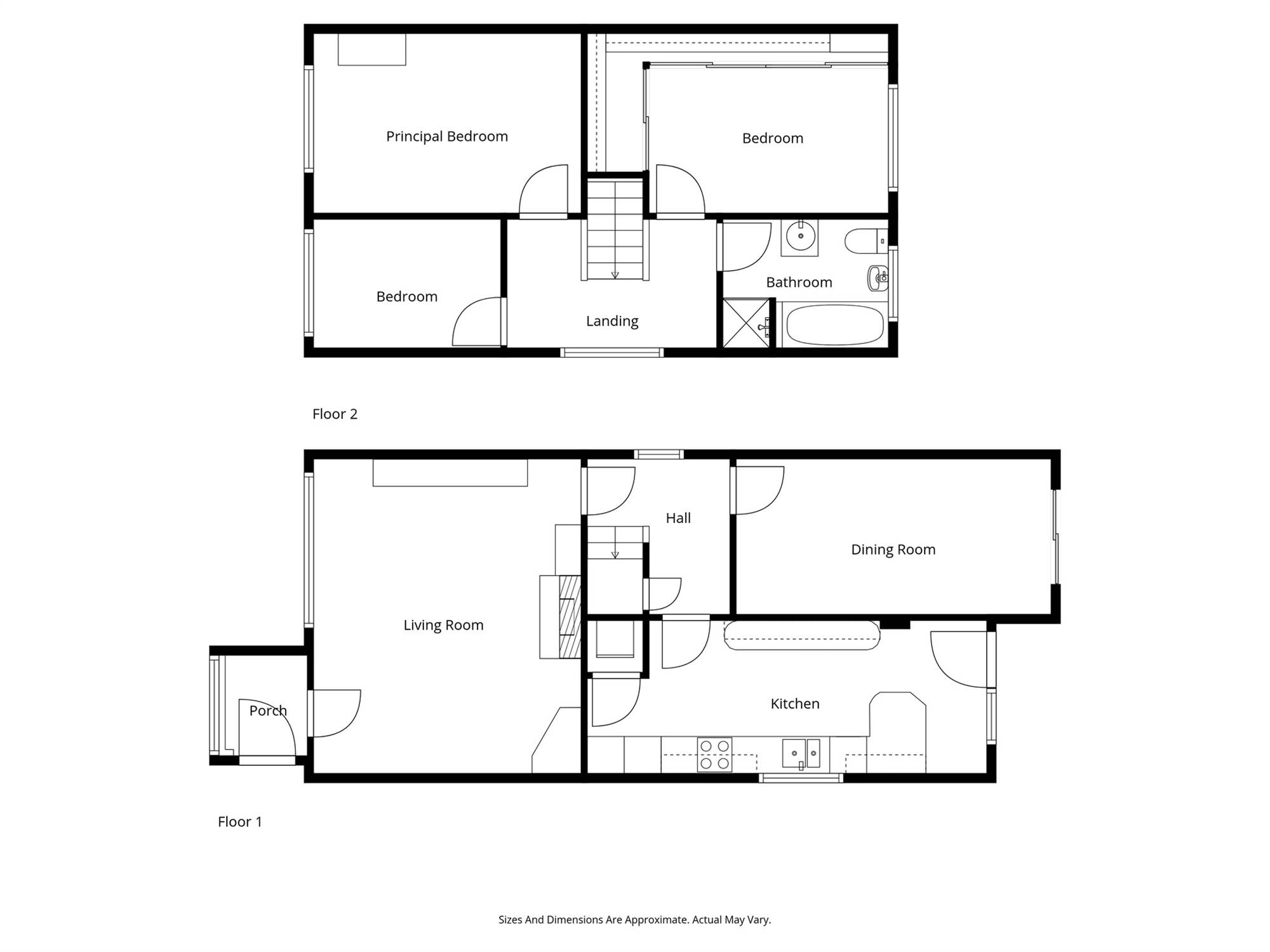
Rooms
ENTRANCE PORCH:
LIVING ROOM: 17' 1" X 15' 4" (5.21m X 4.67m)
Feature fireplace, tiled hearth, brass canopy and electric insert.
REAR HALL:
Carpeted.
DINING ROOM: 17' 1" X 8' 4" (5.21m X 2.54m)
Slidingpatio door onto enclosed rear garden.
KITCHEN: 21' 1" X 8' 3" (6.43m X 2.51m)
Range of high and low level units, built-in oven and hob, plumbed for dishwasher, breakfast bar, tiled flooring.
LANDING:
Carpeted. Access to:
BEDROOM (1): 14' 6" X 9' 7" (4.42m X 2.92m)
Carpeted.
BEDROOM (2): 11' 7" X 7' 9" (3.53m X 2.36m)
Carpeted. Built-in robes with mirror fronted doors.
BEDROOM (3): 10' 3" X 7' 0" (3.12m X 2.13m)
Carpeted.
BATHROOM: 10' 1" X 8' 9" (3.07m X 2.67m)
Low flush wc, wash hand basin, bidet, walk-in shower cubicle with electric Mira shower, bath, fully tiled, access to loft.
Enclosed rear gardens with raised patio area.
DETACHED GARAGE:
Up and over door. Utility area, plumbed for washing machine.
Broadband Speed Availability
Potential Speeds for 5 Sharman Park
Max Download
1800
Mbps
Max Upload
220
MbpsThe speeds indicated represent the maximum estimated fixed-line speeds as predicted by Ofcom. Please note that these are estimates, and actual service availability and speeds may differ.
Property Location

Mortgage Calculator
Directions
From Stranmillis Road turn onto Sharman Road, take last road on right hand side into Sharman Park.
Contact Agent

Contact Templeton Robinson (Lisburn Road)
Request More Information
Requesting Info about...
5 Sharman Park, Stranmillis, Belfast, BT9 5HJ
By registering your interest, you acknowledge our Privacy Policy

By registering your interest, you acknowledge our Privacy Policy