2 Bed Apartment
Coastguard Apartments, 2 Ferry Quarter
Shore Road, Strangford, BT30 7GT
asking price
£475,000
- Status For Sale
- Property Type Apartment
- Bedrooms 2
- Receptions 1
- Heating Gas
-
Stamp Duty
Higher amount applies when purchasing as buy to let or as an additional property£13,750 / £37,500*
Key Features & Description
SPECIFICATION
COMMUNAL AREAS
Dedicated parking areas
Visitor parking
Fully decorated communal area
Fully landscaped communal area
Decorative lighting
Enclosed bin storage
EXTERNAL FEATURES
Energy efficient traditional masonry construction with brick, stone and render to selected areas
Solid concrete floors to maximising insulation and minimising sound transmission
Black seamless aluminium rainwater goods, with black uPVC downpipes
Double glazed windows with sills
GRP composite front door with a 5 point system
High thermal insulation and energy efficiency rating
Bitmac parking areas
INTERNAL FEATURES
KITCHEN
Kitchen, quality kitchen individually designed for each apartment
Appliances to include - cooker, hob, extractor hood, dishwasher and fridge freezer
Plumbed for washing machine and tumble dryer in utility room
BATHROOMS
Pre-selected contemporary designer sanitary ware
Chrome towel radiators will be fitted in all bathrooms and ensuite areas
FLOOR COVERINGS & TILES
High quality floor tiling and strategically placed wall tiling to bathroom, ensuite and WC
Quality tiling to hallway, living area, kitchen / dining and utility
Quality carpets and underlay to bedrooms
INTERNAL TRIMMING & DOORS
Painted moulded skirting and architrave
Painted internal doors with quality ironmongery
Glazed door to lounge with quality ironmongery (if applicable)
All internal walls and ceiling painted throughout
HEATING & PLUMBING
Underfloor heating
Pressurised hot and cold water systems
Gas fired central heating with energy efficient combi boiler
Thermostatically controlled radiators - heating controlled with heatmiser home kit
Outside tap provided
ELECTRICITY
Comprehensive range of electrical sockets incorporating USB charging points (pre-selected points), switches, TV and telephone points
Wiring for future satellite points
Smoke, heat and carbon monoxide detectors
Energy efficient down lighting to kitchen, hall and bathrooms
Feature external light to front and rear
MANAGEMENT COMPANY
A management company may be formed. If so, each purchaser will become a shareholder. An annual service charge may be payable
WARRANTY
White goods carry a 1 year guarantee from date of installation
10 Year Buildmark warranty
Description
A PLACE TO RELAX AND EMBRACE NATURE
Enjoy the tranquillity of Lough Views and lough shore living in Strangford Village, Co. Down.
Strangford Village once voted one of the prettiest in the UK to live has the shores of Strangford Lough offering one of the most beautiful coasts in County Down.
The Coastguard Apartments are elegantly designed with the highly desirable, private development. Ferry Quarter, Shore Road, Strangford. You are warmly greeted at the entrance by the thoughtfully landscaped grounds, seamlessly connecting to the Coastguard Apartments. Each apartment offers individual access with panoramic views over Strangford Lough.
An area of outstanding natural beauty, Strangford boasts a vibrant village vibe in the summer months with a fabulous array of local restaurants, The Artisan, The Lobster Pot & the Cuan along with locally run shops, The Cake Shop, dentist, chemist shop and outdoor activities pursuits.
Ferry Quarter is just a short drive to Castle Ward Estate, Audley"s Castle, local woodland Trust nature walks and the beautiful beaches along the shoreline of the County Down Coast.
STRANGFORD VILLAGE - A MAGICAL PLACE TO LIVE
Enjoy a cosy pub lunch, or evening meal, a walk along the Lecale way or take the Strangford Ferry across the narrows for a day trip to Greyabbey and explore the local antique shops and Ards Peninsula.
Locally the area benefits from excellent schools and an easy commute to the city, and Downpatrick with a wide variety of local produce.
Strangford Village is a hub of activity with paddle boarding, canoe trails, sailing, walking, hiking, and sea swimming plus local activity, sailing or rowing clubs.
We aim to provide you with a home of fine appearance, maximum comfort and ease of maintenance.
A PLACE TO RELAX AND EMBRACE NATURE
Enjoy the tranquillity of Lough Views and lough shore living in Strangford Village, Co. Down.
Strangford Village once voted one of the prettiest in the UK to live has the shores of Strangford Lough offering one of the most beautiful coasts in County Down.
The Coastguard Apartments are elegantly designed with the highly desirable, private development. Ferry Quarter, Shore Road, Strangford. You are warmly greeted at the entrance by the thoughtfully landscaped grounds, seamlessly connecting to the Coastguard Apartments. Each apartment offers individual access with panoramic views over Strangford Lough.
An area of outstanding natural beauty, Strangford boasts a vibrant village vibe in the summer months with a fabulous array of local restaurants, The Artisan, The Lobster Pot & the Cuan along with locally run shops, The Cake Shop, dentist, chemist shop and outdoor activities pursuits.
Ferry Quarter is just a short drive to Castle Ward Estate, Audley"s Castle, local woodland Trust nature walks and the beautiful beaches along the shoreline of the County Down Coast.
STRANGFORD VILLAGE - A MAGICAL PLACE TO LIVE
Enjoy a cosy pub lunch, or evening meal, a walk along the Lecale way or take the Strangford Ferry across the narrows for a day trip to Greyabbey and explore the local antique shops and Ards Peninsula.
Locally the area benefits from excellent schools and an easy commute to the city, and Downpatrick with a wide variety of local produce.
Strangford Village is a hub of activity with paddle boarding, canoe trails, sailing, walking, hiking, and sea swimming plus local activity, sailing or rowing clubs.
We aim to provide you with a home of fine appearance, maximum comfort and ease of maintenance.
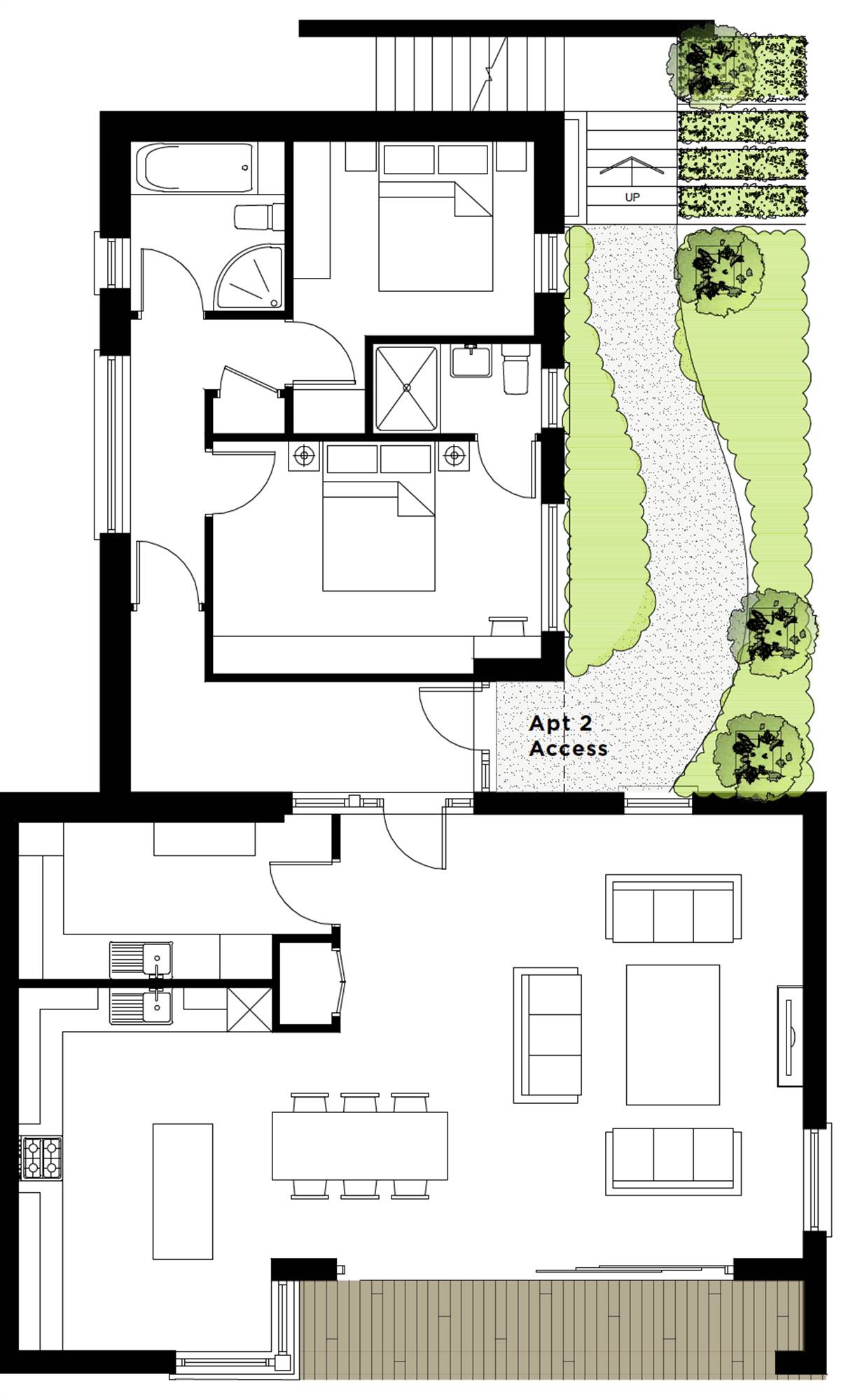
Rooms
KITCHEN / LOUNGE: 33' 10" X 18' 8" (10.31m X 5.69m)
max.
LARDER / UTILITY / STORE: 13' 6" X 6' 6" (4.11m X 1.98m)
BEDROOM (1): 14' 1" X 10' 2" (4.29m X 3.10m)
max.
ENSUITE: 7' 2" X 3' 11" (2.18m X 1.19m)
BEDROOM (2): 12' 9" X 10' 6" (3.89m X 3.20m)
max.
BATHROOM: 7' 6" X 6' 10" (2.29m X 2.08m)
Video
Broadband Speed Availability
Potential Speeds for 2 Ferry Quarter
Max Download
1000
Mbps
Max Upload
1000
MbpsThe speeds indicated represent the maximum estimated fixed-line speeds as predicted by Ofcom. Please note that these are estimates, and actual service availability and speeds may differ.
Property Location
Mortgage Calculator
Contact Agent
Contact Simon Brien (South Belfast)
Request More Information
Requesting Info about...
Coastguard Apartments, 2 Ferry Quarter, Shore Road, Strangford, BT30 7GT
By registering your interest, you acknowledge our Privacy Policy
By registering your interest, you acknowledge our Privacy Policy