Contact Agent

Contact Alexander Reid & Frazer

Contact Alexander Reid & Frazer

8 Bed Detached House

Strangford House , 39A Castle Street

Strangford, BT30 7NF

asking price £1,350,000
  • Status For Sale
  • Property Type Detached
  • Bedrooms 8
  • Receptions 4
  • Heating Oil
  • EPC Rating E49 / C77
  • Stamp Duty
    Higher amount applies when purchasing as buy to let or as an additional property
    £78,750 / £146,250*
  • Typical Mortgage
    Click price to use our mortgage calculator
EPC Rating

Key Features & Description

A stunning Georgian residence in Strangford village with an outstanding elevated position, overlooking Strangford Lough
Distinguished Grade B+ listed Georgian home dating from 1789
Generous accommodation offering eight bedrooms, four reception rooms, two bathrooms, two washrooms, a ground floor WC, and a lower-ground-floor utility room
Expansive, bright, double-aspect drawing and dining rooms with space for dining and entertaining, overlooking the lough and private gardens
Sash windows with spectacular sea views over Strangford Lough
Many dignified late-Georgian classical features, including original mouldings and decorative open fireplaces with individual motifs
Beautiful setting with established gardens, outbuildings and a garage
Option to include additional land available by separate negotiation
Benefits from full planning permission for an orangery extension
Description

Strangford House is nestled in a tranquil elevated position, in the heart of the beautiful seaside village of Strangford, Co. Down. It was built in 1789 and is a fine example of the Georgian townhouses beloved in Dublin at the time. The property is a grade B+ listed example of a Georgian House, offering stunning views over Strangford Lough and woodland surrounds.

Set within historic grounds, the property is approached via a private sweeping drive forming part of the property, rising from Castle Street, through a gated entrance to the main house. With beautifully proportioned accommodation arranged over four floors, the property combines period elegance with spacious family living. The historic house has many original Georgian features including; impressive ceiling heights, mahogany doors, fine historic fireplaces, ornate cornicing and many bright, double-aspect, sash-windowed rooms. The property is set within mature gardens with outbuildings, and planning permission for a striking orangery (Ref: LA07/2023/2105/F).

The ground floor offers elegant and well-proportioned reception spaces with a mix of solid wood and carpeted flooring. There is excellent scope for family living and entertaining, with two spacious reception rooms featuring unique sea views and period fireplaces. The kitchen and adjoining areas link naturally within the main house, providing an easy flow between the principal rooms.

The first floor offers two beautifully proportioned king-sized bedrooms and a third double bedroom or study, a formal drawing room, ornate cornicing and stunning sea views across Strangford Lough and the house"s private gardens.

A well-appointed family bathroom located on a split-level landing, includes an early Victorian WC, sympathetic to the historic character of the house.  

The upper floor provides three further good-sized bedrooms, two enjoying elevated views towards Strangford Lough and the surrounding countryside. This light-filled level offers excellent flexibility for family, with generous attic storage while maintaining the cohesive flow of this exceptional Georgian home.

The lower ground floor, includes family room area within the service quarters, offering a bright and versatile space with excellent natural light. The lower ground floor is reached from the main house via an internal staircase and externally, via the house's rear entrance, with convenient access through to the courtyard.

 

 

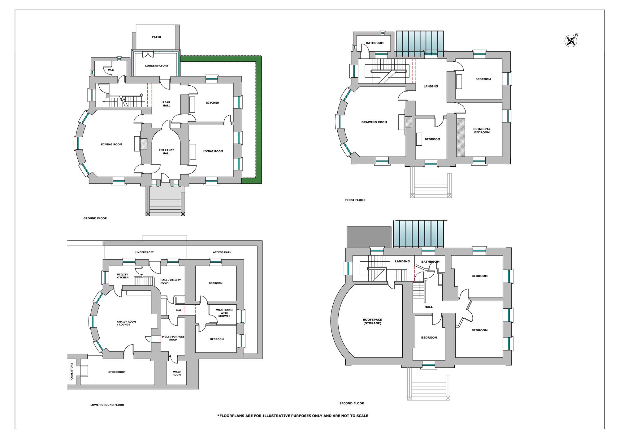
Rooms

Through a grand entrance of granite steps to the elevated front door, with fanlight and symmetrical side light windows, leads to the entrance hall.
ENTRANCE HALL: 16' 6" X 9' 8" (5.03m X 2.95m) Impressive Georgian aspidal entrance hall with original mouldings and solid wood flooring leading to the inner hall.
INNER HALLWAY: 15' 1" X 9' 10" (4.60m X 3.01m) Elegant reception hallway with high ceiling, original cornicing and period wood flooring leads to the sweeping, four-flight elegant stairway with decorative tread brackets and hand crafted wooden banister. Another staircase provides access to the lower ground level.
DINING ROOM: 22' 7" X 19' 6" (6.88m X 5.95m) Expansive, bright double-aspect reception room for dining and entertaining, four 12 pane sash windows, spectacular sea view of Strangford Lough and the private gardens, feature marble fireplace and period cornicing.
KITCHEN: 15' 0" X 13' 0" (4.58m X 3.97m) Family kitchen with high ceiling, fireplace, garden outlook, access via the inner hallway.
LIVING ROOM: 17' 5" X 14' 7" (5.32m X 4.45m) A generous reception room with a fireplace, enjoying unique views of Strangford Lough and the garden.
HALL/UTILITY ROOM: 15' 2" X 10' 4" (4.62m X 3.15m) Utility area at the rear entrance providing access to the courtyard.
CONSERVATORY: 14' 1" X 7' 10" (4.29m X 2.38m) Lean-to conservatory with garden access. Planning permission granted for replacement with an orangery (Ref: LA07/2023/2105/F).
DRAWING ROOM: 21' 9" X 19' 3" (6.63m X 5.87m) Stunning, spacious reception room with curved triple-bay window overlooking the private gardens and the front aspect again offering unique views of Strangford Lough. This room has a fine example of a Georgian decorative fireplace, ornate cornicing, and gold leaf ornamental mouldings.
FAMILY ROOM: 20' 1" X 18' 1" (6.12m X 5.51m) Spacious family room with log burning stove, storage and bay window.
DOWNSTAIRS WC: With WC and washbasin.
UTILITY KITCHEN 12' 9" X 6' 11" (3.89m X 2.11m) As shown on the floor plan.
PRINCIPAL BEDROOM 17' 5" X 14' 7" (5.32m X 4.44m) Spacious king-sized room with two large sash windows with spectacular views across the gardens and Strangford Lough.
BEDROOM / STUDY: 13' 4" X 9' 12" (4.06m X 3.04m) Double bedroom also suitable as a nursery or study.The room also features a beautiful sea view and fireplace.
BEDROOM: 14' 12" X 12' 11" (4.57m X 3.94m) Large, king-size double bedroom with fireplace and double garden aspect to the rear facing onto private lawn.
BATHROOM: Bathroom with an early Victorian WC.
BEDROOM: 17' 5" X 14' 10" (5.31m X 4.52m) Light-filled double room, enjoying elevated views toward Strangford Lough and the surrounding countryside.
BATHROOM: With bath, WC and handbasin.
BEDROOM: 14' 12" X 12' 12" (4.57m X 3.96m) Light-filled double room, enjoying elevated views toward Strangford Lough and the surrounding countryside.
BEDROOM: 13' 7" X 9' 4" (4.14m X 2.84m) Double bedroom with skylight providing natural overhead light.
BEDROOM: 13' 3" X 11' 3" (4.04m X 3.43m) Good-sized double bedroom with sash window.
WASHROOM As shown on the floor plan.
BEDROOM: 13' 7" X 8' 6" (4.14m X 2.59m) Double bedroom with sash window.
MULTI-PURPOSE ROOM: 12' 10" X 8' 3" (3.91m X 2.51m) Internal room suitable for fitness, storage or flexible use.
WASHROOM As shown on the floor plan.
Externally, the property enjoys beautiful private grounds with mature gardens, a lawned area, outbuildings and a garage, all combining to create a wonderful sense of space and seclusion. The property comprises of Strangford House, its private driveway from Castle Street, front and back gardens, outlined in red on the accompanying map.
OUTBUILDINGS: The property includes a range of existing outbuildings within the curtilage, comprising a garage and various storage sheds. These structures provide excellent scope for storage, hobbies or ancillary use within the grounds.
OPTION OF ADDITIONAL LAND (By separate negotiation): The adjoining land shown in hatched blue, is available by separate negotiation. This adjoining land offers excellent versatility for recreational or amenity purposes, subject to any necessary consents.
MAPS & PHOTOGRAPHY: For all maps and aerial photography - approximate boundaries of the property are outlined in red for identification purposes only and are subject to land registry confirmation (Folio DN213366). The walled garden (hatched in grey on the map) currently forms part of the same Folio (Folio DN213366), but is excluded from the sale and will be retained by the vendors. Certain items and equipment visible in imagery are not included in the sale.
All measurements within these particulars are approximate and for guidance only.

Video

Property Location

Show Map

Mortgage Calculator

Disclaimer: The following calculations act as a guide only, and are based on a typical repayment mortgage model. Financial decisions should not be made based on these calculations and accuracy is not guaranteed. Always seek professional advice before making any financial decisions.

Directions

.

Contact Agent

Contact Alexander Reid & Frazer

Contact Alexander Reid & Frazer

Request More Information
Requesting Info about...
Strangford House , 39A Castle Street, Strangford, BT30 7NF Strangford House , 39A Castle Street, Strangford, BT30 7NF

By registering your interest, you acknowledge our Privacy Policy
Ask Holmes
Ask Holmes
Let's find your next home

Are you sure you want to reset the chat?

Checking API...