Contact Agent

Contact Ronan McAnenny Sales & Lettings

Contact Ronan McAnenny Sales & Lettings

Land (Multple Dwelling)

Development Site @ Mount Carmel Heights

Strabane, BT82

offers over £150,000
  • Status Sale Agreed
  • Property Type Land (Multple Dwelling)
  • Stamp Duty
    Higher amount applies when purchasing as buy to let or as an additional property
    £500 / £8,000*
  • Typical Mortgage
    Click price to use our mortgage calculator

Description

CLOSING DATE FOR OFFERS MIDDAY FRIDAY 13/03/2026


Prime Residential Development Opportunity


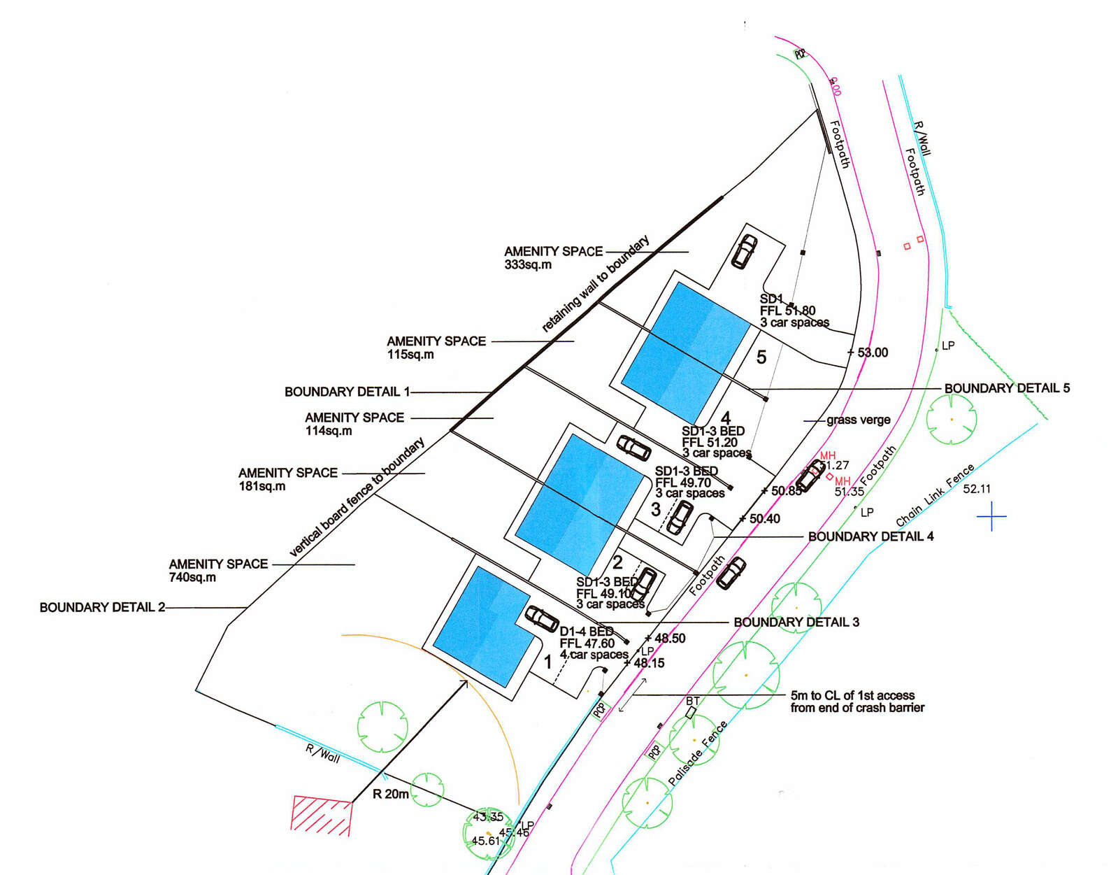
Lands between 11 & 12 Evish Grove and 172 Mount Carmel Heights, Strabane

Ronan.co is delighted to introduce this rare residential development site to the market. Situated in one of Strabane’s most sought-after residential locations, this unique site offers a prime investment opportunity within walking distance of the bustling town centre and essential local amenities.


Development Overview

    • Site Area: Extending to over 0.265 Hectares (approx. 0.65 acres).
    • Planning Status: Full Reserved Matters Planning Permission granted.
    • Reference: LA11/2019/0503/RM.
    • Approved Dwellings:
  • 1 No. Detached Home
  • 4 No. Semi-Detached Homes

Exceptional Location

  • Accessibility: Perfectly positioned for families, with high-demand local schools and the Melvin Leisure Centre complex nearby.
  • Market Strength: House prices in the Derry City and Strabane area have seen robust growth, with a 14.5% annual increase reported in late 2025, reflecting strong buyer demand for quality new-build homes.
  • Convenience: Residents will benefit from close proximity to local amenities.


Enquire Now

    • Full details, including architectural plans and site maps, are available upon request. To discuss this site or arrange a viewing, please contact our office:
  • Phone: 02871 886910
  • Email: info@ronan.co
  • Office: 5 John Wesley Street, Strabane, BT82 8RJ 

Property Location

Show Map

Mortgage Calculator

Disclaimer: The following calculations act as a guide only, and are based on a typical repayment mortgage model. Financial decisions should not be made based on these calculations and accuracy is not guaranteed. Always seek professional advice before making any financial decisions.

Contact Agent

Contact Ronan McAnenny Sales & Lettings

Contact Ronan McAnenny Sales & Lettings

Request More Information
Requesting Info about...
Development Site @ Mount Carmel Heights, Strabane, BT82 Development Site @ Mount Carmel Heights, Strabane, BT82

By registering your interest, you acknowledge our Privacy Policy
Ask Holmes
Ask Holmes
Let's find your next home

Are you sure you want to reset the chat?

Checking API...