4 Bed Detached House
16 Castlehill Wood
Belfast, County Antrim, BT4 3PJ
offers over
£575,000
Key Features & Description
Description
This exceptional five bedroom, detached home is set within the highly sought-after Castlehill Wood development, a recently completed enclave tucked just off the Stormont Estate. Combining contemporary design with generous proportions, the property is finished to an exacting standard throughout and offers superb family living in one of East Belfast´s most desirable locations.
The accommodation is both bright and spacious. The ground floor is centred around an impressive entrance hallway, leading to the living room, guest WC and a stunning open-plan kitchen / dining area. The kitchen is sleek and modern, fully fitted with integrated appliances, while a separate utility area discreetly houses the washing machine and dryer. French doors from the dining area open directly onto a generous enclosed rear garden, ideal for entertaining and family use.
On the first floor, the principal bedroom suite is complete with a walk-in dressing room and stylish shower en-suite. Two further well-proportioned double bedrooms are located on this level, either of which would lend themselves perfectly to a home office or study if required. The main family bathroom is finished to a high standard, featuring a separate bath and a contemporary rainfall shower.
The second floor accommodates two additional large double bedrooms, and a further full bathroom with corner shower completes this level.
Externally, the property benefits from a private driveway providing off-street parking and a well-maintained rear garden laid in lawn with patio area, ideal for outdoor entertaining
Castlehill Wood is ideally positioned beside the Stormont Estate, offering immediate access to woodland walks, parkland and outdoor leisure. The property is within easy reach of Ballyhackamore, Dundonald and Eastpoint Entertainment Village, with an excellent selection of cafés, restaurants and shops nearby. The area is also well served by leading primary and post-primary schools.
Early viewing is strongly recommended to avoid disappointment.
This exceptional five bedroom, detached home is set within the highly sought-after Castlehill Wood development, a recently completed enclave tucked just off the Stormont Estate. Combining contemporary design with generous proportions, the property is finished to an exacting standard throughout and offers superb family living in one of East Belfast´s most desirable locations.
The accommodation is both bright and spacious. The ground floor is centred around an impressive entrance hallway, leading to the living room, guest WC and a stunning open-plan kitchen / dining area. The kitchen is sleek and modern, fully fitted with integrated appliances, while a separate utility area discreetly houses the washing machine and dryer. French doors from the dining area open directly onto a generous enclosed rear garden, ideal for entertaining and family use.
On the first floor, the principal bedroom suite is complete with a walk-in dressing room and stylish shower en-suite. Two further well-proportioned double bedrooms are located on this level, either of which would lend themselves perfectly to a home office or study if required. The main family bathroom is finished to a high standard, featuring a separate bath and a contemporary rainfall shower.
The second floor accommodates two additional large double bedrooms, and a further full bathroom with corner shower completes this level.
Externally, the property benefits from a private driveway providing off-street parking and a well-maintained rear garden laid in lawn with patio area, ideal for outdoor entertaining
Castlehill Wood is ideally positioned beside the Stormont Estate, offering immediate access to woodland walks, parkland and outdoor leisure. The property is within easy reach of Ballyhackamore, Dundonald and Eastpoint Entertainment Village, with an excellent selection of cafés, restaurants and shops nearby. The area is also well served by leading primary and post-primary schools.
Early viewing is strongly recommended to avoid disappointment.
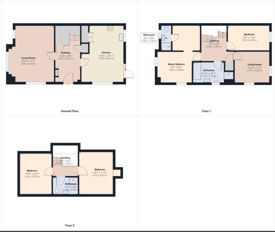
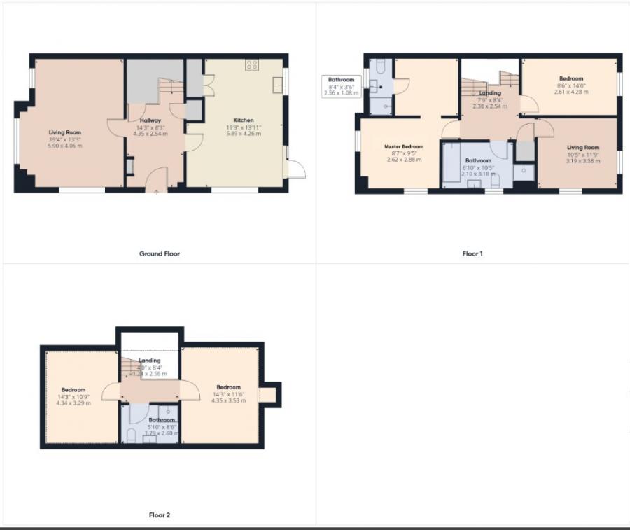
Rooms
Entrance
Composite front door with top light, leading through to spacious reception hall.
Spacious Reception Hall
Tiled flooring, storage cupboard, access to downstairs WC.
Downstairs WC
White suite comprising of low flush WC, vanity unit with wash hand basin and mixer tap, tiled flooring, extractor fan, vertical heated towel rail.
Living Room 19'6" X 15'9" (5.94m X 4.80m)
Laminate wood effect flooring, dual aspect to front and side.
Kitchen Dining 19'9" X 14'6" (6.02m X 4.42m)
Fantastic range of high and low level units, granite work surfaces with stainless steel sink unit and drainer 1.5 tub with mixer tap, integrated oven, four ring gas hob, extractor fan, granite kitchen splash back, integrated fridge freezer, integrated dishwasher, tiled flooring, recessed spotlighting, open to dining area with access door through to rear garden.
Storage Cupboard
Plumbed for washing machine, space for tumble dryer.
Stairs & Landing to First Floor
Storage cupboard with hot water tank, pressurized water system.
Principle Bedroom 14'5" X 10'9" (4.40m X 3.28m)
Dual aspect to front and side, open to walk-in dressing room with recessed spotlighting, following through to ensuite shower room.
Ensuite Shower Room
White suite comprising of low flush WC, vanity unit with wash hand basin and mixer tap, thermostatically controlled shower with rainfall shower head and handset, partly tiled walls, tiled flooring, recessed spotlighting, vertical heated towel rail.
Bedroom 2 14'6" X 8'6" (4.42m X 2.60m)
Outlook to side.
Bedroom 3 12'1" X 10'6" (3.68m X 3.20m)
Dual aspect to front and side.
Bathroom
White suite comprising of low flush WC, circular wash hand basin with mixer tap, storage below, stand alone bath with mixer tap and handset, walk-in thermostatically controlled shower with rainfall shower head and handset, recessed shelving, partly tiled walls, tiled flooring, recessed spotlighting, extractor fan.
Stairs & Landing to Second Floor
Bedroom 4 14'4" X 10'9" (4.37m X 3.28m)
Velux window.
Bedroom 5 14'6" X 14'4" (4.42m X 4.37m)
Velux window.
Shower Room
White suite comprising of low flush WC, wash hand basin with mixer tap, storage below, walk-in mirror sport shower unit, partly tiled walls, tiled flooring, recessed spotlighting, extractor fan.
Outside
Driveway for off street car parking. Side garden laid in lawn with paved patio area, ideal for outdoor entertaining.
Property Location
Mortgage Calculator
Contact Agent
Contact Simon Brien (East Belfast)
Request More Information
Requesting Info about...
16 Castlehill Wood, Belfast, County Antrim, BT4 3PJ
By registering your interest, you acknowledge our Privacy Policy
By registering your interest, you acknowledge our Privacy Policy