Contact Agent

Contact Templeton Robinson (Ballyhackamore)

Contact Templeton Robinson (Ballyhackamore)

5 Bed Detached House

23 Castlehill Wood

Off Castlehill Road, Belfast, BT4 3PJ

offers over £575,000
  • Status Sale Agreed
  • Property Type Detached
  • Bedrooms 5
  • Receptions 2
  • Heating Gas
  • EPC Rating B85 / B85 -
  • Stamp Duty
    Higher amount applies when purchasing as buy to let or as an additional property
    £18,750 / £47,500*
  • Typical Mortgage
    Click price to use our mortgage calculator
EPC Rating

Key Features & Description

Contemporary detached family home in heart of East Belfast
Constructed in 2021 and extending to circa 2,400 sqft
Lounge with feature gas fire
Open plan kitchen/living/dining area with centre island
Separate utility room/Ground floor WC
Four double bedrooms, principal with ensuite
Fifth bedroom currently fitted with extensive robes and drawer
Family bathroom/Additional second floor shower room
uPVC Double glazing/Gas central heating
Driveway parking/Additional visitor parking area
Private and enclosed South facing rear garden in lawn with patio seating area
Secure gated playpark for residents
Close to local leading schools, Ballyhackamore and Belmont Villages and Stormont Estate
Description
Constructed in 2021, this contemporary detached family home is immaculately presented throughout. Extending to circa 2,400 sqft, the property offers excellent accommodation arranged over three floors.

The lounge boasts a stunning feature gas fireplace, with bright and airy open plan kitchen/living/dining area boasting an impressive centre island and separate utility room. There are five double bedrooms, one of which has been converted into a fully fitted dressing room.

No 23 is ideally positioned in a quiet cul de sac location with the popular Castlehill Wood development and enjoys a private and enclosed South facing rear garden in lawn. Located in the heart of East Belfast, the property is within walking distance of leading local schools, Stormont Estate and a Glider stop, ideal for commuters

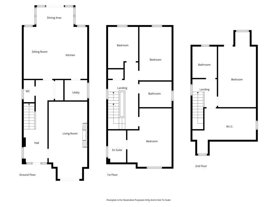
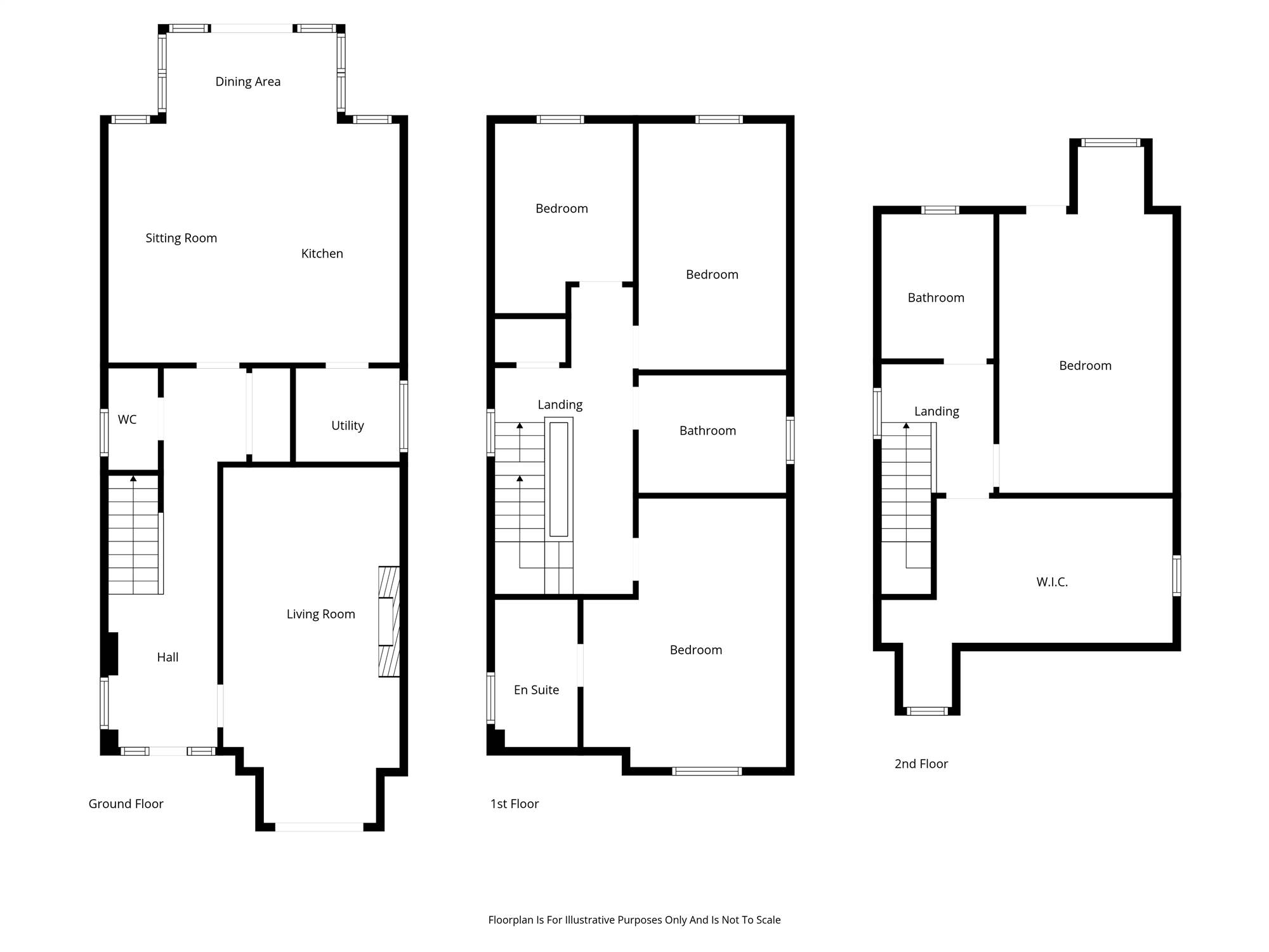
Rooms

Front door with glazed side panel.
ENTRANCE HALL: Tiled floor, cloakroom.
DOWNSTAIRS W.C.: White site comprising low flush wc, wash hand basin, tiled floor.
LOUNGE: 22' 1" X 11' 6" (6.73m X 3.51m) Feature contemporary gas fire, laminate wood effect fire.
KITCHEN / LIVING / DINING: 20' 3" X 18' 7" (6.17m X 5.66m) Modern fitted kitchen with range of high and low level units, five ring gas hob, extractor hood. Electric double oven, integrated fridge/freezer, microwave oven, centre island with one and a half bowl sink unit, marble work surfaces, integrated dishwasher, breakfast bar area. Casual dining area, living area with glazed double doors to rear. Tiled floor, low voltage spotlights, Velux window.
UTILITY ROOM: Low level units, single drainer stainless steel sink unit, plumbed for washing machine, tiled floor, gas boiler cupboard.
PRINCIPAL BEDROOM: 16' 7" X 12' 7" (5.05m X 3.84m) (at widest points). Storage cupboard. Laminate wooden floor.
ENSUITE SHOWER ROOM: White suite comprising walk-in shower cubicle, wash hand basin, low flush wc, tiled floor, part tiled walls, chrome heated towel rail, work surfaces.
BEDROOM (2): 15' 9" X 9' 4" (4.80m X 2.84m)
BEDROOM (3): 12' 4" X 8' 10" (3.76m X 2.69m)
BATHROOM: Contemporary white suite comprising free standing bath with telephone hand shower, low flush wc, vanity sink unt, fully tiled walls, tiled floor, low voltage spotlights.
BEDROOM (4): 21' 10" X 10' 10" (6.65m X 3.30m)
BEDROOM (5): 18' 7" X 13' 2" (5.66m X 4.01m) (at widest points). Built-in robes and dressing table.
SHOWER ROOM: Contemporary white suite comprising shower cubicle, vanity sink unit, low flush wc, fully tiled walls, tiled floor, heated towel rail, Velux window.
FRONT: Garden in lawn. Driveway parking for several cars.
REAR: Private and enclosed south facing garden in lawn with patio seating area.

Broadband Speed Availability

Ultrafast

Potential Speeds for 23 Castlehill Wood

Max Download
1800
Mbps
Max Upload
220
Mbps
The speeds indicated represent the maximum estimated fixed-line speeds as predicted by Ofcom. Please note that these are estimates, and actual service availability and speeds may differ.

Property Location

Show Map

Mortgage Calculator

Disclaimer: The following calculations act as a guide only, and are based on a typical repayment mortgage model. Financial decisions should not be made based on these calculations and accuracy is not guaranteed. Always seek professional advice before making any financial decisions.

Directions

Heading towards Stormont, turn left at the Castlehill Road traffic lights. Turn right onto Castlehill Manor which leads into Castlehill Wood. Property located on right at bottom of cul de sac.

Contact Agent

Contact Templeton Robinson (Ballyhackamore)

Contact Templeton Robinson (Ballyhackamore)

Request More Information
Requesting Info about...
23 Castlehill Wood, Off Castlehill Road, Belfast, BT4 3PJ 23 Castlehill Wood, Off Castlehill Road, Belfast, BT4 3PJ

By registering your interest, you acknowledge our Privacy Policy
Ask Holmes
Ask Holmes
Let's find your next home

Are you sure you want to reset the chat?

Checking API...