Contact Agent
Contact Templeton Robinson (Ballyhackamore)
2 Bed Apartment
10 Cabin Hill Mews
Stormont, Belfast, BT5 7AE
offers over
£149,950
Key Features & Description
Spacious first floor apartment in convenient Stormont location
Only a short stroll from local shops, cafes and a Glider stop
Over 55's development
2 Well proportioned bedrooms with fitted wardrobes
Spacious living room with bay window
Separate modern kitchen
Shower room with modern white suite
Economy 7 central heating
Quiet cul-de-sac location with generous parking
24 Hour Careline, residents day room, Management company
Description
Cabin Hill Mews is nestled away in a quiet cul de sac just off the Upper Newtownards Road, Stormont. Specifically designed for the over 55's, this delightful first floor apartment is a perfect opportunity for those hoping to downsize in the East Belfast area.
The accommodation comprises of spacious lounge with bay window, separate modern kitchen and two well-proportioned bedrooms, both with built in robes. There is a refurbished shower room with contemporary white suite. The property also benefits from generous storage and its own front door. Externally there is access to a communal garden in lawn to rear and resident and visitor parking.
This is an ideal location for a buyer looking for a low-maintenance property which is a short stroll from local amenities and public transport routes.
Cabin Hill Mews is nestled away in a quiet cul de sac just off the Upper Newtownards Road, Stormont. Specifically designed for the over 55's, this delightful first floor apartment is a perfect opportunity for those hoping to downsize in the East Belfast area.
The accommodation comprises of spacious lounge with bay window, separate modern kitchen and two well-proportioned bedrooms, both with built in robes. There is a refurbished shower room with contemporary white suite. The property also benefits from generous storage and its own front door. Externally there is access to a communal garden in lawn to rear and resident and visitor parking.
This is an ideal location for a buyer looking for a low-maintenance property which is a short stroll from local amenities and public transport routes.
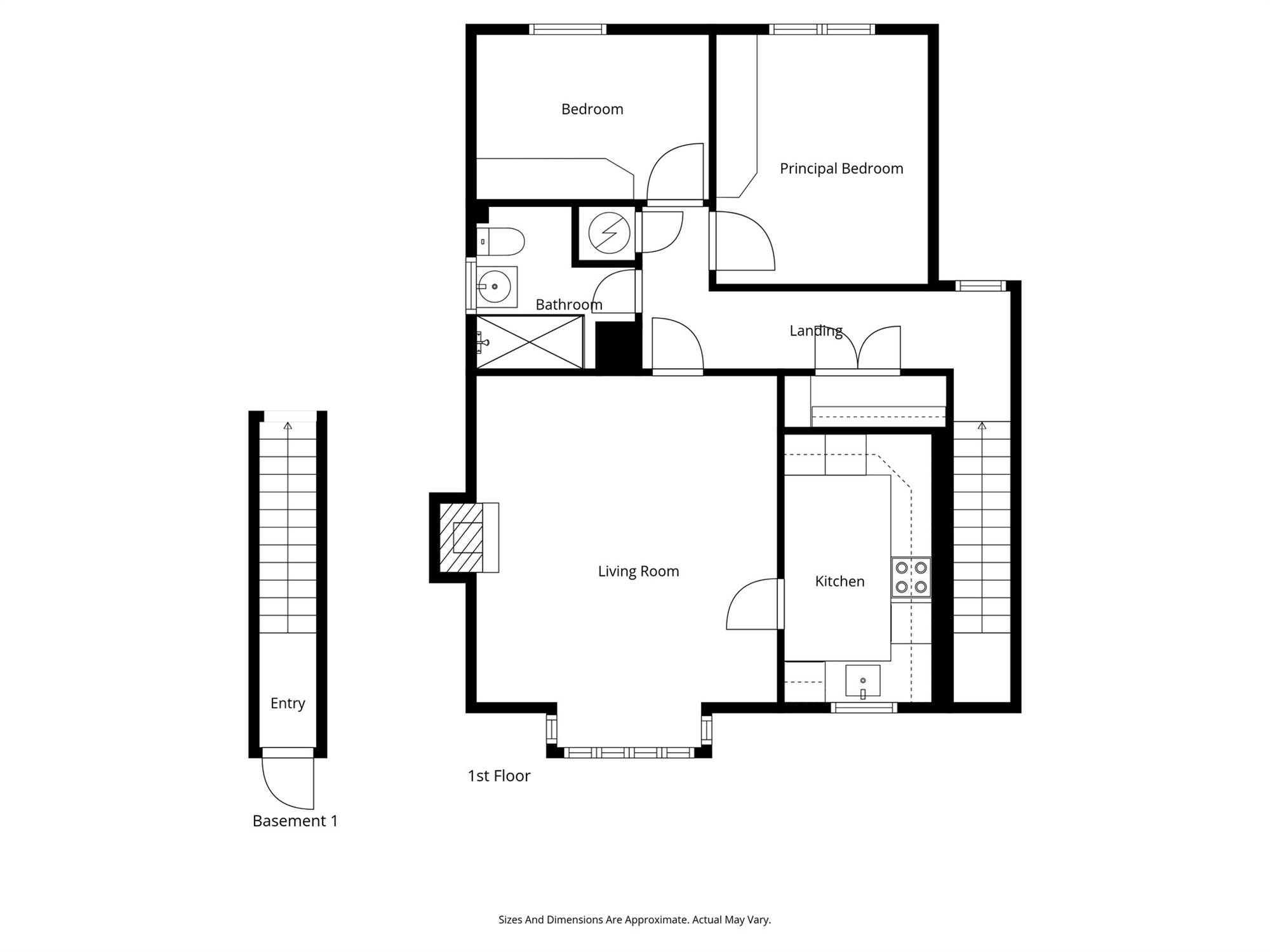
Rooms
Front door. Stairs to . . .
ENTRANCE HALL:
Storage cupboard, access to partly floored roofspace via Slingsby style ladder, shelved hotpress.
LOUNGE: 17' 10" X 14' 6" (5.43m X 4.43m)
KITCHEN: 13' 0" X 7' 1" (3.97m X 2.15m)
Modern fitted kitchen with ange of high and low level units, stainless steel single drainer sink unit, alcove for cooker, stainless steel extractor hood, integrated dishwasher, plumbed for washing machine, fully tiled walls, tiled floor.
BEDROOM (1): 12' 4" X 10' 6" (3.75m X 3.19m)
Built- in wardobes.
BEDROOM (2): 11' 1" X 8' 0" (3.38m X 2.44m)
Built-in wardrobes.
SHOWER ROOM:
Modern white suite comprising walk-in shower cubicle with Mira electric shower, pedestal wash hand basin, low flush wc, chrome towel rail, fully tiled walls, tiled floor.
Communal gardens, flagged side garden and rear garden in awn. Ample resident and visitor parking.
Westhorpe Management Ltd, Lyndhurst Court, Bangor, BT19 1AP
Approximately £85 per month.
* The sum equivalent to 1% of the sale price for each year of ownership (up to a maximum of 5%) to be paid to the Management Company on the completion of any future sale.
Broadband Speed Availability
Potential Speeds for 10 Cabin Hill Mews
Max Download
1800
Mbps
Max Upload
220
MbpsThe speeds indicated represent the maximum estimated fixed-line speeds as predicted by Ofcom. Please note that these are estimates, and actual service availability and speeds may differ.
Property Location
Mortgage Calculator
Directions
Coming out of Belfast on the Upper Newtownards Road go through Knock Lights and Cabin Hill Mews is on the right hand side after the Gardens, just before shops.
Contact Agent
Contact Templeton Robinson (Ballyhackamore)
Request More Information
Requesting Info about...
10 Cabin Hill Mews, Stormont, Belfast, BT5 7AE
By registering your interest, you acknowledge our Privacy Policy
By registering your interest, you acknowledge our Privacy Policy