Contact Agent

Contact Templeton Robinson (Ballyhackamore)
2 Bed Apartment
2 Cabin Hill Mews
Stormont, Belfast, BT5 7AE
offers over
£149,950

Key Features & Description
First floor apartment (with stair lift) exclusively for over 55's
Own front door
Two double bedrooms, both with robes
Bright, spacious living room with dining area
Separate kitchen
Contemporary shower room
Recently installed double glazing
Electric Economy 7 heating
Air re-circulation system
Roofspace
Door entry intercom/Pull-cord alert system
Internal and external storage cupboards
Resident and visitor car parking
Well-tended, communal gardens
Short stroll to Stormont and Glider stops to Dundonald, Ballyhackamore and City Centre
No onward chain
Description
Tucked away in a cul de sac a mile from Ballyhackamore Village and close to the beautiful grounds of the Stormont Estate, Cabin Hill Mews is a highly regarded development exclusively designed for the over 55's.
Number two is a bright, well-proportioned apartment with its own front door. Stairs and a chair lift take you up to the accommodation on the first floor.
Externally there is ample parking, storage plus attractive gardens which are maintained by the management company.
We have no hesitation in recommending early inspection as soon as possible with recent sales in the scheme proving very popular.
Tucked away in a cul de sac a mile from Ballyhackamore Village and close to the beautiful grounds of the Stormont Estate, Cabin Hill Mews is a highly regarded development exclusively designed for the over 55's.
Number two is a bright, well-proportioned apartment with its own front door. Stairs and a chair lift take you up to the accommodation on the first floor.
Externally there is ample parking, storage plus attractive gardens which are maintained by the management company.
We have no hesitation in recommending early inspection as soon as possible with recent sales in the scheme proving very popular.
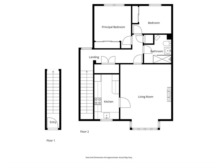
Rooms
Own front door.
HALLWAY:
Stairs (and stair lift which is included in sale) to:
LANDING:
Good-sized, built-in storage cupboard. Clothes rail and shelf. Access to roofspace. Shelved hotpress.
BEDROOM (1): 12' 0" X 7' 10" (3.66m X 2.39m)
Cornice ceiling. Built-in robes with mirror fronted sliding doors.
BEDROOM (2): 11' 2" X 7' 10" (3.41m X 2.40m)
Cornice ceiling.
LIVING / DINING: 17' 11" X 14' 6" (5.45m X 4.41m)
(into bay). Cornice ceiling. Decorative fireplace. Entry phone.
KITCHEN: 12' 10" X 7' 1" (3.90m X 2.15m)
Good range of high and low level units including leaded glass display cabinets. Breakfast bar. Single drainer stainless steel sink unit. Zanussi cooker with extractor fan over. Plumbed or washing machine. Part tiled walls.
SHOWER ROOM:
Fully tiled with walk-in shower enclosure and screen, Mira "Go" electric shower. Low flush wc, pedestal wash hand basin. Built-in bathroom cabinet storage.
Communal gardens and parking areas. Storage cupboards.
Garden to rear laid in lawns.
FOUR SEASONS HEALTHCARE.
SERVICE CHARGE: CURRENTLY £83.49 PER MONTH
PLEASE NOTE: The sum equivalent to 1% of the sale price for each year of ownership (up to a maximum of 5%) to be paid to the Management Company on the completion of any future sale.
Broadband Speed Availability
Potential Speeds for 2 Cabin Hill Mews
Max Download
1800
Mbps
Max Upload
220
MbpsThe speeds indicated represent the maximum estimated fixed-line speeds as predicted by Ofcom. Please note that these are estimates, and actual service availability and speeds may differ.
Property Location

Mortgage Calculator
Directions
Travelling along the Upper Newtownards Road countrybound from Knock lights, Cabin Hill Mews is on the right just before the shops at the traffic lights at Castlehill Road.
Contact Agent

Contact Templeton Robinson (Ballyhackamore)
Request More Information
Requesting Info about...
2 Cabin Hill Mews, Stormont, Belfast, BT5 7AE
By registering your interest, you acknowledge our Privacy Policy

By registering your interest, you acknowledge our Privacy Policy