Contact Agent
Contact Ulster Property Sales (UPS) Lisburn Road
3 Bed Detached Bungalow
27 Cleaver Avenue
South Belfast, BT9 5JA
price guide
£650,000
Key Features & Description
Charming Detached Three Bedroom Bungalow
Generous South Facing Site
Bright & Spacious Accommodation
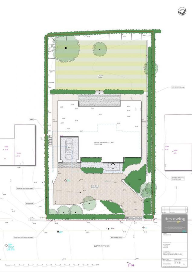
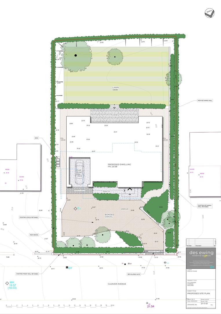
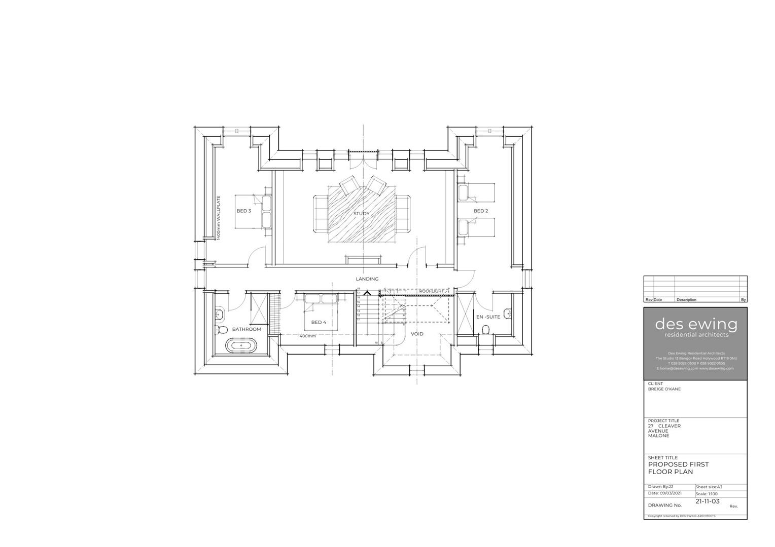
Planning Permission In Place For Demolition & Redevelopment
Driveway Providing Ample Parking Space, Car Port & Utility
Gas Fired Central Heating
Attractive Original Features In Place
Sought After Location Close To Recreational, Educational & Cultural Amenities
Large Lounge With Pleasant Outlook Overlooking South Facing Garden
A Chain Free, Unique Opportunity
Description
27 Cleaver Avenue is a rare opportunity to acquire a detached bungalow occupying a generous south - facing site, situated in a desirable and well established location. This charming bungalow offers bright and well proportioned accommodation which may be adapted as required. Full planning permission has been granted for demolition and the construction of a new one and a half storey detached dwelling, designed by award winning architect Des Ewing, which offers potential for further enhancement.
Nestled within a private, elevated site, the property enjoys an abundance of natural light throughout the day and provides a warm and welcoming atmosphere, perfectly suited to a range of buyers including families and those wishing to downsize.
The accommodation comprises a spacious lounge, kitchen, three comfortable bedrooms - one of which has an en-suite bathroom and a family bathroom. Large windows to the rear make the most of the sunny orientation, while the private garden provides an ideal space for outdoor entertaining.
The generous plot offers excellent scope to extend, reconfigure, or modernise to create a truly special home tailored to individual tastes. This is a rare opportunity to secure a property that can grow with your needs.
27 Cleaver Avenue is a rare opportunity to acquire a detached bungalow occupying a generous south - facing site, situated in a desirable and well established location. This charming bungalow offers bright and well proportioned accommodation which may be adapted as required. Full planning permission has been granted for demolition and the construction of a new one and a half storey detached dwelling, designed by award winning architect Des Ewing, which offers potential for further enhancement.
Nestled within a private, elevated site, the property enjoys an abundance of natural light throughout the day and provides a warm and welcoming atmosphere, perfectly suited to a range of buyers including families and those wishing to downsize.
The accommodation comprises a spacious lounge, kitchen, three comfortable bedrooms - one of which has an en-suite bathroom and a family bathroom. Large windows to the rear make the most of the sunny orientation, while the private garden provides an ideal space for outdoor entertaining.
The generous plot offers excellent scope to extend, reconfigure, or modernise to create a truly special home tailored to individual tastes. This is a rare opportunity to secure a property that can grow with your needs.
Rooms
THE ACCOMMODATION COMPRISES
ON THE GROUND FLOOR
ENTRANCE PORCH
RECEPTION HALL
Storage off.
LOUNGE 20'4" X 19'8" (6.20m X 6.00m)
Brick fireplace. Cornice & picture rail. Laminate wood floor.
CONSERVATORY
KITCHEN 16'0" X 14'1" (4.90m X 4.30m)
Contemporary range of high and low level units, integrated oven, 4 ring hob & stainless steel extractor fan.
BEDROOM ONE 11'9" X 11'5" (3.60m X 3.50m)
Solid wood floor.
ENSUITE BATHROOM
White suite comprising low flush W.C, panel bath, pedestal wash hand basin.
BEDROOM TWO 14'1" X 11'1" (4.30m X 3.40m)
Solid wood floor.
BEDROOM THREE 9'6" X 9'6" (2.90m X 2.90m)
Laminate wood floor.
BATHROOM
White suite comprising low flush W.C, panel bath with electric shower over, pedestal wash hand basin.
OUTSIDE
Private, enclosed south facing garden to rear in lawn.
PLANNING PERMISSION
Planning permission has been granted for the demolition of the existing dwelling & car port and the construction of a new one and a half storey detached dwelling along with associated site works. Full details can be obtained by contacting our office.
Broadband Speed Availability
Potential Speeds for 27 Cleaver Avenue
Max Download
10000
Mbps
Max Upload
10000
MbpsThe speeds indicated represent the maximum estimated fixed-line speeds as predicted by Ofcom. Please note that these are estimates, and actual service availability and speeds may differ.
Property Location
Mortgage Calculator
Contact Agent
Contact Ulster Property Sales (UPS) Lisburn Road
Request More Information
Requesting Info about...
27 Cleaver Avenue, South Belfast, BT9 5JA
By registering your interest, you acknowledge our Privacy Policy
By registering your interest, you acknowledge our Privacy Policy