Contact Agent
Contact Dalzell Property (Lisburn)
Site with FPP
FULL PLANNING PERMISSION GRANTED FOR 37 UNITS , 8-10 Main Street
Scarva, BT63 0LS
price
£1,400,000
- Status Sale Agreed
- Property Type Site with FPP
-
Stamp Duty
Higher amount applies when purchasing as buy to let or as an additional property£83,750 / £153,750*
Description
Scarva is an award winning historic village 7 miles west of Banbridge and with excellent road links to Newry and Banbridge and is also located on the main Belfast to Dublin rail link.
In recent times with the Newry Canal being developed it has been a popular tourist attraction in the village.
These prime lands are located within the village and have good road frontage on to the Main Street.
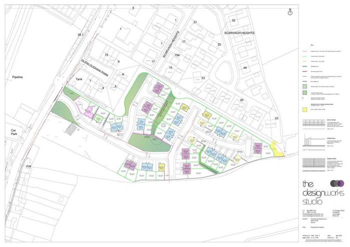
The lands total about 5.5 acres and slope gradually up from Main Street. The lands have the benefit of planning permission for 37 dwellings with the opportunity of more sites on the lands excluded from the permission but included in the sale.
The planning reference number is LA08/2023/1815/RM
Condition of sale will include:
1. The land is being sold on the basis of the existing planning permission LA08/2023/1815/RM and offers subject to variations in the layout or density will not be considered.
2. A right of way exists as shown on the attached plan. The purchaser will be responsible for hard coring and fencing it off from the building land.
3. Access service land will be reserved to provide access to the rear of 12 Main Street Scarva.
4. All offers are to be in writing (emails accepted) providing name and address of offerers along with the name of solicitor and clear confirmation that finance is available to purchase and that the bidder accepts these conditions.
For all enquiries, please contact Andrew Dalzell MRICS on 07766527639 or andrew@dalzellproperty.com and Fred Dalzell MRICS on 07748187716 or hello@dalzellproperty.com.
In recent times with the Newry Canal being developed it has been a popular tourist attraction in the village.
These prime lands are located within the village and have good road frontage on to the Main Street.
The lands total about 5.5 acres and slope gradually up from Main Street. The lands have the benefit of planning permission for 37 dwellings with the opportunity of more sites on the lands excluded from the permission but included in the sale.
The planning reference number is LA08/2023/1815/RM
Condition of sale will include:
1. The land is being sold on the basis of the existing planning permission LA08/2023/1815/RM and offers subject to variations in the layout or density will not be considered.
2. A right of way exists as shown on the attached plan. The purchaser will be responsible for hard coring and fencing it off from the building land.
3. Access service land will be reserved to provide access to the rear of 12 Main Street Scarva.
4. All offers are to be in writing (emails accepted) providing name and address of offerers along with the name of solicitor and clear confirmation that finance is available to purchase and that the bidder accepts these conditions.
For all enquiries, please contact Andrew Dalzell MRICS on 07766527639 or andrew@dalzellproperty.com and Fred Dalzell MRICS on 07748187716 or hello@dalzellproperty.com.
Property Location
Mortgage Calculator
Directions
Main Street Scarva.
Contact Agent
Contact Dalzell Property (Lisburn)
Request More Information
Requesting Info about...
FULL PLANNING PERMISSION GRANTED FOR 37 UNITS , 8-10 Main Street, Scarva, BT63 0LS
By registering your interest, you acknowledge our Privacy Policy
By registering your interest, you acknowledge our Privacy Policy