Development Site @ Grand Jury Lane
Off Old Grand Jury Road, Saintfield, BT24 7FS
asking price
£400,000
- Status For Sale
-
Stamp Duty
Higher amount applies when purchasing as buy to let or as an additional property£10,000 / £30,000*
Key Features & Description
Ready to Go Residential Development Site Situated in this Much Sought After Area of Saintfield
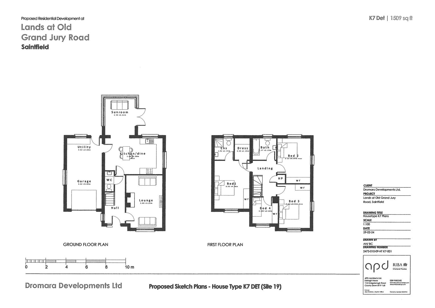
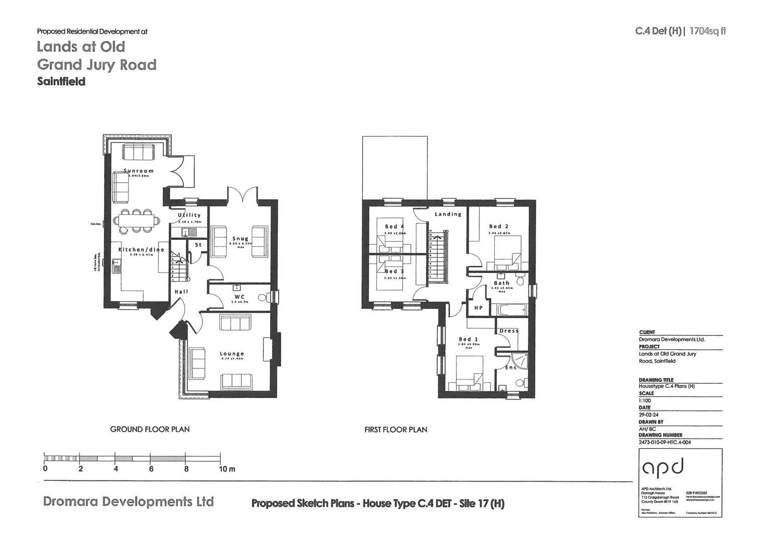
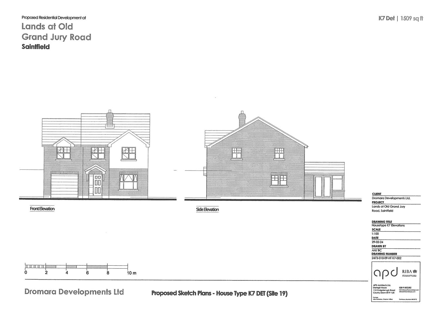
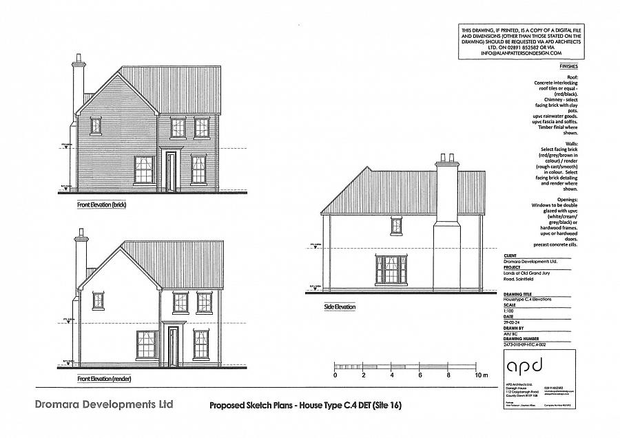
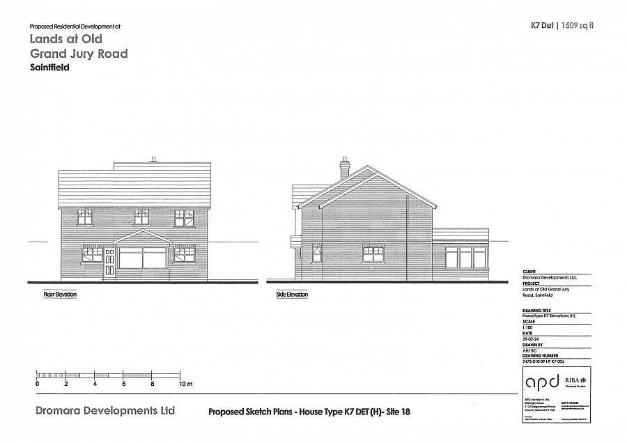
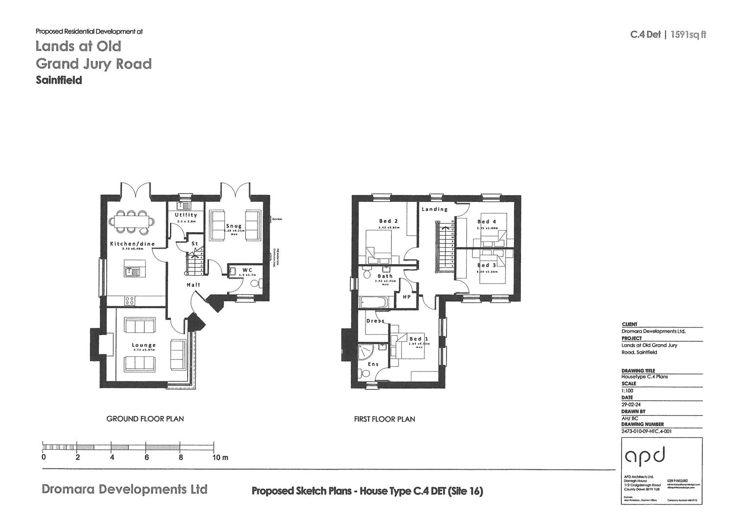
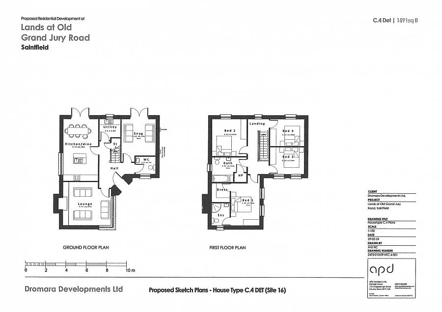
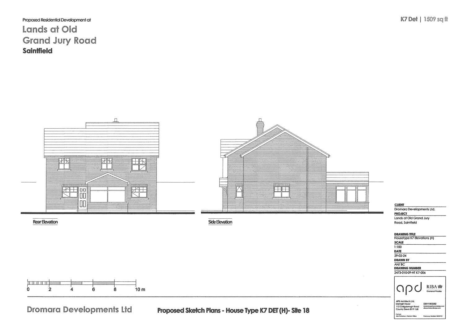
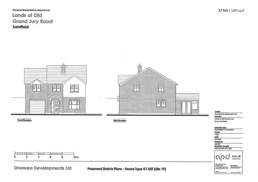
Full Planning Permission Granted Under Application LA07/2025/0893/F dated 19 February 2026
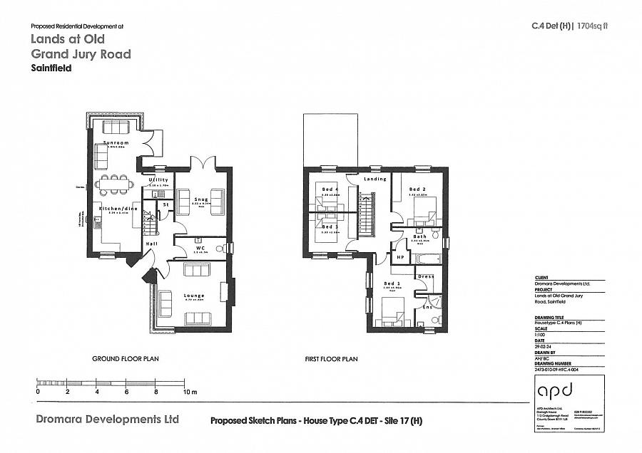
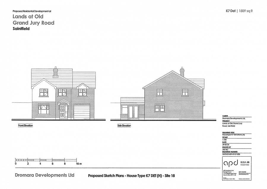
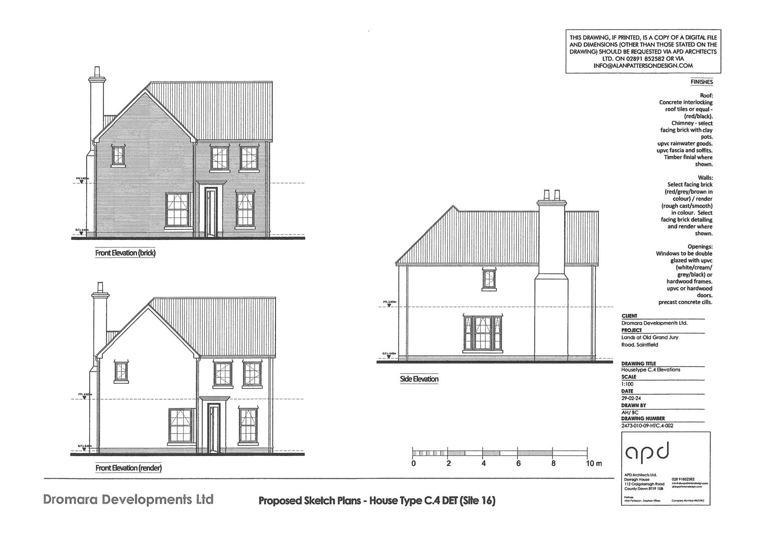
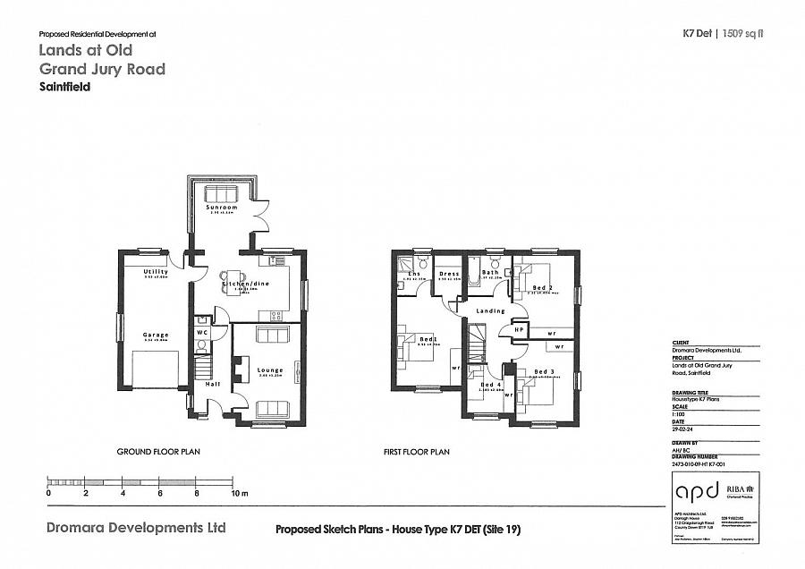
Approved for the Development of 4 Detached Houses
Connections for Electric, Water, Gas and Sewers (An Article 161 Drainage Bond is in Place) Are All Available
High Demand for Quality Family Homes in the Saintfield Area
Located Close to Saintfield´s Bustling Village, Schools, and Public Transport
Excellent Road Network Allowing for A Convenient Commute to Downpatrick, Lisburn and Belfast City Centre
Description
An excellent opportunity to acquire this 'ready to go´ residential development site, situated just off Old Grand Jury Road, Saintfield.
This site forms part of the ever popular and much sought after Grand Jury Lane development and has received full planning permission under application LA07/2025/0893/F dated 19 February 2026, for the development of 4 detached houses. Connections for electric, water, gas and sewers (an article 161 drainage bond is in place) are all available.
Saintfield village is thriving with many local boutiques, coffee shops, restaurants, and an excellent choice of primary and secondary schools. The National Trust´s Rowallane Gardens is only a short walk away boasting beautiful woodland walks and seasonal family events throughout the year. An excellent public transport and road network allows for a convenient commute to Downpatrick, Lisburn and Belfast city centre.
Fully approved and 'ready to go´ development opportunities rarely come to market in this highly sought after locality, particularly in an area experiencing strong demand for quality family homes.
An excellent opportunity to acquire this 'ready to go´ residential development site, situated just off Old Grand Jury Road, Saintfield.
This site forms part of the ever popular and much sought after Grand Jury Lane development and has received full planning permission under application LA07/2025/0893/F dated 19 February 2026, for the development of 4 detached houses. Connections for electric, water, gas and sewers (an article 161 drainage bond is in place) are all available.
Saintfield village is thriving with many local boutiques, coffee shops, restaurants, and an excellent choice of primary and secondary schools. The National Trust´s Rowallane Gardens is only a short walk away boasting beautiful woodland walks and seasonal family events throughout the year. An excellent public transport and road network allows for a convenient commute to Downpatrick, Lisburn and Belfast city centre.
Fully approved and 'ready to go´ development opportunities rarely come to market in this highly sought after locality, particularly in an area experiencing strong demand for quality family homes.
Broadband Speed Availability
Potential Speeds for Development Site @ Grand Jury Lane
Max Download
0
Mbps
Max Upload
0
MbpsThe speeds indicated represent the maximum estimated fixed-line speeds as predicted by Ofcom. Please note that these are estimates, and actual service availability and speeds may differ.
Property Location
Mortgage Calculator
Contact Agent
Contact Tim Martin & Co (Comber)
Request More Information
Requesting Info about...
Development Site @ Grand Jury Lane, Off Old Grand Jury Road, Saintfield, BT24 7FS
By registering your interest, you acknowledge our Privacy Policy
By registering your interest, you acknowledge our Privacy Policy