House
8 Mary Street
Rostrevor, Newry, BT34 3AY
offers over
£495,000

Key Features & Description
Description
Residential/Commercial Opportunity
We are delighted to offer for sale this attractive listed period end terrace beautifully positioned in the heart of the popular and much sought after village of Rostrevor.
Whether as a residential home or some form of onward commercial opportunity the property is deceptively spacious throughout over three floors with three bedrooms and two large reception rooms. To the rear there is parking for 4 cars.
The location is exceptional on the shores of Carlingford Lough with a vast array of local amenities, high quality restaurants and cafes on your doorstep.
The nearby city of Newry provides additional amenities and excellent schooling. Belfast is circa 1 hr away with Dublin 1 hr 15 mins
We are advised that the NAV is £7,450.00Estimated Rates Payable 25/26: £4,475.84 per annum.The property should benefit from the Small Business Rates Relief Scheme, which would provide an occupier with a 20% reduction in rates payable. However; we recommend that you verify this with Land & Property Services.
Residential/Commercial Opportunity
We are delighted to offer for sale this attractive listed period end terrace beautifully positioned in the heart of the popular and much sought after village of Rostrevor.
Whether as a residential home or some form of onward commercial opportunity the property is deceptively spacious throughout over three floors with three bedrooms and two large reception rooms. To the rear there is parking for 4 cars.
The location is exceptional on the shores of Carlingford Lough with a vast array of local amenities, high quality restaurants and cafes on your doorstep.
The nearby city of Newry provides additional amenities and excellent schooling. Belfast is circa 1 hr away with Dublin 1 hr 15 mins
We are advised that the NAV is £7,450.00Estimated Rates Payable 25/26: £4,475.84 per annum.The property should benefit from the Small Business Rates Relief Scheme, which would provide an occupier with a 20% reduction in rates payable. However; we recommend that you verify this with Land & Property Services.
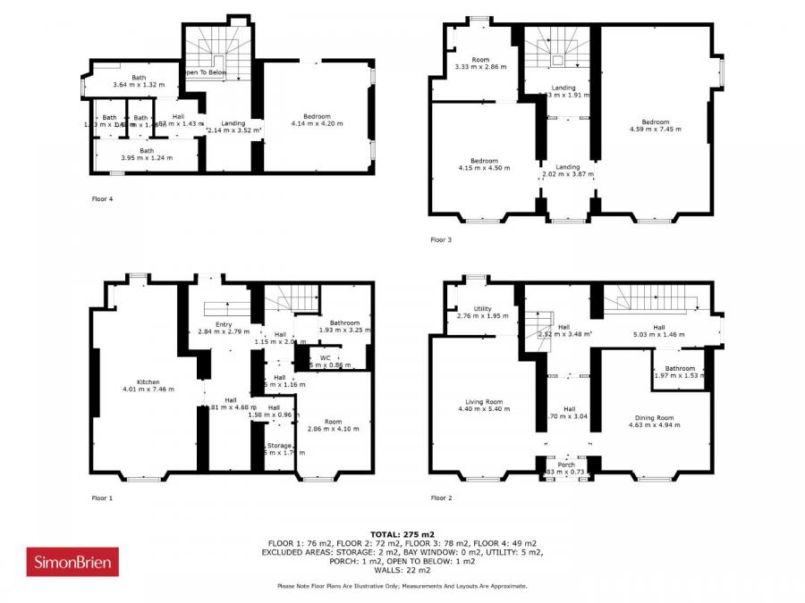
Rooms
GROUND FLOOR
Entrance Hall
Kitchen 13'1" X 24'6" (4.00m X 7.47m)
Storage Room 9'4" X 13'5" (2.84m X 4.10m)
Bathroom 6'3" X 10'7" (1.90m X 3.23m)
FIRST FLOOR
Living Room 14'5" X 17'8" (4.40m X 5.38m)
Wood floor, Radiator, Victorian style window, Decorative brick work on walls.
Dinning Room 15'1" X 16'2" (4.60m X 4.93m)
Wood floor, Radiator, Victorian style window
Utility Room 9'1" X 6'5" (2.77m X 1.96m)
Bathroom 6'5" X 4'11" (1.96m X 1.50m)
SECOND FLOOR
Bedroom 1 15'1" X 24'4" (4.60m X 7.42m)
Bedroom 2 13'6" X 14'9" (4.11m X 4.50m)
Storage Room 10'11" X 9'4" (3.33m X 2.84m)
THIRD FLOOR
Bedroom 3 13'6" X 13'9" (4.11m X 4.20m)
Bathroom 12'11" X 13'1" (3.94m X 4.00m)
NAV
We are advised that the NAV is £7,450.00
Estimated Rates Payable 25/26: £4,475.84 per annum.
The property should benefit from the Small Business Rates Relief Scheme, which would provide an occupier with a 20% reduction in rates payable. However; we recommend that you verify this with Land & Property Services.
Estimated Rates Payable 25/26: £4,475.84 per annum.
The property should benefit from the Small Business Rates Relief Scheme, which would provide an occupier with a 20% reduction in rates payable. However; we recommend that you verify this with Land & Property Services.
Property Location

Mortgage Calculator
Contact Agent

Contact Simon Brien Bradley (Newry)
Request More Information
Requesting Info about...
8 Mary Street, Rostrevor, Newry, BT34 3AY
By registering your interest, you acknowledge our Privacy Policy

By registering your interest, you acknowledge our Privacy Policy