3 Bed Apartment
29 Cahir Linn
Rostrevor, BT34 3GP
offers around
£525,000
Key Features & Description
Beautifully Presented Three Bedroom Duplex Apartment Positioned in the Popular Cahir Linn Development, Rostrevor
Conveniently Located Close to Warrenpoint and Rostrevor Town Centres
Close Access to the New Narrow Water Bridge to Omeath & Carlingford
Excellent Transport Links to Belfast City Centre, Dundalk and Dublin
Walking Distance to Carlingford Coastline with Excellent Scenic Views across the Lough
Grand Reception Hall with Generous Built in Storage and Access to a Utility Room
Lounge with Bay Window Providing Panoramic Views of Carlingford Lough
Access to a Private Juliet Balcony with Southerly Aspect
Open Plan Kitchen Diner with Bespoke Fully Fitted Kitchen and Ample Space for Casual Dining
Three Well Proportioned Bedrooms, Main Bedroom with Luxurious En-Suite Bathroom
Third Bedroom Currently Used as Separate Reception Room
Second Floor Landing with Extra Storage and Access to Roofspace
Separate Family Bathroom with Modern White Suite
Two Private Allocated Car Parking Spaces with Additional Visitor Parking
Private Beach Access to Front
Extra External Under Stairs Storage
Gas Fired Central Heating and Double Glazing Throughout
Management Fee Approx £842 Per Annum
Ideally Suited to the Young Professional, Couple or Downsizer Alike
Early Viewing Highly Recommended
Description
29 Cahir Linn represents a unique opportunity to acquire a fantastically appointed three bedroom first floor duplex apartment located on one of the most sought-after addresses in Rostrevor. Providing superb uninterrupted panoramic sea views, number 29 provides a superb blank canvas with nothing needing done apart from simply moving in.
This address offers ease of access to both Warrenpoint and Rostrevor as well as providing excellent transport links to Greater Belfast, Dublin and Dundalk. Positioned on the Carlingford Lough coastline, the property offers excellent proximity to the Ring of Gullion and the Mourne Mountains.
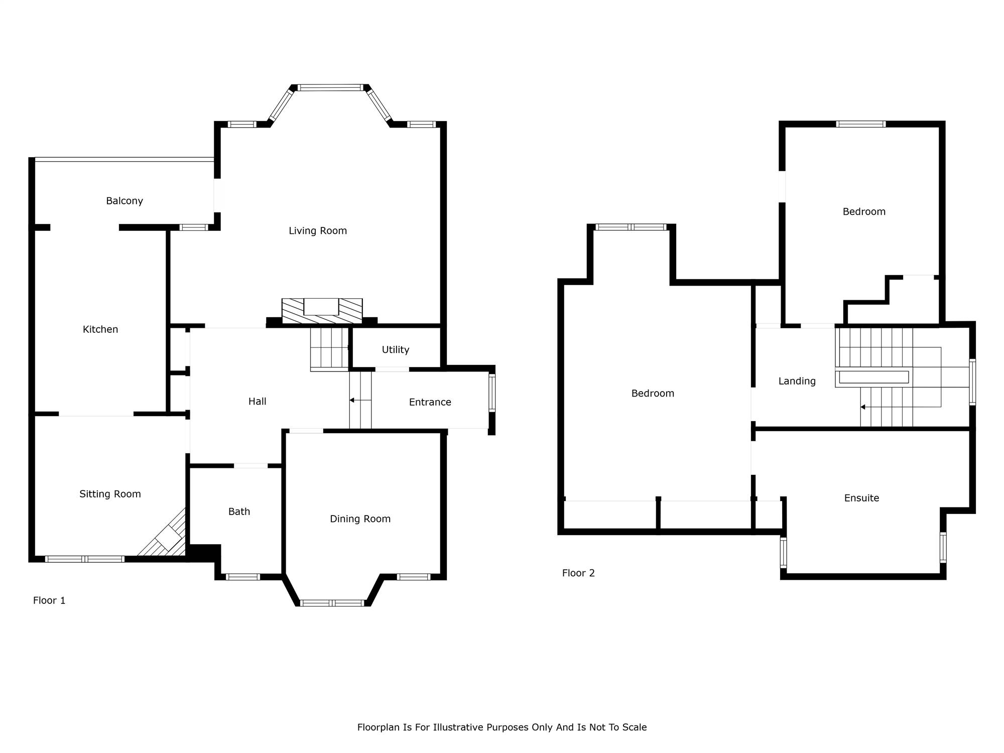
The first floor of the property comprises of a grand entrance hall with composite front door, circular picture window, utility room, two built in storage cupboards, family bathroom with modern white suite, double bedroom, open plan kitchen diner with bespoke fully fitted kitchen, living room with bay window and panoramic sea views and dual access to a Juliet balcony with southerly aspect.
The second floor of the property provides a spacious landing with additional built in storage and access to a roofspace, two double bedrooms, main bedroom with luxurious en-suite bathroom and fantastic sea views.
The property further benefits from own front door access, updated double glazed windows, gas fired central heating, two allocated private car parking spaces and additional ground floor under stairs storage.
Rarely do properties of this calibre present themselves to the open market, early internal inspection is highly recommended to appreciate all this property has to offer.
29 Cahir Linn represents a unique opportunity to acquire a fantastically appointed three bedroom first floor duplex apartment located on one of the most sought-after addresses in Rostrevor. Providing superb uninterrupted panoramic sea views, number 29 provides a superb blank canvas with nothing needing done apart from simply moving in.
This address offers ease of access to both Warrenpoint and Rostrevor as well as providing excellent transport links to Greater Belfast, Dublin and Dundalk. Positioned on the Carlingford Lough coastline, the property offers excellent proximity to the Ring of Gullion and the Mourne Mountains.
The first floor of the property comprises of a grand entrance hall with composite front door, circular picture window, utility room, two built in storage cupboards, family bathroom with modern white suite, double bedroom, open plan kitchen diner with bespoke fully fitted kitchen, living room with bay window and panoramic sea views and dual access to a Juliet balcony with southerly aspect.
The second floor of the property provides a spacious landing with additional built in storage and access to a roofspace, two double bedrooms, main bedroom with luxurious en-suite bathroom and fantastic sea views.
The property further benefits from own front door access, updated double glazed windows, gas fired central heating, two allocated private car parking spaces and additional ground floor under stairs storage.
Rarely do properties of this calibre present themselves to the open market, early internal inspection is highly recommended to appreciate all this property has to offer.
Rooms
FRONT DOOR
Stairs to Front Door. Composite front door with glass top light into reception hall
RECEPTION HALL:
Reception Hall with checkered tile flooring, access to electric meter, circular picture window.
UTILITY ROOM:
Utility with range of units, laminate effect worktops, stainless steel single drainer sink with chrome tap, space for washing machine, access to gas boiler and extractor fan.
LANDING:
Stairs to landing area with laminate effect wooden flooring, cornered ceiling and ceiling rose, two built in storage cupboards.
LOUNGE: 21' 5" X 18' 8" (6.53m X 5.69m)
Measurements into panoramic bay window. Solid stripped, chevron style wood flooring. Panoramic views across Carlingford Lough and coastline. UPVC double glazed access door to Juliette balcony. Juliette balcony with tiling and cast-iron railings.
LIVING ROOM: 12' 2" X 11' 0" (3.71m X 3.35m)
Outlook to front with tiled floor, arch way to kitchen/diner.
KITCHEN / DINER 14' 5" X 10' 2" (4.39m X 3.10m)
Bespoke fully fitted kitchen with range of high and low level units. Quartz stone worktops, 5 ring gas hob with built in oven and grill, Belfast style sink with chrome taps, built in wine rack, built in plate rack, tile floor, ample space for casual dining. UPVC double glazed French doors to Juliette balcony. Panoramic views across Carlingford Lough and coastline, cornered ceiling and ceiling rose.
FAMILY BATHROOM
Comprising of low flush WC with push button, floating wash hand basin with chrome taps and built in vanity unit. Fully tiled walls and tiled floor. Walk in shower with soak away shower tray, fixed glass door, shower with chrome thermostatic controller valve and telephone attachment. Frosted glass picture window and extractor fan.
BEDROOM 3/DINING ROOM 13' 7" X 12' 1" (4.14m X 3.68m)
Outlook to front, solid stripped wooden flooring, low voltage recess spot lighting.
LANDING:
Picture window, access hatch to roof space, built in storage cupboard.
BEDROOM (1): 19' 7" X 14' 3" (5.97m X 4.34m)
Outlook to front, laminate effect wooden flooring, range of built in slide robes, ensuite bathroom.
ENSUITE BATHROOM:
White suite comprising of low flush WC with push button, floating wash hand basin with chrome mixer tap and built in vanity unit, fully tiled walls, tiled floor, dual Velux window, low voltage recess spot lighting, additional storage, extractor fan. Tiled shower encloser and soakaway shower tray, fixed glass door with sliding door, chrome thermostatic controller valve with telephone attachment and rainfall headset.
BEDROOM (2): 15' 2" X 12' 0" (4.62m X 3.66m)
Outlook to front, additional built in storage, laminate effect wooden flooring.
2 allocated car parking spaces with additional visitor parking.
Broadband Speed Availability
Potential Speeds for 29 Cahir Linn
Max Download
1000
Mbps
Max Upload
1000
MbpsThe speeds indicated represent the maximum estimated fixed-line speeds as predicted by Ofcom. Please note that these are estimates, and actual service availability and speeds may differ.
Property Location
Mortgage Calculator
Directions
Rostrevor, Newry
Contact Agent
Contact Simon Brien (South Belfast)
Request More Information
Requesting Info about...