Contact Agent
Contact Michael Chandler Estate Agents
2 Bed Terrace House
72 Donard Street
Ravenhill, Belfast, BT6 8EL
asking price
£150,000
Key Features & Description
Description
A beautifully presented two-bedroom mid-terrace property ideally located just off the ever-popular Ravenhill Road in South Belfast. This attractive home offers well-proportioned accommodation throughout and is sure to appeal to first-time buyers, professionals, and investors alike.
The property comprises a spacious entrance hall leading to a bright and inviting living/dining area, complete with a charming feature fireplace creating a cosy focal point. The modern fitted kitchen boasts a range of built-in appliances & plumbed for white goods and provides access to the enclosed rear yard - ideal for low-maintenance outdoor living.
Upstairs there are two generously sized bedrooms, both well presented and filled with natural light. The accommodation is further enhanced by a luxurious bathroom, finished to a high standard and featuring a contemporary three-piece suite, including a walk-in shower.
Outside, the property enjoys a fully enclosed rear yard with an attractive feature wall, offering privacy and a pleasant outdoor space.
Situated in a highly sought-after area just off the Ravenhill Road, this home is within easy reach of a fantastic range of local amenities on the Cregagh & Woodstock Road's and the ever vibrant Ormeau Road along with Ormeau Park just a short walk away. Excellent transport links to and from Belfast city centre are close by with the property also located within the catchment to a range of leading primary and secondary schools in the area.
Your Next Move...
Thinking of selling, it would be a pleasure to offer you a FREE VALUATION of your property.
To arrange a viewing or for further information contact Michael Chandler Estate Agents on 02890 450 550 or email property@michael-chandler.co.uk.
A beautifully presented two-bedroom mid-terrace property ideally located just off the ever-popular Ravenhill Road in South Belfast. This attractive home offers well-proportioned accommodation throughout and is sure to appeal to first-time buyers, professionals, and investors alike.
The property comprises a spacious entrance hall leading to a bright and inviting living/dining area, complete with a charming feature fireplace creating a cosy focal point. The modern fitted kitchen boasts a range of built-in appliances & plumbed for white goods and provides access to the enclosed rear yard - ideal for low-maintenance outdoor living.
Upstairs there are two generously sized bedrooms, both well presented and filled with natural light. The accommodation is further enhanced by a luxurious bathroom, finished to a high standard and featuring a contemporary three-piece suite, including a walk-in shower.
Outside, the property enjoys a fully enclosed rear yard with an attractive feature wall, offering privacy and a pleasant outdoor space.
Situated in a highly sought-after area just off the Ravenhill Road, this home is within easy reach of a fantastic range of local amenities on the Cregagh & Woodstock Road's and the ever vibrant Ormeau Road along with Ormeau Park just a short walk away. Excellent transport links to and from Belfast city centre are close by with the property also located within the catchment to a range of leading primary and secondary schools in the area.
Your Next Move...
Thinking of selling, it would be a pleasure to offer you a FREE VALUATION of your property.
To arrange a viewing or for further information contact Michael Chandler Estate Agents on 02890 450 550 or email property@michael-chandler.co.uk.
Rooms
Hallway 3'2 X 14'7 (0.97m X 4.45m)
Living Room 9'3 X 22'5 (2.82m X 6.83m)
Kitchen & Dining Area 12'5 X 11'3 (3.78m X 3.43m)
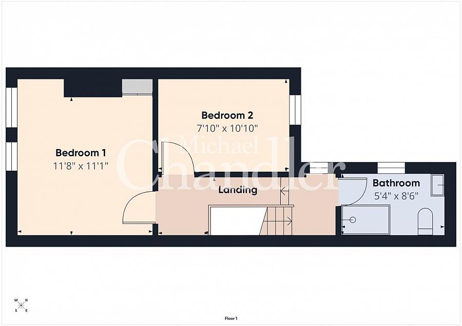
Landing
Bedroom 1 11'8 X 11'1 (3.56m X 3.38m)
Bedroom 2 7'10 X 10'10 (2.39m X 3.30m)
Bathroom 5'4 X 8'6 (1.63m X 2.59m)
Michael Chandler Estate Agents have endeavoured to prepare these sales particulars as accurately and reliably as possible for the guidance of intending purchasers or lessees. These particulars are given for general guidance only and do not constitute any part of an offer or contract. The seller and agents do not give any warranty in relation to the property. We would recommend that all information contained in this brochure is verified by yourself or your professional advisors. Services, fittings and equipment referred to in the sales details have not been tested and no warranty is given to their condition, nor does it confirm their inclusion in the sale. All measurements contained within this brochure are approximate.
As an estate agency, we are required to verify the identity of both the vendor and the purchaser in accordance with Money Laundering Regulations 2017. In order to purchase a property in the United Kingdom, all agents have a legal obligation to conduct identity checks on all customers involved in the transaction to comply with Anti-Money Laundering regulations.
We outsource these checks to a third-party provider and a charge of £20 + VAT per person will apply for this service.
We outsource these checks to a third-party provider and a charge of £20 + VAT per person will apply for this service.
Virtual Tour
Broadband Speed Availability
Potential Speeds for 72 Donard Street
Max Download
1800
Mbps
Max Upload
220
MbpsThe speeds indicated represent the maximum estimated fixed-line speeds as predicted by Ofcom. Please note that these are estimates, and actual service availability and speeds may differ.
Property Location
Mortgage Calculator
Contact Agent
Contact Michael Chandler Estate Agents
Request More Information
Requesting Info about...
72 Donard Street, Ravenhill, Belfast, BT6 8EL
By registering your interest, you acknowledge our Privacy Policy
By registering your interest, you acknowledge our Privacy Policy