Contact Agent
Contact Shooter Property Services (Banbridge)
Building Site
Site At 13 New Line
Rathfriland, BT34 5BP
from
£90,000
- Status For Sale
- Property Type Building Site
-
Stamp Duty
Higher amount applies when purchasing as buy to let or as an additional property£0 / £4,500*
Key Features & Description
Circa 1.0 Acre
Full Planning Permission For A Chalet Bungalow & Garage
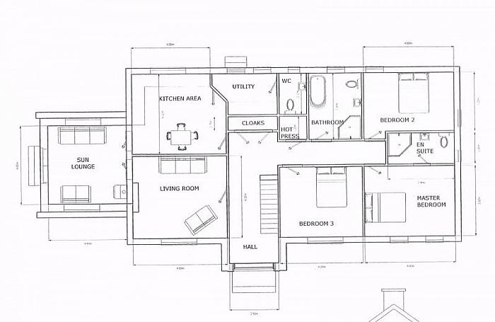
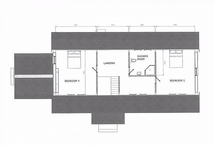
Dwelling Approx. 2600 sq.ft Plus Detached Garage With Store Room Over
Lovely Views Over Surrounding Countryside
Description
An excellent opportunity to purchase an attractive site set back from the road and enjoying excellent views over open countryside beyond. Extending to approx. 1.0 acres, the site has full planning permission for a chalet style bungalow extending to approx. 2600 sq.ft. and a detached garage with store room above. The site is within easy commuting distance of Banbridge (10 miles) and Newry (8 miles) with all the amenities of Rathfriland only 2.5 miles.
Planning Ref: P/2008/0472/RW
An excellent opportunity to purchase an attractive site set back from the road and enjoying excellent views over open countryside beyond. Extending to approx. 1.0 acres, the site has full planning permission for a chalet style bungalow extending to approx. 2600 sq.ft. and a detached garage with store room above. The site is within easy commuting distance of Banbridge (10 miles) and Newry (8 miles) with all the amenities of Rathfriland only 2.5 miles.
Planning Ref: P/2008/0472/RW
Property Location
Mortgage Calculator
Contact Agent
Contact Shooter Property Services (Banbridge)
Request More Information
Requesting Info about...
Site At 13 New Line, Rathfriland, BT34 5BP
By registering your interest, you acknowledge our Privacy Policy
By registering your interest, you acknowledge our Privacy Policy