Contact Agent

Contact Paul Birt

Contact Paul Birt

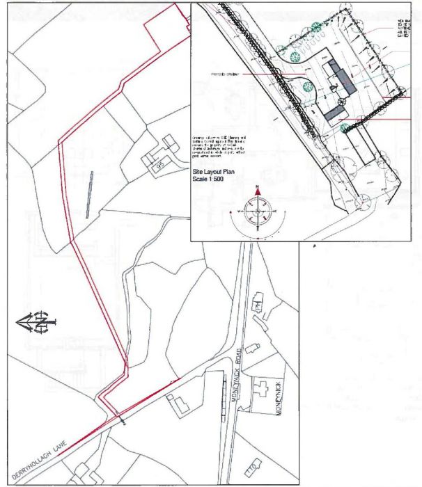
Building Site (with FPP)

Derryhollagh Lane

Randalstown, BT41 3HT

offers over £115,000
  • Status For Sale
  • Property Type Building Site (with FPP)
  • Stamp Duty
    Higher amount applies when purchasing as buy to let or as an additional property
    £0 / £5,750*
  • Typical Mortgage
    Click price to use our mortgage calculator

Key Features

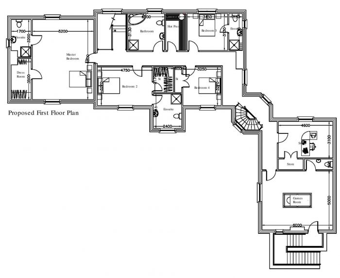
Superb Site with Full Planning Permission
For a Four Bed Detached House of Approx 4,538 Sq Ft
Excellent Location with Easy Access onto M2 Motorway
Foundations Have Been Laid
Shared Access from Derryhollagh Lane
Turn into Derryhollagh Lane (just opposite Moneynick Primary School) & Take First Entrance on Right

Property Location

Show Map

Mortgage Calculator

Disclaimer: The following calculations act as a guide only, and are based on a typical repayment mortgage model. Financial decisions should not be made based on these calculations and accuracy is not guaranteed. Always seek professional advice before making any financial decisions.

Contact Agent

Contact Paul Birt

Contact Paul Birt

Request More Information
Requesting Info about...
Derryhollagh Lane, Randalstown, BT41 3HT Derryhollagh Lane, Randalstown, BT41 3HT

By registering your interest, you acknowledge our Privacy Policy
Ask Holmes
Ask Holmes
Let's find your next home

Are you sure you want to reset the chat?

Checking API...