5 Bed Detached House
Lane End, 86 Fort Road
Ballylesson, Belfast, BT8 8LX
asking price
£699,950
Key Features & Description
Attractive Detached Family Home
Beautifully Presented and Deceptively Spacious Accommodation
Five Generous Bedrooms and Home Office
Spacious Living Room with Wood Burning Stove
Stunning Kitchen with Range of Appliances open plan to Dining and Sun Room
Utility Room
Family Bathroom and Two Ensuite Shower Rooms
Oil Fired Central Heating
Double Glazing
One Bedroom Annex with open plan Living/Kitchen/Dining Area and Shower Room
Adjoining Garage and Additional Workshop
Magnificent Elevated Site extending to 0.9 Acre with Panoramic far-reaching views over Belfast
Electric Gates/Generous Parking
Fibre Broadband
Ideal for Growing Family
Popular and Much Sought After Semi Rural Location on periphery of the City
Local Amenities/Schooling and main transport routes close by
Viewing by Private Appointment
Description
Fort Road is a much sought after semi-rural location on the periphery of Belfast within close proximity to all main arterial routes, Forestside Shopping Centre together with excellent schooling and local amenities within the immediate area.
The subject property is a superb deceptively spacious family home with an adaptable layout that provides five bedrooms plus home office, living room, spacious open plan kitchen/living/dining, utility room, family bathroom and two ensuites.
In addition there is the added benefit of a 1 bed annex with adjoining garage, workshop and excellent parking.
The well maintained site extends to 0.9 acre with panoramic far reaching views over Belfast and further afield.
Viewing is by private appointment through our Belfast Office 02890 668888.
Fort Road is a much sought after semi-rural location on the periphery of Belfast within close proximity to all main arterial routes, Forestside Shopping Centre together with excellent schooling and local amenities within the immediate area.
The subject property is a superb deceptively spacious family home with an adaptable layout that provides five bedrooms plus home office, living room, spacious open plan kitchen/living/dining, utility room, family bathroom and two ensuites.
In addition there is the added benefit of a 1 bed annex with adjoining garage, workshop and excellent parking.
The well maintained site extends to 0.9 acre with panoramic far reaching views over Belfast and further afield.
Viewing is by private appointment through our Belfast Office 02890 668888.
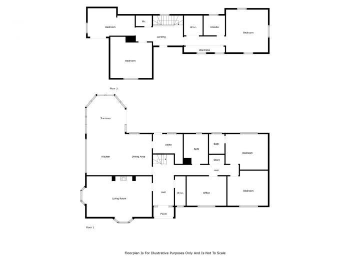
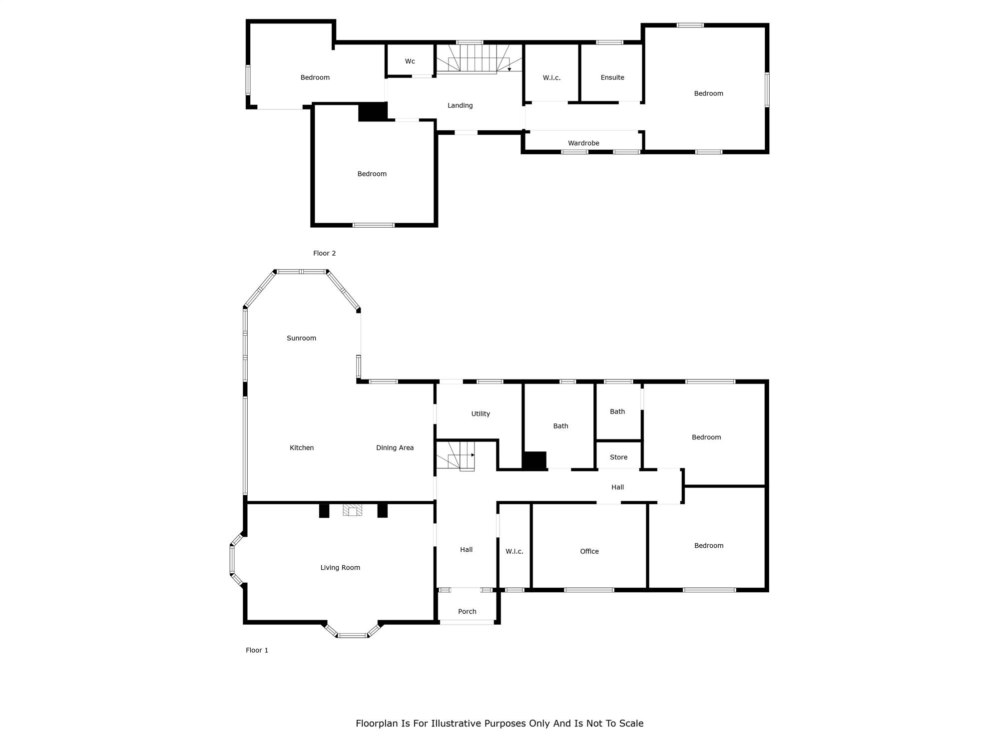
Rooms
ENTRANCE HALL:
Hardwood door to entrance hall with cloakroom
LIVING ROOM: 21' 4" X 13' 6" (6.50m X 4.11m)
Wood Burning Stove, wooden floor
KITCHEN / LIVING / DINING: 24' 8" X 21' 4" (7.52m X 6.50m)
Kitchen - Range of units, quartz worktops, inset sink, 4 ring hob, double oven, integrated dishwasher, wine fridge,Oil fed Rayburn, 2 Küppersbusch ovens (one steam / one pyro pro), Gorenje induction hob, Gorenje integrated fridge / freezer, Hotpoint integrated dishwasher, Waste disposal unit
Living Area - Wood burning stove, access to rear patio
UTILITY ROOM: 9' 7" X 5' 5" (2.92m X 1.52m)
Ample additional storage
BATHROOM:
Corner bath, mixer taps, telephone hand shower, Wet Shower area, low flush WC, wash hand basin, heated towel rail
OFFICE: 13' 0" X 9' 8" (3.96m X 2.95m)
BEDROOM (1): 13' 7" X 12' 1" (4.14m X 3.68m)
BEDROOM (2): 13' 7" X 11' 9" (4.14m X 3.58m)
ENUSITE:
Fully Tiled Shower Enclosure with overhead shower and additional telephone hand shower, low flush WC, pedestal wash hand basin
BEDROOM (3): 14' 4" X 13' 6" (4.37m X 4.11m)
Range of Fitted Units
ENSUITE:
Fully Tiled Shower Enclosure with overhead shower and additional telephone hand shower, low flush WC, pedestal wash hand basin
BEDROOM (4): 15' 8" X 9' 1" (4.78m X 2.77m)
BEDROOM (5): 13' 5" X 11' 7" (4.09m X 3.53m)
CLOAKROOM:
Low flush WC, wash hand basin
ANNEX:
KITCHEN / LIVING / DINING: 18' 8" X 16' 9" (5.69m X 5.11m)
High and Low Level units, inset sink, 4 ring hob, ove, fridge and washing machine
BEDROOM (1): 17' 1" X 10' 7" (5.21m X 3.23m)
STORE: 14' 2" X 7' 6" (4.32m X 2.29m)
SHOWER ROOM:
Superb site with views over City, large gardens in lawns with rear patio area, generours parking
ATTACHED GARAGE 23' 4" X 19' 2" (7.11m X 5.84m)
WORKSHOP: 15' 5" X 8' 3" (4.70m X 2.51m)
Broadband Speed Availability
Potential Speeds for 86 Fort Road
Max Download
1000
Mbps
Max Upload
1000
MbpsThe speeds indicated represent the maximum estimated fixed-line speeds as predicted by Ofcom. Please note that these are estimates, and actual service availability and speeds may differ.
Property Location
Mortgage Calculator
Directions
Off Ballylesson Road
Contact Agent
Contact Simon Brien (South Belfast)
Request More Information
Requesting Info about...
Lane End, 86 Fort Road, Ballylesson, Belfast, BT8 8LX
By registering your interest, you acknowledge our Privacy Policy
By registering your interest, you acknowledge our Privacy Policy