Contact Agent

Contact Shooter Property Services (Banbridge)

Contact Shooter Property Services (Banbridge)

Building Site

Building Site Adjacent To No. 10 Tyrones Ditches

Poyntzpass, BT35 6SB

from £72,500
  • Status Sale Agreed
  • Property Type Building Site
  • Stamp Duty
    Higher amount applies when purchasing as buy to let or as an additional property
    £0 / £3,625*
  • Typical Mortgage
    Click price to use our mortgage calculator

Key Features & Description

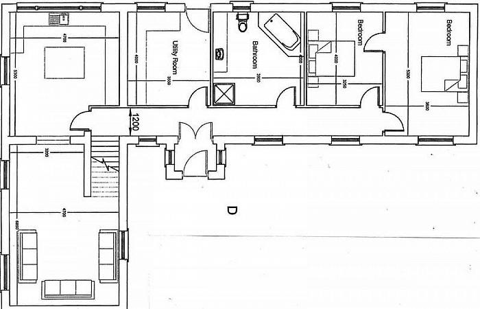
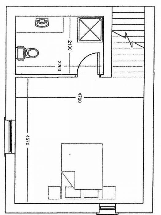
Building Site for a Detached Dwelling with Full Planning and Building Control Approval
Splendid Rural Views
Planning Permission Approved under Reference P/2014/0481/F
Approximately 0.33 acres
Foundations in Place
Water & Electric Connections Available Nearby
Consent to Discharge approved
Description
Excellent Building Site with Full Planning Permission for a 168 sq m / 1,800 sq ft detached dwelling.
Situated approximately 3.5 miles from Poyntzpass and 7.5 miles from Newry this site enjoys a very pleasant rural position. With foundations in place construction of this dwelling is ready to commence and we highly recommend viewing to fully appreciate what this site has to offer.

Rooms

Directions From Poyntzpass take Tannyoky Road for approx. 0.6 miles. Take left onto Tullynacross Road. Travel approximately 1.6 miles then take left onto Tyrones Ditches Road. Travel approximately 1.4 miles and subject site is on the right, beside No. 10.

Broadband Speed Availability

Ultrafast

Potential Speeds for Building Site adjacent to No. 10 Tyrones Ditches

Max Download
1000
Mbps
Max Upload
300
Mbps
The speeds indicated represent the maximum estimated fixed-line speeds as predicted by Ofcom. Please note that these are estimates, and actual service availability and speeds may differ.

Property Location

Show Map

Mortgage Calculator

Disclaimer: The following calculations act as a guide only, and are based on a typical repayment mortgage model. Financial decisions should not be made based on these calculations and accuracy is not guaranteed. Always seek professional advice before making any financial decisions.

Contact Agent

Contact Shooter Property Services (Banbridge)

Contact Shooter Property Services (Banbridge)

Request More Information
Requesting Info about...
Building Site Adjacent To No. 10 Tyrones Ditches, Poyntzpass, BT35 6SB Building Site Adjacent To No. 10 Tyrones Ditches, Poyntzpass, BT35 6SB

By registering your interest, you acknowledge our Privacy Policy
Ask Holmes
Ask Holmes
Let's find your next home

Are you sure you want to reset the chat?

Checking API...