3 Bed Apartment
Apartment 6, 17 The Promenade
Portstewart, BT55 7AH
asking price
£744,950
Key Features & Description
Gas Fired Central Heating (Under Floor Heating)
PVC Double Glazed Windows To Front
Lift Access To All Floors
10 Year Structural Warranty Provided By Global Homes
Panoramic Views Across Atlantic Ocean, Crescent, Dominican Covent, Portstewart Promenade and Harbour
Description
Welcome to Apartment 6, 17 The Promenade - an exclusive three bedroom penthouse apartment in Portstewart's newest and most prestigious coastal development. Positioned on the top floor of this architecturally striking building, the apartment enjoys uninterrupted sea views across the Atlantic Ocean, with floor to ceiling glazing capturing the full beauty of its dramatic setting. Expertly designed to reflect the timeless charm of Portstewart's Promenade while introducing refined contemporary detail. This property offers an elevated living experience with spacious open plan interiors, exceptional natural light and thoughtfully designed communal areas. This beautifully proportioned penthouse includes three generous bedrooms, one of which is a stunning principal suite with ensuite, ideal for hosting family or guests in comfort and style. The expansive living/kitchen/dining space is perfectly suited to entertaining or simply relaxing while soaking in panoramic ocean views. Further benefits include secure, private parkingan invaluable asset in this highly desirable locationand the rare opportunity to personalise the internal specification at this stage of construction, allowing you to tailor finishes to suit your taste and lifestyle. Just a short walk to Portstewart Strand, award winning cafes, restaurants and world class golf.
Welcome to Apartment 6, 17 The Promenade - an exclusive three bedroom penthouse apartment in Portstewart's newest and most prestigious coastal development. Positioned on the top floor of this architecturally striking building, the apartment enjoys uninterrupted sea views across the Atlantic Ocean, with floor to ceiling glazing capturing the full beauty of its dramatic setting. Expertly designed to reflect the timeless charm of Portstewart's Promenade while introducing refined contemporary detail. This property offers an elevated living experience with spacious open plan interiors, exceptional natural light and thoughtfully designed communal areas. This beautifully proportioned penthouse includes three generous bedrooms, one of which is a stunning principal suite with ensuite, ideal for hosting family or guests in comfort and style. The expansive living/kitchen/dining space is perfectly suited to entertaining or simply relaxing while soaking in panoramic ocean views. Further benefits include secure, private parkingan invaluable asset in this highly desirable locationand the rare opportunity to personalise the internal specification at this stage of construction, allowing you to tailor finishes to suit your taste and lifestyle. Just a short walk to Portstewart Strand, award winning cafes, restaurants and world class golf.
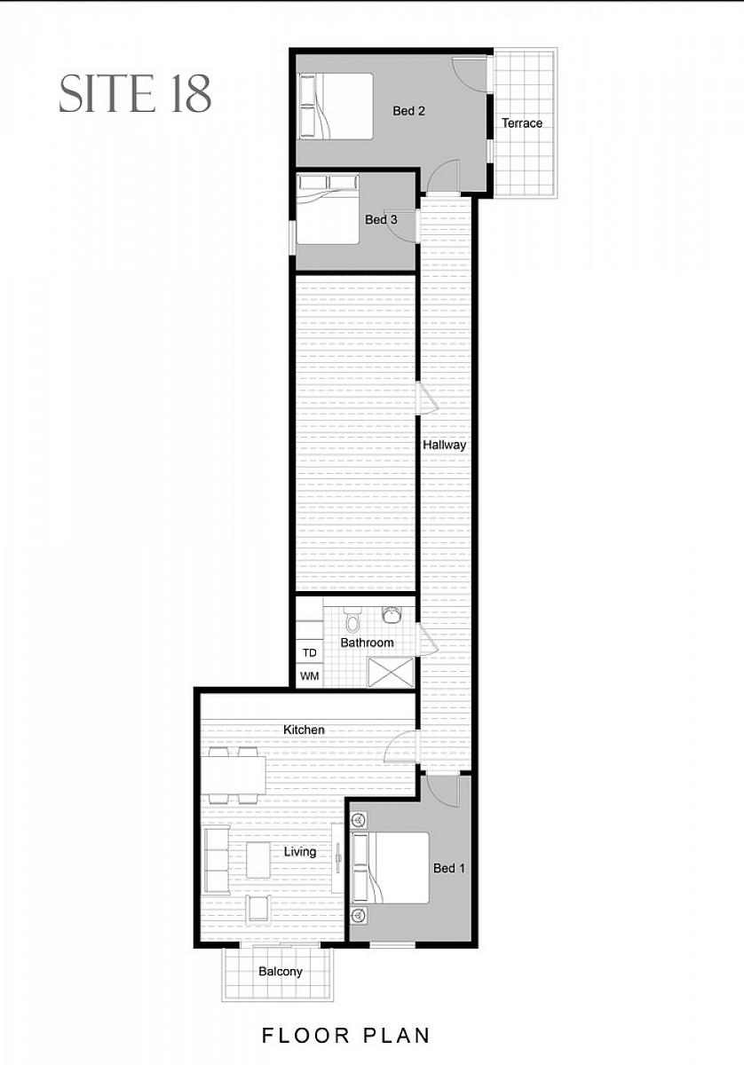
Rooms
COMMUNAL ENTRANCE HALL:
With access to all three blocks, noise cancelling part panelled walls, decorative flower wall, feature wall lighting, storage units to rear and tiled floor.
ENTRANCE HALL:
With LED light in skirting, wiring for wall lights, recessed lighting and tiled floor.
OPEN PLAN LOUNGE/KITCHEN/DINING AREA: (5.11m X 5.84m)
With 'Schock' sink unit set in silestone worktops, high and low level units with silestone splashbacks, integrated eye level oven, microwave, integrated ceramic hob, extractor fan above, integrated dish washer and fridge freezer, high and low level racks, wiring for wall lights, recessed lighting, tiled floor and sliding PVC patio doors to composite deck balcony with views across Atlantic Ocean, Portstewart Promenade, The Crescent, Dominican Covent, Portstewart Strand, Mussenden Temple & Donegal Headlands.
BEDROOM (1): (2.74m X 4.34m)
With PVC pedestrian door with glass panel leading to paved sun terrace.
BEDROOM (2): (2.74m X 4.04m)
With built in furniture consisting of one double and one single wardrobe.
BEDROOM (3): (2.36m X 2.87m)
With views across Harbour & Atlantic Ocean.
SHOWER ROOM:
Comprising w.c., built in mirrored units with lighting below, wash hand basin, fully tiled walk in shower cubicle with mains rainfall shower head, additional telephone hand shower, built in storage consisting of double cupboards, plumbed for automatic washing machine, space for tumble dryer, shelving, additional shelved cupboard, fully tiled walls, extractor fan, recessed lighting and tiled floor.
Property Location
Mortgage Calculator
Directions
As you proceed along Portstewart Promenade toward the harbour, 17 The Promenade is situated on the right just before the Fashion Shop.
Contact Agent
Contact Armstrong Gordon & Co
Request More Information
Requesting Info about...
Apartment 6, 17 The Promenade, Portstewart, BT55 7AH
By registering your interest, you acknowledge our Privacy Policy
By registering your interest, you acknowledge our Privacy Policy