Contact Agent
Contact Philip Tweedie & Company (Portstewart)
3 Bed Semi-Detached House
Site 33 Ballywillin Gardens
Portrush, BT 568
fixed price
£359,950
- Status For Sale
- Property Type Semi-Detached
- Bedrooms 3
- Receptions 2
- Bathrooms 2
-
Stamp Duty
Higher amount applies when purchasing as buy to let or as an additional property£7,998 / £25,995*
Key Features & Description
A-rated energy-efficient homes for lower running costs
Prestigious Ballywillin Road location in Portrush
Stylish layouts designed for modern living
High-quality turnkey specification throughout
Built by award-winning homebuilder Lotus Homes
10-year warranty for peace of mind
Description
The Malin
Semi-Detached House 3 Bedrooms 1,285 sq ft
The Malin is a stylish three-bedroom semi-detached home designed for modern family living. Featuring an open-plan kitchen and dining area, a bright garden room, and a spacious living room, it provides practical and flexible space for everyday life.
Located within Ballywillin Gardens, a prestigious new development on Ballywillin Road, Portrush, every home has been carefully crafted to deliver A-rated efficiency, lower running costs, and the high standard of finish for which Lotus Homes is renowned.
GROUND FLOOR
LIVING ROOM
15'5" x 10'10"
KITCHEN / DINING
18'4" x 9'6"
GARDEN ROOM
11'10" x 8'10"
UTILITY
10'10" x 5'7"
WC
7'7" x 2'11"
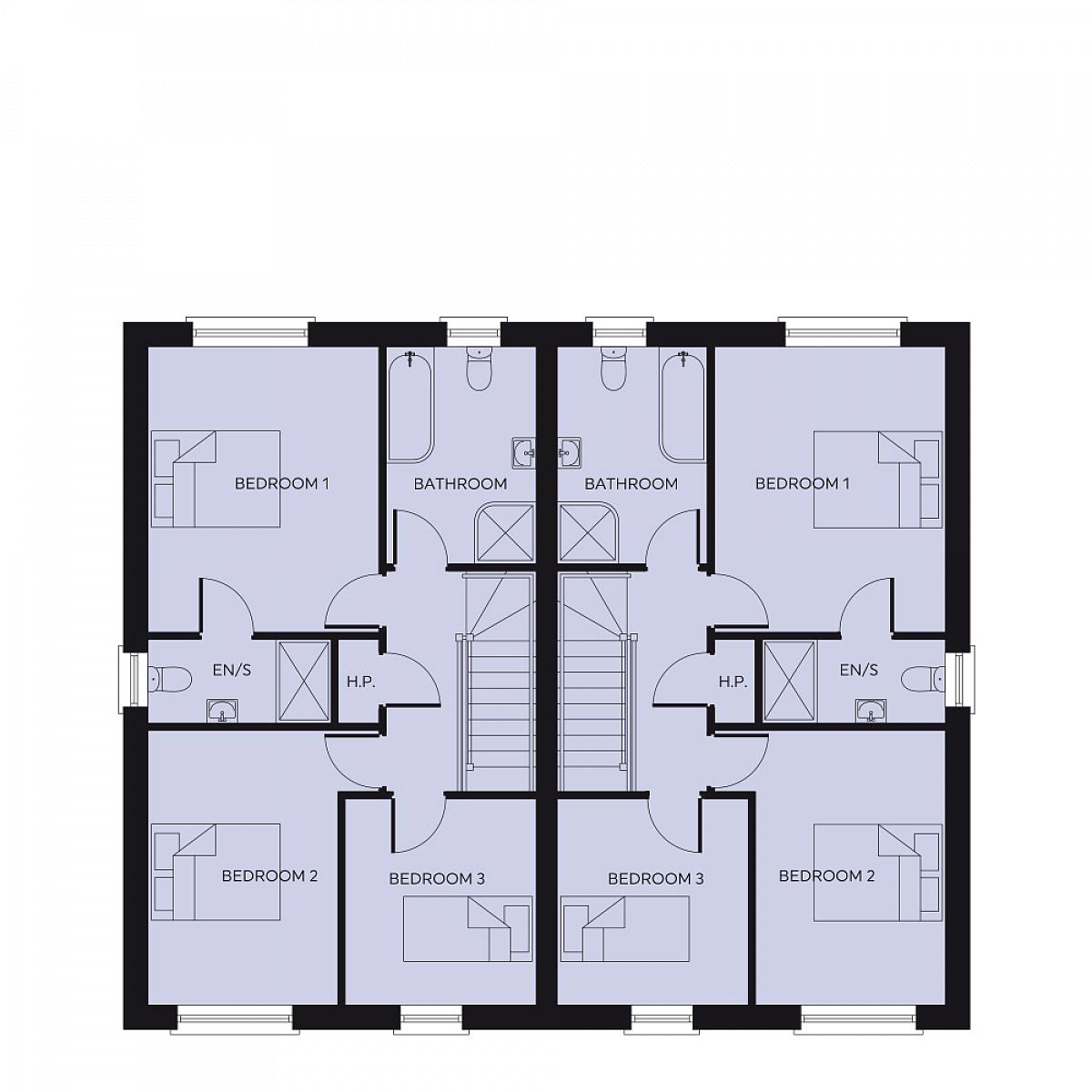
FIRST FLOOR
BEDROOM 1
13'5" x 10'10"
ENSUITE
8'6" x 3'11"
BEDROOM 2
13'1" x 10'10"
BEDROOM 3
9'10" x 9'2"
BATHROOM
10'2" x 7'3"
The Malin
Semi-Detached House 3 Bedrooms 1,285 sq ft
The Malin is a stylish three-bedroom semi-detached home designed for modern family living. Featuring an open-plan kitchen and dining area, a bright garden room, and a spacious living room, it provides practical and flexible space for everyday life.
Located within Ballywillin Gardens, a prestigious new development on Ballywillin Road, Portrush, every home has been carefully crafted to deliver A-rated efficiency, lower running costs, and the high standard of finish for which Lotus Homes is renowned.
GROUND FLOOR
LIVING ROOM
15'5" x 10'10"
KITCHEN / DINING
18'4" x 9'6"
GARDEN ROOM
11'10" x 8'10"
UTILITY
10'10" x 5'7"
WC
7'7" x 2'11"
FIRST FLOOR
BEDROOM 1
13'5" x 10'10"
ENSUITE
8'6" x 3'11"
BEDROOM 2
13'1" x 10'10"
BEDROOM 3
9'10" x 9'2"
BATHROOM
10'2" x 7'3"
Property Location
Mortgage Calculator
Contact Agent
Contact Philip Tweedie & Company (Portstewart)
Request More Information
Requesting Info about...
Site 33 Ballywillin Gardens, Portrush, BT 568
By registering your interest, you acknowledge our Privacy Policy
By registering your interest, you acknowledge our Privacy Policy