Contact Agent

Contact Philip Tweedie & Company (Portstewart)

Contact Philip Tweedie & Company (Portstewart)

3 Bed Semi-Detached House

Site 7 Ballywillin Gardens

Portrush, BT568

fixed price £359,950
  • Status Sale Agreed
  • Property Type Semi-Detached
  • Bedrooms 3
  • Receptions 2
  • Bathrooms 2
  • Heating Oil
  • Stamp Duty
    Higher amount applies when purchasing as buy to let or as an additional property
    £7,998 / £25,995*
  • Tenure Freehold
  • Typical Mortgage
    Click price to use our mortgage calculator

Key Features & Description

A-rated energy-efficient homes for lower running costs
Prestigious Ballywillin Road location in Portrush
Stylish layouts designed for modern living
High-quality turnkey specification throughout
Built by award-winning homebuilder Lotus Homes
10-year warranty for peace of mind
Description
The Malin

Semi-Detached House 3 Bedrooms 1,285 sq ft

The Malin is a stylish three-bedroom semi-detached home designed for modern family living. Featuring an open-plan kitchen and dining area, a bright garden room, and a spacious living room, it provides practical and flexible space for everyday life.

Located within Ballywillin Gardens, a prestigious new development on Ballywillin Road, Portrush, every home has been carefully crafted to deliver A-rated efficiency, lower running costs, and the high standard of finish for which Lotus Homes is renowned.

Rooms

GROUND FLOOR
LIVING ROOM (3.30m X 4.70m)
KITCHEN / DINING (2.90m X 5.60m)
GARDEN ROOM (2.70m X 3.60m)
UTILITY (1.70m X 3.30m)
WC (0.90m X 2.30m)
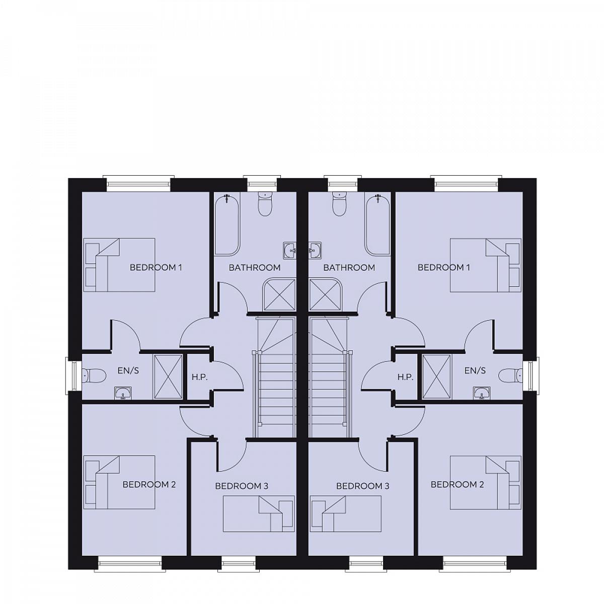
FIRST FLOOR
BEDROOM 1 (3.30m X 4.10m)
ENSUITE (1.20m X 2.60m)
BEDROOM 2 (3.30m X 4.00m)
BEDROOM 3 (2.80m X 3.00m)
BATHROOM (2.20m X 3.10m)

Property Location

Show Map

Mortgage Calculator

Disclaimer: The following calculations act as a guide only, and are based on a typical repayment mortgage model. Financial decisions should not be made based on these calculations and accuracy is not guaranteed. Always seek professional advice before making any financial decisions.

Contact Agent

Contact Philip Tweedie & Company (Portstewart)

Contact Philip Tweedie & Company (Portstewart)

Request More Information
Requesting Info about...
Site 7 Ballywillin Gardens, Portrush, BT568 Site 7 Ballywillin Gardens, Portrush, BT568

By registering your interest, you acknowledge our Privacy Policy
Ask Holmes
Ask Holmes
Let's find your next home

Are you sure you want to reset the chat?

Checking API...