Contact Agent

Contact Philip Tweedie & Company (Portstewart)

Contact Philip Tweedie & Company (Portstewart)

4 Bed Detached House

39 Ballymacrea Road

Portrush, BT56 8NS

offers over £1,275,000
  • Status For Sale
  • Property Type Detached
  • Bedrooms 4
  • Receptions 3
  • Bathrooms 5
  • Heating Oil
  • EPC Rating B83 / B83
  • Stamp Duty
    Higher amount applies when purchasing as buy to let or as an additional property
    £71,250 / £135,000*
  • Tenure Freehold
  • Typical Mortgage
    Click price to use our mortgage calculator
EPC Rating

Key Features & Description

Panoramic coastal views from an elevated position
Exceptional open-plan living with full-height feature glazing
Recently upgraded floor-to-ceiling aluminium-framed structural glazing
Dedicated home cinema with 4K Dolby Atmos & tiered platform seating
Full smart home integration (lighting, heating, air conditioning, blinds & sockets)
Zoned underfloor heating, high-performance glazing & heat recovery ventilation system
LED lighting and high-spec finishes throughout
Beam central vacuum system
Extensive external CCTV system
Separate utility room / laundry with wet room shower
Tarmac driveway with electric sliding gates & detached garage
Fully enclosed, south-facing landscaped gardens with patio & covered hot tub gazebo
Description
Not often does such an iconic home come to market on one of the North Coasts most sought-after addresses. Built in 2015, this outstanding contemporary residence has been individually designed and finished to an exacting standard, showcasing striking modern architecture and exceptional attention to detail throughout.

Positioned to fully maximise its setting, the home is defined by a dramatic full-height glazed façade, framing breathtaking panoramic views across the Portrush Peninsula and creating a seamless connection between the interior living space and the surrounding coastal landscape.

Extending to a superb specification, this luxurious and highly energy-efficient home offers an exceptional blend of design, space and functionality, all within just two miles of Portrush and its renowned coastline, championship golf courses and local amenities.

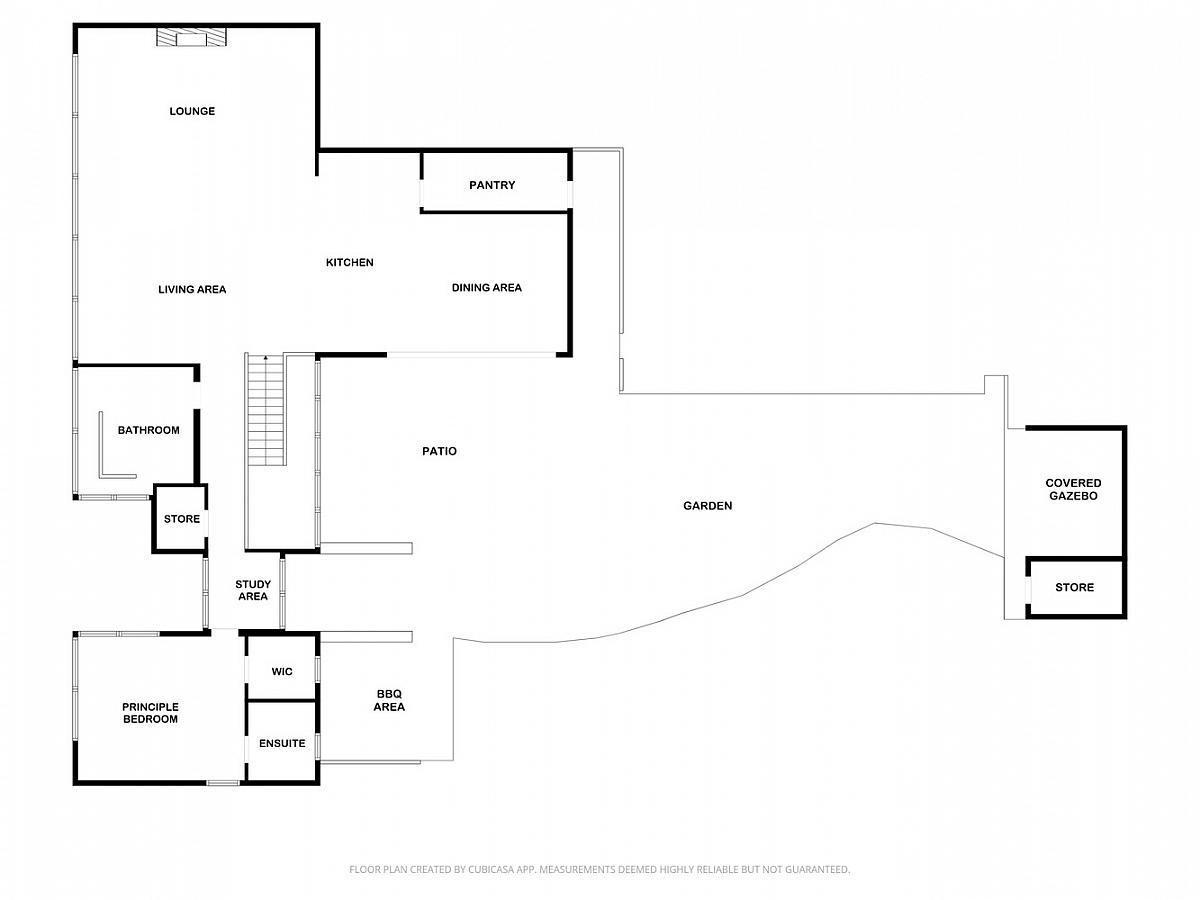
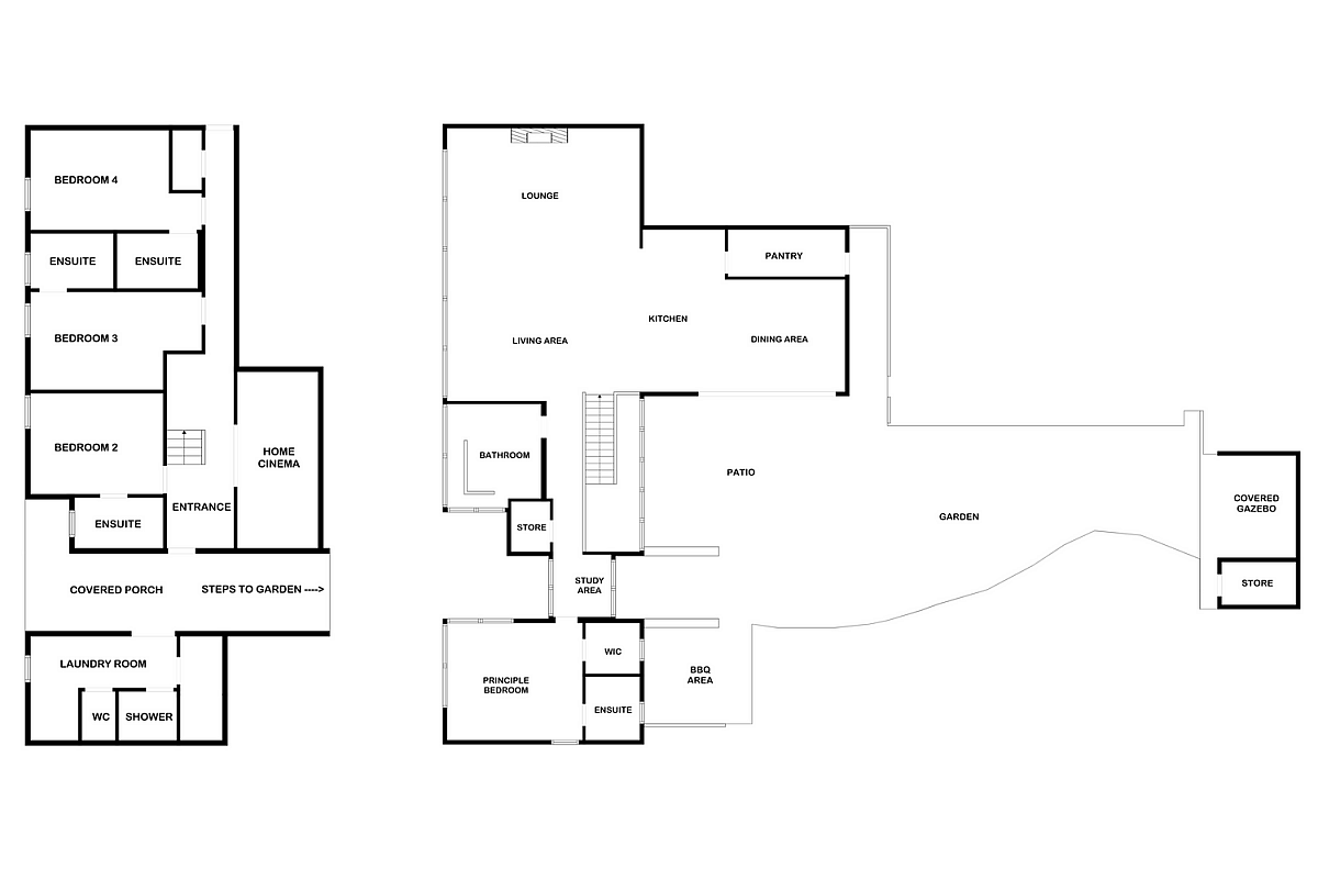
Rooms

ENTRANCE HALL An impressive double-height entrance hall with porcelain tiled flooring and a striking open-tread staircase leading to the first floor living areas.
HOME CINEMA (5.00m X 2.29m) Acoustic wood panelling; 4K Dolby Atmos surround sound system with in-ceiling speakers; raised seating platform; discrete feature lighting.
BEDROOM 2 (2.92m X 3.86m) Double bedroom to the front; engineered laminate flooring.
ENSUITE (1.24m X 2.33m) Large walk-in shower; toilet; wall-mounted vanity with wash hand basin; porcelain tiled floor and walls; electric towel rail.
BEDROOM 3 (2.92m X 4.88m) Double bedroom to the front; engineered laminate flooring.
ENSUITE (1.46m X 2.27m) Large walk-in shower; toilet; wall-mounted vanity with wash hand basin; porcelain tiled floor and walls; electric towel rail.
BEDROOM 4 (4.88m X 2.92m) Double bedroom to the front; engineered laminate flooring.
ENSUITE Large walk-in shower; toilet; wall-mounted vanity with wash hand basin; porcelain tiled floor and walls; electric towel rail.
FIRST FLOOR
GALLERY LANDING Porcelain tiled floor; study area and storage.
KITCHEN (4.98m X 3.15m) Contemporary Rational fitted kitchen with island and breakfast bar; low profile ceramic work surfaces; recessed Franke sink unit with Quooker hot water tap; Siemens induction hob with downdraft extractor unit; integrated Siemens larder-style fridge; Miele appliances to include an integrated dishwasher, fitted oven and warming drawer plus additional Neff oven; porcelain tiled floor.
DINING AREA (3.96m X 4.35m) Porcelain tiled floor; double-glazed bi-fold doors leading to the rear patio and garden; remote controlled blinds; air conditioning unit.
LOUNGE & LIVING AREA (10.00m X 6.85m) Full height and width glazing floods the space with natural light while capturing the coastal views. A contemporary tiled fireplace with modern gas fire and feature concealed lighting enhance the space. Automated electric blinds and voile curtains; air conditioning unit; porcelain tiled floor.
PANTRY (1.68m X 4.18m) Range of high and low fitted units; laminate work surfaces; stainless steel sink; space for larder-style freezer and further undercounter appliance; porcelain tiled floor and door to the rear.
STUDY AREA (2.01m X 2.11m) Open study area; porcelain tiled floor.
PRINCIPAL BEDROOM (4.14m X 4.92m) Master suite with full width and height windows and stunning views; electric blinds; air conditioning unit.
ENSUITE (2.33m X 1.82m) Large walk-in shower; toilet; wall-mounted vanity with wash hand basin; porcelain tiled floor and walls; electric towel rail.
DRESSING ROOM (1.75m X 1.82m) Fitted clothes rails and shelving.
BATHROOM (3.31m X 3.49m) Full width and height windows and stunning views; electric blinds; freestanding bath; fitted wall-mounted vanity unit with wash hand basin; wall-mounted WC; porcelain tiled floor and walls; extractor unit and concealed lighting.
EXTERIOR
LAUNDRY ROOM (2.98m X 4.46m) Porcelain tiled flooring; range of fitted units; laminate work surfaces with stainless steel sink; separate WC; wet room style walk in shower; mechanical room.
DETACHED GARAGE (6.32m X 6.13m) Concrete floor; power and light; electric up and over door and side door.
COVERED GAZEBO (3.74m X 2.87m) Open fronted gazebo for hot tub; composite decking; power and lighting.
STORE (1.61m X 2.99m)
OUTSIDE FEATURES - Gated, self-draining tarmac driveway and parking area for several cars - Fully enclosed landscaped south-facing garden and patio area to the rear - Feature exterior lighting - Outside power and water supply

Broadband Speed Availability

Ultrafast

Potential Speeds for 39 Ballymacrea Road

Max Download
1800
Mbps
Max Upload
220
Mbps
The speeds indicated represent the maximum estimated fixed-line speeds as predicted by Ofcom. Please note that these are estimates, and actual service availability and speeds may differ.

Property Location

Show Map

Mortgage Calculator

Disclaimer: The following calculations act as a guide only, and are based on a typical repayment mortgage model. Financial decisions should not be made based on these calculations and accuracy is not guaranteed. Always seek professional advice before making any financial decisions.

Contact Agent

Contact Philip Tweedie & Company (Portstewart)

Contact Philip Tweedie & Company (Portstewart)

Request More Information
Requesting Info about...
39 Ballymacrea Road, Portrush, BT56 8NS 39 Ballymacrea Road, Portrush, BT56 8NS

By registering your interest, you acknowledge our Privacy Policy
Ask Holmes
Ask Holmes
Let's find your next home

Are you sure you want to reset the chat?

Checking API...