Contact Agent
Contact Philip Tweedie & Company (Coleraine)
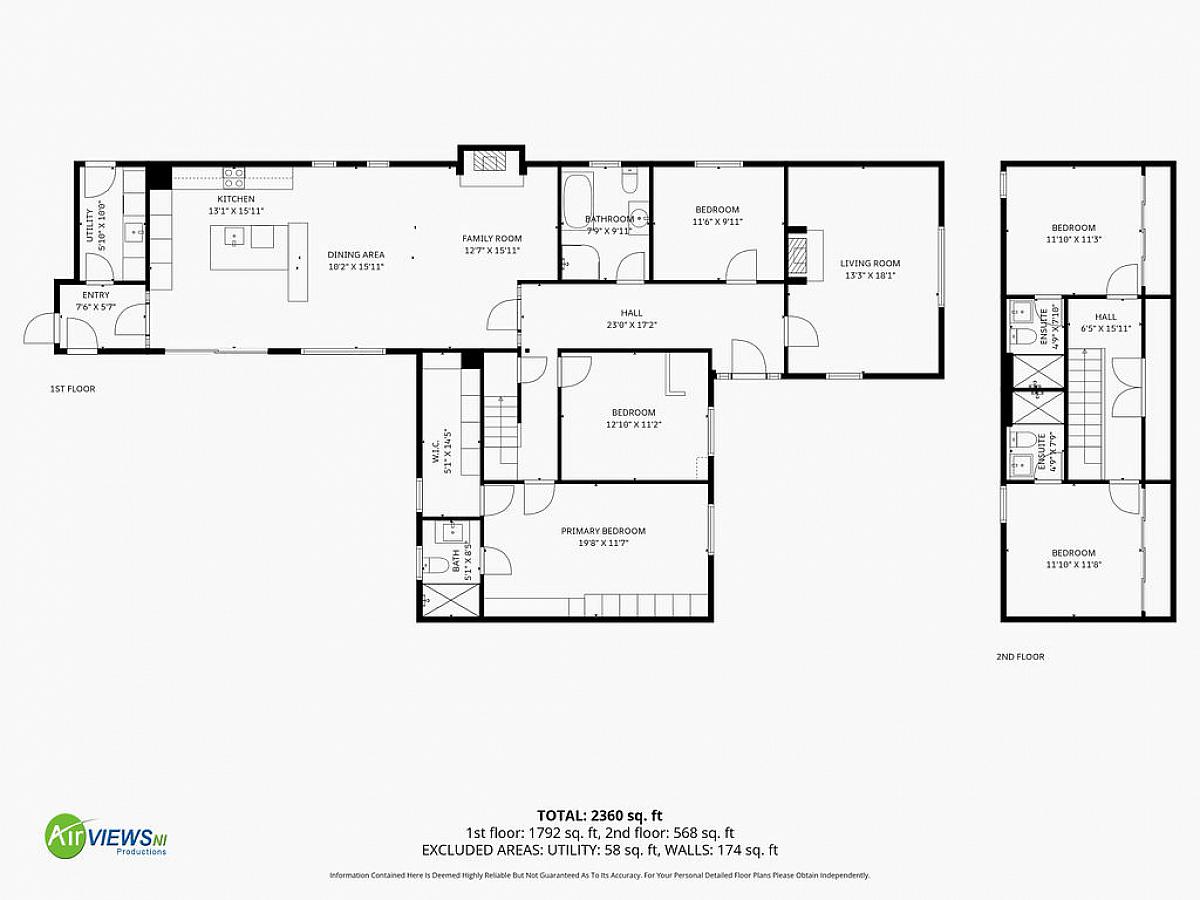
16 Bed Detached House
126 Coleraine Road
Portrush, BT56 8HN
offers in excess of
£950,000
Key Features & Description
Family residence perfectly presented and maintained throughout comprising, 5 bedrooms (3 En-suite), living room, open plan kitchen, living & dining, and utility room.
B&B comprising, 11 Bedrooms with 11 en-suite, to include dining room, laundry room and reception area.
All bedrooms fitted with high quality furniture and accessories.
Zoned heating system with 3 oil fired boilers.
Double glazed windows and doors throughout.
Fire extinguishers, fire and smoke alarms, CCTV and sensor lights.
Accounts available for bona fide parties who have viewed.
We encourage inspection, as this family home and business has been completed to the highest of speciation.
Viewing by appointment only.
Description
All Seasons B&B occupies a prominent site fronting onto Coleraine Road in the premier seaside town of Portrush. Coleraine Road forms part of the A29 which is the main arterial route leading into Portrush from Coleraine which is c. four miles inland and would be deemed as the hub town within this region.
The location is approximately one mile from Portrush Town centre and the harbour area which includes landmark pubs and restaurants. Portrush is c. 60 miles north of Belfast, c. 47 miles from Belfast International Airport, c. 29 miles from City of Derry airport and c. 52 miles to the Port of Larne.
Portrush is now perhaps most associated with Royal Portrush Golf Club the host of the 153rd Open Championship 2025. All Seasons is less than two miles from the first tee at Royal Portrush and is less than four miles from the famous Portstewart Golf links.
The town also allows ease of access to the World Heritage Site, The Giants Causeway and also to the world famous Bushmills Distillery, two of the most popular tourist attractions in Ireland.
Description
The building has been cleverly designed with a detached bungalow having been converted and extended to create a high quality high specification modern Bed and Breakfast. The current operators have recognized the level of competition within Portrush given the creation of hotel accommodation and accordingly have concentrated on providing a facility that offers a more homely and personal atmosphere.
The property offers the family living accommodation to the front and then eleven (11) ensuite bedrooms plus a spacious entertainment and dining facility to the rear.
All Seasons B&B occupies a prominent site fronting onto Coleraine Road in the premier seaside town of Portrush. Coleraine Road forms part of the A29 which is the main arterial route leading into Portrush from Coleraine which is c. four miles inland and would be deemed as the hub town within this region.
The location is approximately one mile from Portrush Town centre and the harbour area which includes landmark pubs and restaurants. Portrush is c. 60 miles north of Belfast, c. 47 miles from Belfast International Airport, c. 29 miles from City of Derry airport and c. 52 miles to the Port of Larne.
Portrush is now perhaps most associated with Royal Portrush Golf Club the host of the 153rd Open Championship 2025. All Seasons is less than two miles from the first tee at Royal Portrush and is less than four miles from the famous Portstewart Golf links.
The town also allows ease of access to the World Heritage Site, The Giants Causeway and also to the world famous Bushmills Distillery, two of the most popular tourist attractions in Ireland.
Description
The building has been cleverly designed with a detached bungalow having been converted and extended to create a high quality high specification modern Bed and Breakfast. The current operators have recognized the level of competition within Portrush given the creation of hotel accommodation and accordingly have concentrated on providing a facility that offers a more homely and personal atmosphere.
The property offers the family living accommodation to the front and then eleven (11) ensuite bedrooms plus a spacious entertainment and dining facility to the rear.
Rooms
ACCOMMODATION - MAIN RESIDENCE
ENTRANCE HALL
uPVC glass panel front door. Tiled floor. Under stairs storage.
LIVING ROOM (3.96m X 5.44m)
Wood burning stove with granite hearth and wooden mantle. TV point.
BEDROOM 1 (2.95m X 3.53m)
Double room with TV point. Built in dressing table and mirror.
BATHROOM
Comprising free standing bath with mixer taps, tiled shower cubicle with mains shower, wash hand basin in vanity unit with storage, low flush WC and heated towel rail. Tiled walls and tiled floor.
BEDROOM 5 / TREATMENT ROOM (3.55m X 3.75m)
Double room with TV point.
MASTER BEDROOM (3.50m X 5.80m)
Double carpeted room with fitted robes storage and fitted dressing table.
EN-SUITE
Comprising tiled shower cubicle with mains shower, low flush WC, wash hand basin in vanity unit and heated towel rail. Tiled walls and tiled floor.
DRESS ROOM (1.63m X 4.43m)
With fitted storage and robes.
FIRST FLOOR
Glass stair balustrade. Carpeted stairs and landing.
Large hotpress with shelving and hot water tank.
BEDROOM 3 (3.50m X 3.75m)
Double room with built in slide robes and TV point.
EN-SUITE
Tiled shower cubicle with electric shower, low flush WC, wash hand basin in vanity unit and heated towel rail.
BEDROOM 4 (3.76m X 3.80m)
Double room with built in slide robes and TV point.
EN-SUITE
Tiled shower cubicle with electric shower, low flush WC, wash hand basin in vanity unit and heated towel rail.
KITCHEN/ DINING / LIVING (4.75m X 11.00m)
High and low level storage units, integrated 'Aeg' fridge, freezer and dishwasher. Double oven with hotplates under, ceramic hob with extractor fan over. Stainless steel sink with mixer taps. Granite worktops. Island with storage and breakfast bar. Multifuel stove to living area with granite hearth. TV point. Tiled floor.
REAR PORCH
Tiled floor. Access to side car park and utility room.
UTILITY ROOM (1.70m X 2.80m)
Tiled floor, Fitted high and low level units with space for washing machine and dryer. Stainless steel sink and drainer unit. Access to rear.
ACCOMMODATION - B & B
BEDROOM 9 (4.60m X 3.60m)
Double room with fitted robes, headboard, lockers and dressing table with mirror. TV, safe, fridge and hospitality set.
EN-SUITE
Tiled shower cubicle with mains shower, wash hand basin in vanity unit, low flush WC, heated towel rail and tiled floor.
MAIN DINING ROOM (6.20m X 7.63m)
24 Covers, Fitted storage and shelving, glass fronted display fridges and TV. Sliding patio doors to side.
RECEPTION AREA
With fitted reception desk and access to carpark.
LAUNDRY ROOM
With fitted shelving.
BEDROOM 1 (3.10m X 4.20m)
Double room with fitted robes, headboard, lockers and dressing table with mirror. TV, safe, fridge and hospitality set.
EN-SUITE
Shower cubicle with mains shower, wash hand basin in vanity unit, low flush WC, heated towel rail and tiled floor.
BEDROOM 2 (3.10m X 4.20m)
Double room with fitted robes, headboard, lockers and dressing table with mirror. TV, safe, fridge and hospitality set.
EN-SUITE
Shower cubicle with mains shower, wash hand basin in vanity unit, low flush WC, heated towel rail and tiled floor.
BEDROOM 3 (3.10m X 4.35m)
Double room with fitted robes, headboard, lockers and dressing table with mirror. TV, safe, fridge and hospitality set.
EN-SUITE
Shower cubicle with mains shower, wash hand basin in vanity unit, low flush WC, heated towel rail and tiled floor.
BEDROOM 4 (4.35m X 3.10m)
Double room with fitted robes, headboard, lockers and dressing table with mirror. TV, safe, fridge and hospitality set.
EN-SUITE
Shower cubicle with mains shower, wash hand basin in vanity unit, low flush WC, heated towel rail and tiled floor.
BEDROOM 5 /DISABLED ROOM (4.10m X 3.10m)
Double room with fitted robes, headboard, lockers and dressing table with mirror. TV, safe, fridge and hospitality set. Disabled assistance cords in bedroom and wet room.
EN-SUITE /WET ROOM
Wet room with mains shower, wash hand basin in vanity unit, low flush WC, heated towel rail and tiled floor.
BEDROOM 6 / TRIPLE FAMILY ROOM (5.30m X 3.10m)
With fitted robes, headboard, lockers and dressing table with mirror. TV, safe, fridge and hospitality set.
EN-SUITE
Shower cubicle with mains shower, wash hand basin in vanity unit, low flush WC, heated towel rail and tiled floor.
BEDROOM 7 / QUADRUPLE FAMILY ROOM (5.65m X 3.20m)
With fitted robes, headboard, lockers and dressing table with mirror. TV, safe, fridge and hospitality set.
EN-SUITE
Shower cubicle with mains shower, wash hand basin in vanity unit, low flush WC, heated towel rail and tiled floor.
BEDROOM 8 / TRIPLE FAMILY ROOM (5.65m X 3.20m)
With fitted robes, headboard, lockers and dressing table with mirror. TV, safe, fridge and hospitality set.
EN-SUITE
Shower cubicle with mains shower, wash hand basin in vanity unit, low flush WC, heated towel rail and tiled floor.
ACCOMMODATION - ANNEX
Carpeted entrance with storage cupboard. uPVC glass panelled door.
BEDROOM 10 (5.00m X 4.55m)
Double room with fitted robes, headboard, lockers and dressing table with mirror. TV, safe, fridge and hospitality set.
EN-SUITE
Shower cubicle with mains shower, wash hand basin in vanity unit, low flush WC, heated towel rail and tiled floor.
EN-SUITE
Shower cubicle with mains shower, wash hand basin in vanity unit, low flush WC, heated towel rail and tiled floor.
BEDROOM 11 - TRIPLE ROOM (4.10m X 5.92m)
With fitted robes, headboard, lockers and dressing table with mirror. TV, safe, fridge and hospitality set.
EXTERIOR
Tarmac driveway and carpark.
Outside sensor lights.
Outside tap.
Four sheds with various storage.
Broadband Speed Availability
Potential Speeds for 126 Coleraine Road
Max Download
2000
Mbps
Max Upload
2000
MbpsThe speeds indicated represent the maximum estimated fixed-line speeds as predicted by Ofcom. Please note that these are estimates, and actual service availability and speeds may differ.
Property Location
Mortgage Calculator
Contact Agent
Contact Philip Tweedie & Company (Coleraine)
Request More Information
Requesting Info about...
126 Coleraine Road, Portrush, BT56 8HN
By registering your interest, you acknowledge our Privacy Policy
By registering your interest, you acknowledge our Privacy Policy