3 Bed Semi-Detached House
Site 12 Ballywillin Gardens
Portrush, BT56 8JJ
asking price
£367,950
- Status For Sale
- Property Type Semi-Detached
- Bedrooms 3
- Receptions 2
- Bathrooms 2
-
Stamp Duty
Higher amount applies when purchasing as buy to let or as an additional property£8,398 / £26,795*
- Tenure Leasehold
Key Features & Description
External Features:
Energy-efficient traditional masonry construction with a mixture of brick and render.
10-year structural warranty cover.
Double-glazed high-performance lockable uPVC windows.
GRP composite front doors with a 5-point locking system.
High standard floor, wall, and loft insulation to ensure minimal heat loss and maximum efficiency.
Front garden includes featured landscaping with turfed lawn
Rear garden is top soiled and seeded.
Tarmac driveway.
Timber fencing to rear garden boundaries.
Feature lighting to the front and standard lighting to the rear.
Outside tap.
Wired for a future car charging port.
Internal Features:
Smart heating system.
High-speed broadband up to gigafast speeds (depending on provider and package chosen).
Comprehensive range of electrical sockets throughout, including TV and telephone points.
Electric focal fire in all homes.
Painted internal doors with chrome ironmongery.
Painted moulded skirting, architraves, stair handrails, and balustrades.
Smoke, heat, and CO2 detectors fitted as standard.
Kitchen:
A choice of fully fitted kitchens, including doors and handles.
Quartz worktop with upstands and an undermount sink.
Integrated appliances, including an electric hob, extractor hood, dishwasher, fridge freezer, and washing machine.
Bathrooms, Ensuites & WCs:
Contemporary white sanitary ware and chrome fittings.
Feature vanity unit in the main bathroom, with an included vanity unit in the ensuite for all detached homes.
Thermostatic rain shower in the main bathroom and ensuite.
Heated chrome towel rail in the main bathroom.
Free-standing bath included in selected house types.
Feature downlighters in the main bathroom and ensuite.
Floor Coverings & Tiles:
Ceramic floor tiling in the kitchen, dining area, entrance hall, store, bathroom, ensuite, and WC.
Ceramic wall tiling in shower enclosures and around the bath in selected house types.
Splashback tiling to hand basins.
Carpet and underlay in the lounge, family room*, stairs, landing, and all bedrooms.
Description
Ballywillin Gardens
A stunning collection of 3, 4 & 5 bedroom detached and semi-detached energy efficient homes in the beautiful seaside town of Portrush.
Superior Family Homes
Ballywillin Gardens, an exquisite residential development located on the prestigious Ballywillin Road, Portrush which features a stunning range of 3, 4 & 5 bedroom detached and semi-detached homes, all boosting A-rated efficiency, meaning lower running costs.
Energy Efficient Homes
From superior internal and external finishes to the magnificent choice of quality kitchens, bathrooms, tiling and flooring, every Lotus home is built with comfort, style and elegance in mind. No two homes will be finished the same as you stay at the forefront of tailoring your new home to reflect your own style.
Our commitment to excellence shines through in every detail, including our A-rated energy efficient homes. Designed with the environment and your pocket in mind, featuring advanced solar panels, highly efficient appliances and energy efficient insulation, our homes offer substantial annual energy savings. From lower energy bills to a healthier indoor environment our A-rated homes offer a multitude of benefits for both your family and the planet. Embrace a greener lifestyle without compromising on luxury or style.
Life & Leisure
Portrush, a gem nestled along the northern coast of Northern Ireland, beckons visitors with its irresistible charm and captivating allure, boasting a harmonious blend of stunning coastal scenery, rich history and a vibrant atmosphere.
As you wander through the heart of Portrush, the rugged coastline of the Atlantic Ocean unveils itself, offering a mesmerising backdrop that sets the stage for an unforgettable experience. The towns panoramic vistas showcase nature grandeur, with waves crashing against the shore, and cliffs standing sentinel along the horizon. Portrush effortlessly weaves together the raw beauty of its surroundings with the warmth of its community.
The lively pulse of the town is evident in its bustling markets, lively pubs and the laugher that resonates through its charming streets. Local cuisine takes centre stage, inviting gastronomic adventures that range from freshly caught seafood to traditional Irish delicacies. The aroma of culinary delights mingles with the salty sea breeze, creating a sensory symphony that captures the essence of Portrush.
For those seeking outdoor adventures, the coastline of Portrush beckons exploration. Whether it's a leisurely stroll along the sandy shores, a thrilling surf session, or a hike along the coastal trails, the town offers a plethora of activities to connect with nature. The ever-changing hues of the sky during sunset over the Atlantic Ocean provide a breathtaking magnetic charm of Portrush casts its spell, ensuring that the memories forged within its embrace linger long after the journey has ended.
Ballywillin Gardens
A stunning collection of 3, 4 & 5 bedroom detached and semi-detached energy efficient homes in the beautiful seaside town of Portrush.
Superior Family Homes
Ballywillin Gardens, an exquisite residential development located on the prestigious Ballywillin Road, Portrush which features a stunning range of 3, 4 & 5 bedroom detached and semi-detached homes, all boosting A-rated efficiency, meaning lower running costs.
Energy Efficient Homes
From superior internal and external finishes to the magnificent choice of quality kitchens, bathrooms, tiling and flooring, every Lotus home is built with comfort, style and elegance in mind. No two homes will be finished the same as you stay at the forefront of tailoring your new home to reflect your own style.
Our commitment to excellence shines through in every detail, including our A-rated energy efficient homes. Designed with the environment and your pocket in mind, featuring advanced solar panels, highly efficient appliances and energy efficient insulation, our homes offer substantial annual energy savings. From lower energy bills to a healthier indoor environment our A-rated homes offer a multitude of benefits for both your family and the planet. Embrace a greener lifestyle without compromising on luxury or style.
Life & Leisure
Portrush, a gem nestled along the northern coast of Northern Ireland, beckons visitors with its irresistible charm and captivating allure, boasting a harmonious blend of stunning coastal scenery, rich history and a vibrant atmosphere.
As you wander through the heart of Portrush, the rugged coastline of the Atlantic Ocean unveils itself, offering a mesmerising backdrop that sets the stage for an unforgettable experience. The towns panoramic vistas showcase nature grandeur, with waves crashing against the shore, and cliffs standing sentinel along the horizon. Portrush effortlessly weaves together the raw beauty of its surroundings with the warmth of its community.
The lively pulse of the town is evident in its bustling markets, lively pubs and the laugher that resonates through its charming streets. Local cuisine takes centre stage, inviting gastronomic adventures that range from freshly caught seafood to traditional Irish delicacies. The aroma of culinary delights mingles with the salty sea breeze, creating a sensory symphony that captures the essence of Portrush.
For those seeking outdoor adventures, the coastline of Portrush beckons exploration. Whether it's a leisurely stroll along the sandy shores, a thrilling surf session, or a hike along the coastal trails, the town offers a plethora of activities to connect with nature. The ever-changing hues of the sky during sunset over the Atlantic Ocean provide a breathtaking magnetic charm of Portrush casts its spell, ensuring that the memories forged within its embrace linger long after the journey has ended.
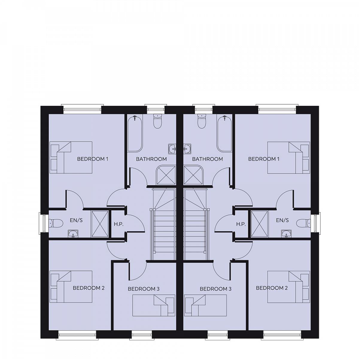
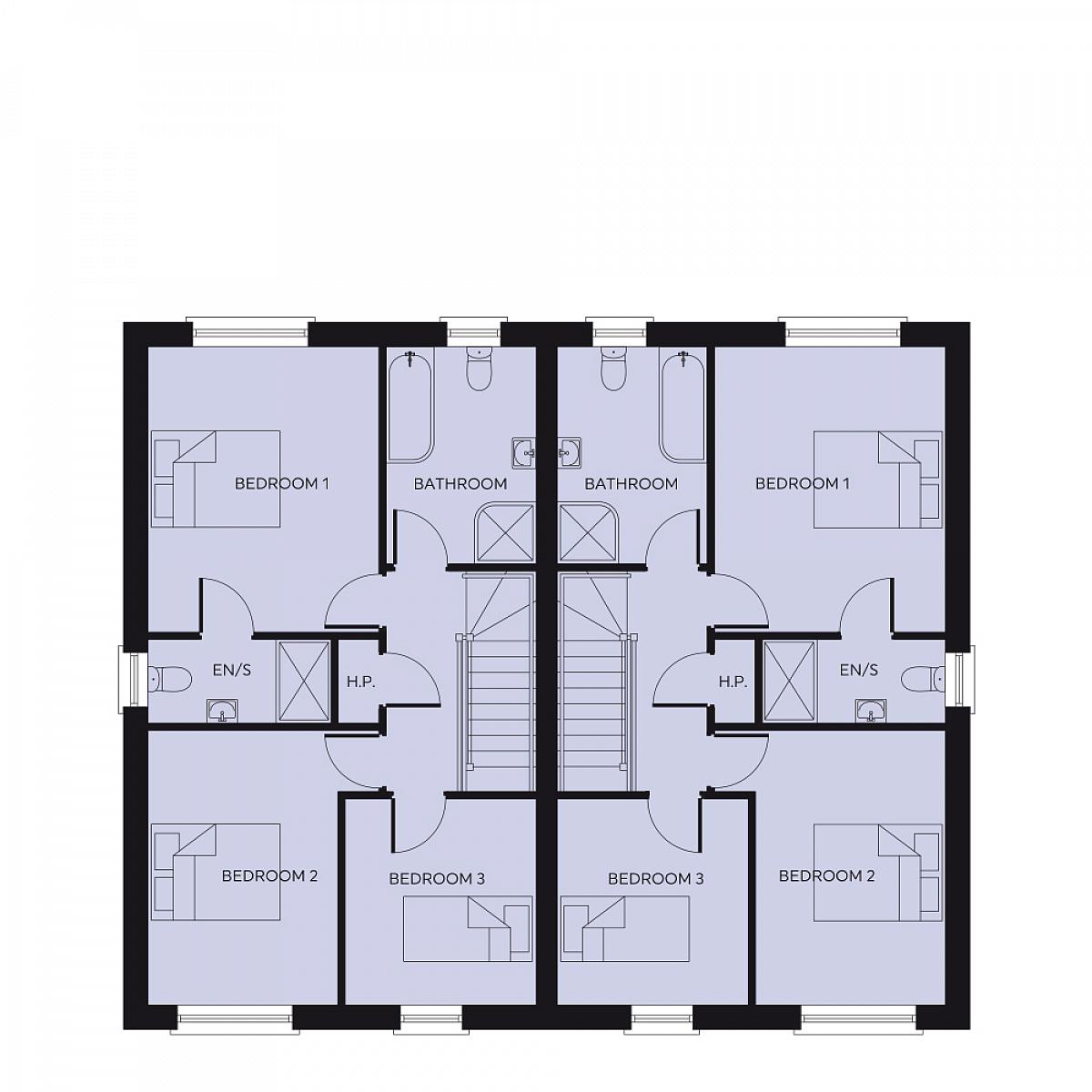
Rooms
GROUND FLOOR:
LIVING AREA: (3.30m X 4.70m)
KITCHEN / DINING / SNUG: (2.90m X 5.59m)
GARDEN ROOM: (2.69m X 3.61m)
UTILITY ROOM: (1.70m X 3.30m)
SEPARATE WC: (0.89m X 2.31m)
OPTIONAL EXTRA:
Garage - available on selected plots.
FIRST FLOOR:
BEDROOM (1): (3.30m X 4.09m)
ENSUITE SHOWER ROOM: (1.19m X 2.59m)
BEDROOM (2): (3.30m X 3.99m)
BEDROOM (3): (2.79m X 3.00m)
BATHROOM: (2.21m X 3.10m)
Broadband Speed Availability
Potential Speeds for Site 12 Ballywillin Gardens
Max Download
0
Mbps
Max Upload
0
MbpsThe speeds indicated represent the maximum estimated fixed-line speeds as predicted by Ofcom. Please note that these are estimates, and actual service availability and speeds may differ.
Property Location
Mortgage Calculator
Directions
Approaching Portrush from Coleraine on the Ballywillin Road, Ballywillan Gardens will be on your right hand side opposite the corner of Girona Crescent.
Contact Agent
Request More Information
Requesting Info about...
Site 12 Ballywillin Gardens, Portrush, BT56 8JJ
By registering your interest, you acknowledge our Privacy Policy
By registering your interest, you acknowledge our Privacy Policy