Retail
4 Causeway Street
Portrush, BT56 8AB
offers over
£165,000
- Status SSTC
- Property Type Retail
- Bathrooms 1
-
Stamp Duty
Higher amount applies when purchasing as buy to let or as an additional property£800 / £9,050*
Key Features & Description
PVC Double Glazed Windows
Solid Roller Shutters Controlled By Remote Control
Suitable For A Variety Of Uses & By Every Type Of Buyer
Sea View To Front
Service Charge Presently £800.00 Per Annum To Include Buildings Insurance
Unit Has Been Meticulously Maintained By The Current Owner
Suitable For Pension Investment
Access To Rear
Negotiable Completion Date
Alarm & CCTV Alarm System
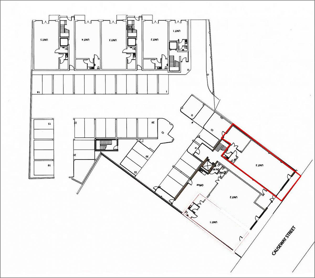
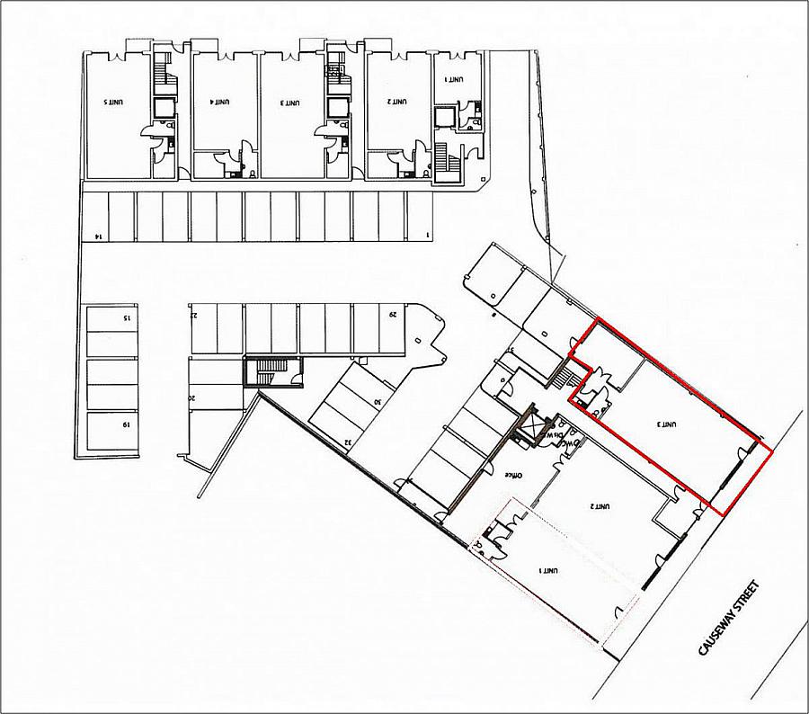
Description
Armstrong Gordon are delighted to offer for sale this superb sized retail unit suitable for a variety of uses and presently being a highly successful gift shop business, located in the heart of Portrush town centre. The premises benefit from a large retail area and additional kitchen, separate w.c., wash hand basin, storage room plus rear hall. This property was constructed circa 2008 and also has sea views and is situated opposite the Arcadia building and steps leading down to a scenic beach. Footfall could hardly be any better due to its enviable position. Please contact agent to arrange a private internal viewing appointment.
Armstrong Gordon are delighted to offer for sale this superb sized retail unit suitable for a variety of uses and presently being a highly successful gift shop business, located in the heart of Portrush town centre. The premises benefit from a large retail area and additional kitchen, separate w.c., wash hand basin, storage room plus rear hall. This property was constructed circa 2008 and also has sea views and is situated opposite the Arcadia building and steps leading down to a scenic beach. Footfall could hardly be any better due to its enviable position. Please contact agent to arrange a private internal viewing appointment.
Rooms
MAIN SHOP: (7.37m X 12.85m)
With laminate wood floor and recessed plug sockets.
REAR HALLWAY: (1.24m X 3.35m)
KITCHEN: (1.57m X 1.96m)
With single drainer stainless steel sink unit, low level units, space for fridge and tiled floor.
STORAGE: (3.86m X 6.02m)
With light and power points and laminate wood floor.
SEPARATE WC:
With wash hand basin with tiled splashback and tiled floor.
Broadband Speed Availability
Potential Speeds for 4 Causeway Street
Max Download
80
Mbps
Max Upload
20
MbpsThe speeds indicated represent the maximum estimated fixed-line speeds as predicted by Ofcom. Please note that these are estimates, and actual service availability and speeds may differ.
Property Location
Mortgage Calculator
Directions
As you proceed along Main Street in Portrush veer left onto Causeway Street and this retail unit will be located on your right, immediately opposite the North 55 Restaurant in the centre of Portrush.
Contact Agent
Contact Armstrong Gordon & Co
Request More Information
Requesting Info about...
4 Causeway Street, Portrush, BT56 8AB
By registering your interest, you acknowledge our Privacy Policy
By registering your interest, you acknowledge our Privacy Policy