Contact Agent
Contact Philip Tweedie & Company (Portstewart)
4 Bed Cottage
Lochreys Cottage, 71 Ballaghmore Road
71 Ballaghmore Road, Portballintrae, BT57 8RL
offers over
£575,000
Key Features & Description
Oil-fired central heating system.
Double glazing in timber frames.
Large garden with patio area to the rear.
Gravel driveway with excellent parking to the rear.
Detached garage to the rear.
Description
A unique opportunity to acquire a charming character cottage, believed to be one of the original farmhouses within the village, set on a generous and mature site in the heart of Portballintrae.
The property offers well-proportioned accommodation including four bedrooms, three bathrooms, a welcoming reception hall, spacious lounge with open fire, and a traditional dining kitchen with Aga cooker.
Externally, the property benefits from a large private rear garden and a substantial detached garage, providing excellent outdoor space and storage.
Ideally located just a short distance from the seafront, harbour area, and Runkerry Strand, this property combines village living with easy access to the North Coasts stunning scenery.
While requiring some updating, Lochreys Cottage presents a fantastic opportunity to create a bespoke home in one of the areas most sought-after seaside villages.
A unique opportunity to acquire a charming character cottage, believed to be one of the original farmhouses within the village, set on a generous and mature site in the heart of Portballintrae.
The property offers well-proportioned accommodation including four bedrooms, three bathrooms, a welcoming reception hall, spacious lounge with open fire, and a traditional dining kitchen with Aga cooker.
Externally, the property benefits from a large private rear garden and a substantial detached garage, providing excellent outdoor space and storage.
Ideally located just a short distance from the seafront, harbour area, and Runkerry Strand, this property combines village living with easy access to the North Coasts stunning scenery.
While requiring some updating, Lochreys Cottage presents a fantastic opportunity to create a bespoke home in one of the areas most sought-after seaside villages.
Rooms
RECEPTION HALL (3.34m X 3.75m)
Bright and spacious entrance; open staircase; under stairs storage cupboard.
LOUNGE (4.41m X 5.02m)
Open fire with painted wooden surround.
DINING KITCHEN (5.66m X 3.96m)
Range of fitted units; laminate work surfaces; stainless steel sink & drainer; oil fired aga cooker; space for dining; door to the rear hall, utility room and rear patio.
UTILITY ROOM (2.38m X 3.61m)
Range of fitted units; stainless steel sink & drainer; laminate work surfaces; space for fridge freezer & dryer; plumbed for washing machine; vinyl floor; door to the rear store.
REAR PORCH (2.37m X 3.59m)
Range of fitted units; space for fridge freezer; oil boiler; vinyl floor; door to the rear.
BEDROOM 1 (2.92m X 4.66m)
Double bedroom to the front.
SHOWER ROOM (1.73m X 2.63m)
Tiled wet room style shower; toilet; wash hand basin; chrome towel radiator.
HALL (1.10m X 3.50m)
Recessed lighting.
BEDROOM 2 (2.98m X 3.89m)
Double bedroom to the rear; built in storage cupboard.
SHOWER ROOM (1.91m X 3.36m)
Tiled wet room style shower; toilet; wash hand basin.
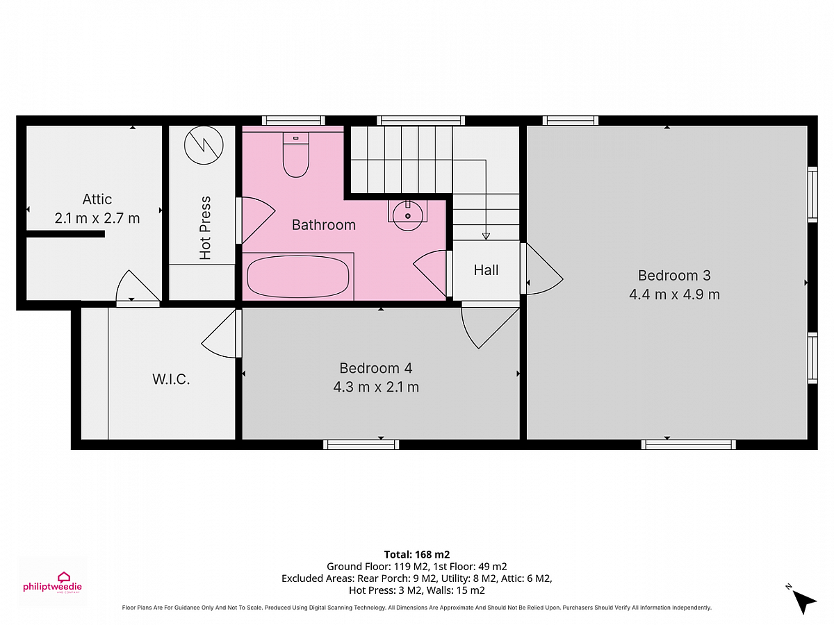
FIRST FLOOR
BEDROOM 3 (4.36m X 4.84m)
Double bedroom to the front.
BEDROOM 4 (4.37m X 1.89m)
Single bedroom to the front.
WALK-IN STORAGE (2.41m X 2.08m)
Access to the attic.
BATHROOM (3.74m X 2.81m)
Panel bath with shower over; toilet; wash hand basin; shelved hot press.
EXTERIOR
DETACHED GARAGE (3.69m X 7.24m)
Double barn doors; pedestrian side door; concrete floor; power & light.
OUTSIDE FEATURES
- Large rear garden & patio areas.
- Mature landscaping.
- Garden in lawn surrounding the property.
- Gravel driveway and parking area.
Virtual Tour
Broadband Speed Availability
Potential Speeds for Lochreys Cottage, 71 Ballaghmore Road
Max Download
1800
Mbps
Max Upload
300
MbpsThe speeds indicated represent the maximum estimated fixed-line speeds as predicted by Ofcom. Please note that these are estimates, and actual service availability and speeds may differ.
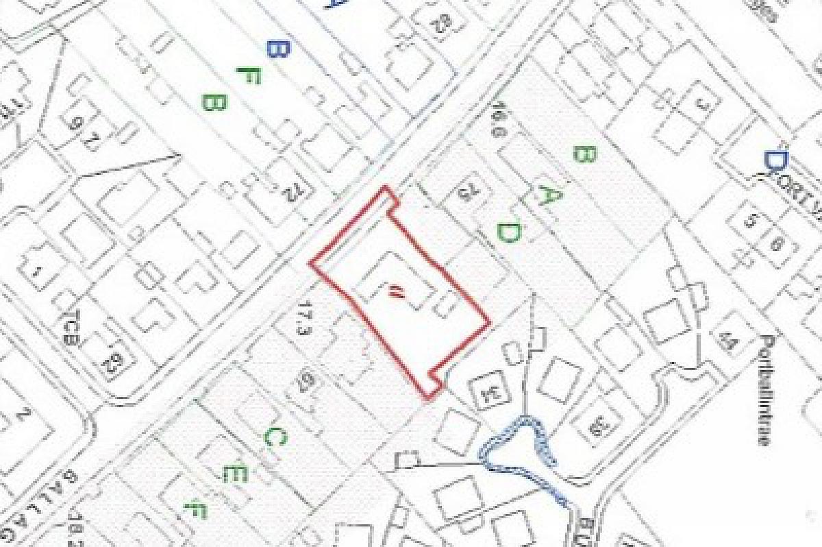
Property Location
Mortgage Calculator
Contact Agent
Contact Philip Tweedie & Company (Portstewart)
Request More Information
Requesting Info about...
Lochreys Cottage, 71 Ballaghmore Road, 71 Ballaghmore Road, Portballintrae, BT57 8RL
By registering your interest, you acknowledge our Privacy Policy
By registering your interest, you acknowledge our Privacy Policy