Contact Agent

Contact Dynes Residential

Contact Dynes Residential

Site

Site 100M 12 Ballygalget Road

Portaferry, BT22 1NE

offers around £85,000
  • Status For Sale
  • Property Type Site
  • Stamp Duty
    Higher amount applies when purchasing as buy to let or as an additional property
    £0 / £4,250*
  • Typical Mortgage
    Click price to use our mortgage calculator

Description

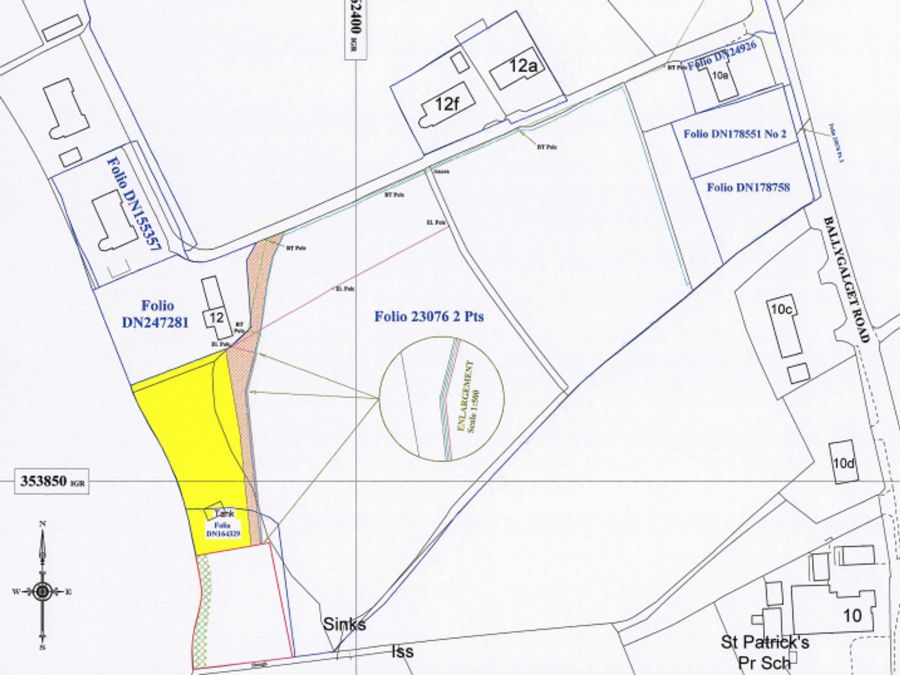
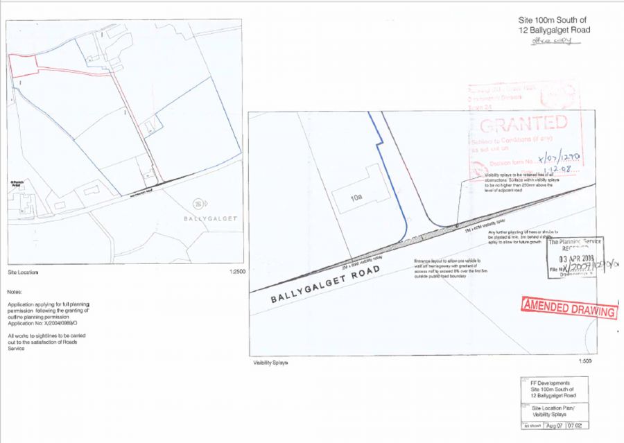
Dynes Residential are delighted to welcome this stunning site with full planning permission to the market. Situated in a rural setting, with views across the rolling countryside whilst only a short drive away from Portaferry town; conveniently located to all local amenities and schools.

This site is located just off the Ballygalget Road, accessible via a shared concrete laneway with access road to site in place.

This site has a proposed dwelling size of approximately 2100 square feet. A Certificate of Lawfulness has been approved, thus allowing the buyer to amend the house type to their own choice of design.

 

Water and electric within close proximity, vendor to carry out own further searches and due diligence.

Property Location

Show Map

Mortgage Calculator

Disclaimer: The following calculations act as a guide only, and are based on a typical repayment mortgage model. Financial decisions should not be made based on these calculations and accuracy is not guaranteed. Always seek professional advice before making any financial decisions.

Contact Agent

Contact Dynes Residential

Contact Dynes Residential

Request More Information
Requesting Info about...
Site 100M 12 Ballygalget Road, Portaferry, BT22 1NE Site 100M  12 Ballygalget Road, Portaferry, BT22 1NE

By registering your interest, you acknowledge our Privacy Policy
Ask Holmes
Ask Holmes
Let's find your next home

Are you sure you want to reset the chat?

Checking API...