Site
Development Lands At Cloughey Road
Portaferry, BT22 1ND
asking price
£550,000
- Status For Sale
- Property Type Site
-
Stamp Duty
Higher amount applies when purchasing as buy to let or as an additional property£17,500 / £45,000*
Key Features & Description
Prominent Residential Development Site Situated in the Quaint Harbour Village of Portaferry
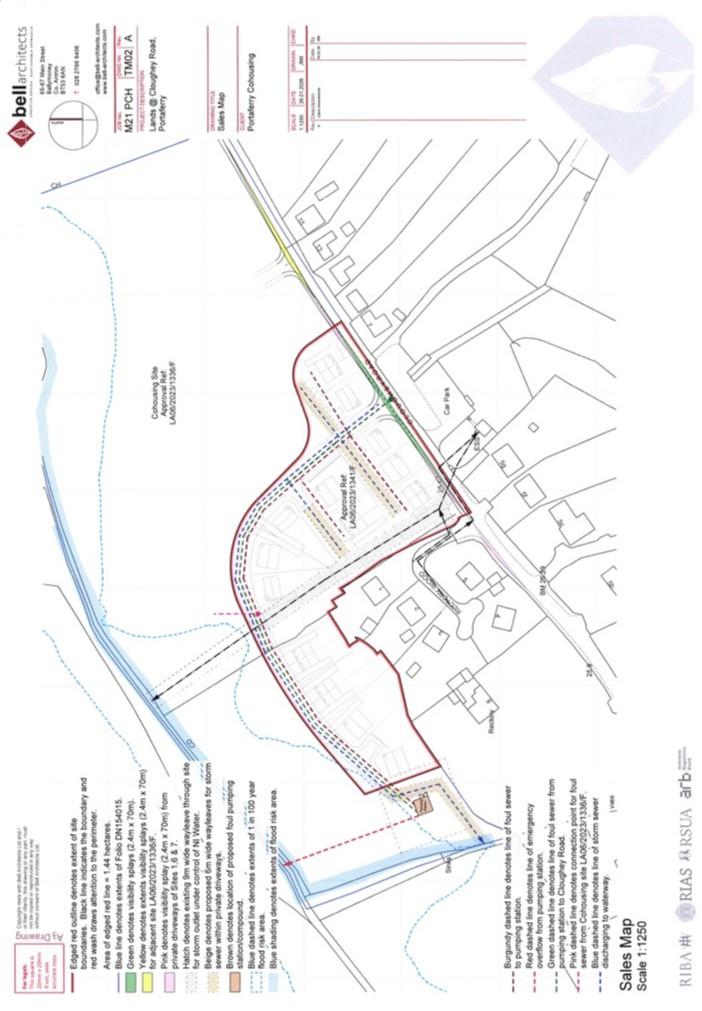
Full Planning Permission for 19 Houses Under Application LA06/2023/1341/F
Comprising an Excellent Mix of Semi Detached and Detached Housing
Within Walking Distance to Many Local Amenities, Schools, Shops and Strangford Ferry
Located Approximately 18 Miles from Newtownards and 27 Miles from Belfast
Description
An excellent residential development opportunity set within the highly desirable and quaint harbour village of Portaferry, Co. Down.
The site benefits from full planning permission under application LA06/2023/1341/F dated 9 October 2025, for the development of 19 detached and semi-detached homes. The approved scheme has been thoughtfully designed to create a low density, high quality residential development that compliments the character of the area while providing spacious, modern accommodation suited to a broad range of purchasers, from first time buyers, families, and downsizers to those seeking a coastal lifestyle.
The schedule of accommodation comprises of the following:
o10 No. three bedroom semi-detached houses extending to approximately 1,036 sqft
o4 No. four bedroom detached houses extending to approximately 1,628 sqft
o5 No. three bedroom detached bungalows extending to approximately 1,215 sqft, or alternatively five-bedroom detached chalet bungalows (with roofspace conversion) extending to approximately 1,842 sqft
Portaferry offers an enviable lifestyle, combining coastal walks, scenic views and outdoor leisure with a welcoming town centre, local schools, shops, cafes and restaurants. The nearby ferry connection and surrounding countryside further enhance the town´s appeal, making it a popular choice for both permanent residents and those seeking a high quality coastal home. The lands are located approximately 18 miles from Newtownards and 27 Miles from Belfast.
An excellent residential development opportunity set within the highly desirable and quaint harbour village of Portaferry, Co. Down.
The site benefits from full planning permission under application LA06/2023/1341/F dated 9 October 2025, for the development of 19 detached and semi-detached homes. The approved scheme has been thoughtfully designed to create a low density, high quality residential development that compliments the character of the area while providing spacious, modern accommodation suited to a broad range of purchasers, from first time buyers, families, and downsizers to those seeking a coastal lifestyle.
The schedule of accommodation comprises of the following:
o10 No. three bedroom semi-detached houses extending to approximately 1,036 sqft
o4 No. four bedroom detached houses extending to approximately 1,628 sqft
o5 No. three bedroom detached bungalows extending to approximately 1,215 sqft, or alternatively five-bedroom detached chalet bungalows (with roofspace conversion) extending to approximately 1,842 sqft
Portaferry offers an enviable lifestyle, combining coastal walks, scenic views and outdoor leisure with a welcoming town centre, local schools, shops, cafes and restaurants. The nearby ferry connection and surrounding countryside further enhance the town´s appeal, making it a popular choice for both permanent residents and those seeking a high quality coastal home. The lands are located approximately 18 miles from Newtownards and 27 Miles from Belfast.
Rooms
Please Note:
Please Note: The pumping station will be shared between the two developments and will be located to the west of the housing development on Portaferry Cohousing (LA06/2023/1336/F) land. NIWater requires Storm Water Offsetting (SWO) which has been passed by a consultant engineer on third party lands, consisting of <10m new sewer, and regradeing ~10m of existing sewer. Waste Water Impact Assessment Stage 2 will be submitted to NIWater on March 26.
The costs for the pumping station and the SWO are to be split between the Housing site and Portaferry Cohousing 34% / 66%.
The costs for the pumping station and the SWO are to be split between the Housing site and Portaferry Cohousing 34% / 66%.
Property Location
Mortgage Calculator
Contact Agent
Contact Tim Martin & Co (Comber)
Request More Information
Requesting Info about...
Development Lands At Cloughey Road, Portaferry, BT22 1ND
By registering your interest, you acknowledge our Privacy Policy
By registering your interest, you acknowledge our Privacy Policy