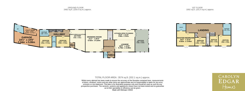
6 Bed Detached House
Lough Cowey Lodge, 9 Lough Cowey Road
Portaferry, BT22 1PJ
offers in region of
£470,000
- Status Sale Agreed
- Property Type Detached
- Bedrooms 6
- Receptions 4
- Bathrooms 5
-
Stamp Duty
Higher amount applies when purchasing as buy to let or as an additional property£13,500 / £37,000*
Key Features & Description
Impressive and Spacious Home with Attached Annexe
Idyllic Location on Banks of Lough Cowey
Stunning Views over Surrounding Area
Set on Elevated site of Circa ¾ Acre
Main Dwelling:
Four Double Bedrooms, Two with Juliet Balcony
Master with Ensuite
Dual Aspect Drawing Room with Open Fireplace and Patio Doors to Sun Terrace
Open Plan Lounge with Wood Burning Stove
Sunroom with Valued Ceilings
Annexe:
Two Double Bedrooms, One with Ensuite
Open Plan Lounge with Fitted Kitchen Area
Walk in Shower Room
Disabled Access
Double Garage with Utility Room and WC
OFCH
Description
This is a unique opportunity to not only to purchase this magnificent home but for the change of pace and lifestyle that comes with it. Set on the picturesque banks of Lough Cowey, in the most idyllic of locations boasting outstanding views over the lake and surrounding countryside the property is set on a prime site of circa ¾ of an acre in an unrivalled position and is located within close proximity to Portaferry with its marina, restaurants, shops and schools close at hand as well as plenty of opportunities to enjoy the great outdoors, from sailing on the Strangford Lough, cycling, fishing, walking and birdwatching. A thriving air BnB business has been operating from the attached two-bedroom annex which will be perfect for those looking to run a successful business from the comfort of their own home or alternatively those looking for that extra space for family or elderly relatives and has been adapted for those living with a health condition or disability. Internally the main property comprises of a large welcoming entrance hallway, extensive dual aspect drawing room with formal dining area, feature open fireplace and patio doors to the rear sun terrace, spacious lounge with multi fuel burning stove open plan to fitted kitchen with casual dining area, large sunroom with vaulted ceiling and convenient downstairs bathroom. Upstairs are four generous sized bedrooms, two with Juliet balcony with outstanding views over the lake and beyond, master with ensuite and two with vanity sink unit and built in robes and separate family bathroom. The annexe comprises of entrance hall, spacious open plan lounge with kitchen area, two double bedrooms, one with ensuite and separate shower room with walk in shower with access from main hall and bedroom two. The property also benefits from large double garage with utility room and separate WC. Outside the property is set on an exceptional site with stunning panoramic views on a large well maintained site with ample parking for boats, horse boxes etc in wraparound gardens laid in lawn and mature trees and shrubs and with all rooms with glorious views you can chose your space inside or out to sit and watch the wide variety of bird life, swans, geese, ducks and waders coming in over the lough, not a bad choice to have!
This is a unique opportunity to not only to purchase this magnificent home but for the change of pace and lifestyle that comes with it. Set on the picturesque banks of Lough Cowey, in the most idyllic of locations boasting outstanding views over the lake and surrounding countryside the property is set on a prime site of circa ¾ of an acre in an unrivalled position and is located within close proximity to Portaferry with its marina, restaurants, shops and schools close at hand as well as plenty of opportunities to enjoy the great outdoors, from sailing on the Strangford Lough, cycling, fishing, walking and birdwatching. A thriving air BnB business has been operating from the attached two-bedroom annex which will be perfect for those looking to run a successful business from the comfort of their own home or alternatively those looking for that extra space for family or elderly relatives and has been adapted for those living with a health condition or disability. Internally the main property comprises of a large welcoming entrance hallway, extensive dual aspect drawing room with formal dining area, feature open fireplace and patio doors to the rear sun terrace, spacious lounge with multi fuel burning stove open plan to fitted kitchen with casual dining area, large sunroom with vaulted ceiling and convenient downstairs bathroom. Upstairs are four generous sized bedrooms, two with Juliet balcony with outstanding views over the lake and beyond, master with ensuite and two with vanity sink unit and built in robes and separate family bathroom. The annexe comprises of entrance hall, spacious open plan lounge with kitchen area, two double bedrooms, one with ensuite and separate shower room with walk in shower with access from main hall and bedroom two. The property also benefits from large double garage with utility room and separate WC. Outside the property is set on an exceptional site with stunning panoramic views on a large well maintained site with ample parking for boats, horse boxes etc in wraparound gardens laid in lawn and mature trees and shrubs and with all rooms with glorious views you can chose your space inside or out to sit and watch the wide variety of bird life, swans, geese, ducks and waders coming in over the lough, not a bad choice to have!
Broadband Speed Availability
Potential Speeds for Lough Cowey Lodge, 9 Lough Cowey Road
Max Download
1000
Mbps
Max Upload
1000
MbpsThe speeds indicated represent the maximum estimated fixed-line speeds as predicted by Ofcom. Please note that these are estimates, and actual service availability and speeds may differ.
Property Location
Mortgage Calculator
Contact Agent
Contact Carolyn Edgar Homes
Request More Information
Requesting Info about...
Lough Cowey Lodge, 9 Lough Cowey Road, Portaferry, BT22 1PJ
By registering your interest, you acknowledge our Privacy Policy
By registering your interest, you acknowledge our Privacy Policy