Contact Agent

Contact Carolyn Edgar Homes

Contact Carolyn Edgar Homes

Land

10 Ardminnan Road

Portaferry, BT22 1QH

from £149,950
  • Status For Sale
  • Property Type Land
  • Stamp Duty
    Higher amount applies when purchasing as buy to let or as an additional property
    £499 / £7,997*
  • Typical Mortgage
    Click price to use our mortgage calculator

Description

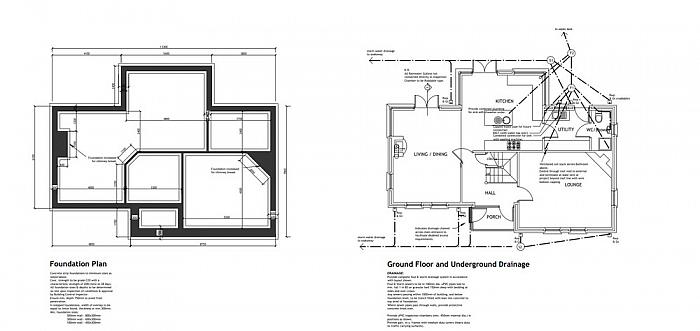
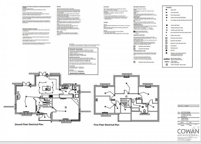
Situated in a beautiful semi-rural, yet convenient location, with full planning permission granted for a three/ four-bedroom detached family home and with stunning views of the surrounding countryside this is a great opportunity to purchase a prime site with foundations already in for the construction of a detached property extending to approx. 1350 sq ft. with all services and sub floor laid. The current plans include downstairs - kitchen with utility room, separate lounge and second reception/dining room, downstairs shower room and three /possible fourth bedroom or study on the first floor and family bathroom.

Broadband Speed Availability

Ultrafast

Potential Speeds for 10 Ardminnan Road

Max Download
1000
Mbps
Max Upload
1000
Mbps
The speeds indicated represent the maximum estimated fixed-line speeds as predicted by Ofcom. Please note that these are estimates, and actual service availability and speeds may differ.

Property Location

Show Map

Mortgage Calculator

Disclaimer: The following calculations act as a guide only, and are based on a typical repayment mortgage model. Financial decisions should not be made based on these calculations and accuracy is not guaranteed. Always seek professional advice before making any financial decisions.

Contact Agent

Contact Carolyn Edgar Homes

Contact Carolyn Edgar Homes

Request More Information
Requesting Info about...
10 Ardminnan Road, Portaferry, BT22 1QH 10 Ardminnan Road, Portaferry, BT22 1QH

By registering your interest, you acknowledge our Privacy Policy