4 Bed House
Ainesley Site 1 Bellfield Park
Portadown
price
£370,000
- Status For Sale
- Property Type House
- Bedrooms 4
- Receptions 1
- Interior Area 1689 sqft
-
Stamp Duty
Higher amount applies when purchasing as buy to let or as an additional property£8,500 / £27,000*
Description
THE AINESLEY
4 B E D R O O M D E TA C H E D H O M E
SITE Nos. 1(H) & 8TOTAL FLOOR AREA 1689 sq. ft. approx
with optional garden room 1799 sq. ft. approx.
G R O U N D F L O O R Ft/Inch (Metres)
Entrance Hall
WC
Lounge: 14´0" x 11´0" (4.25m x 3.35m)
Kitchen | Dining: 18´0" x 12´4" (5.47m x 3.77m)
Snug: 7´3" x 6´0" (2.20m x 1.82m)
Utility
Optional Garden Room 10´4" x 10´0" (3.13m x 3.04m)
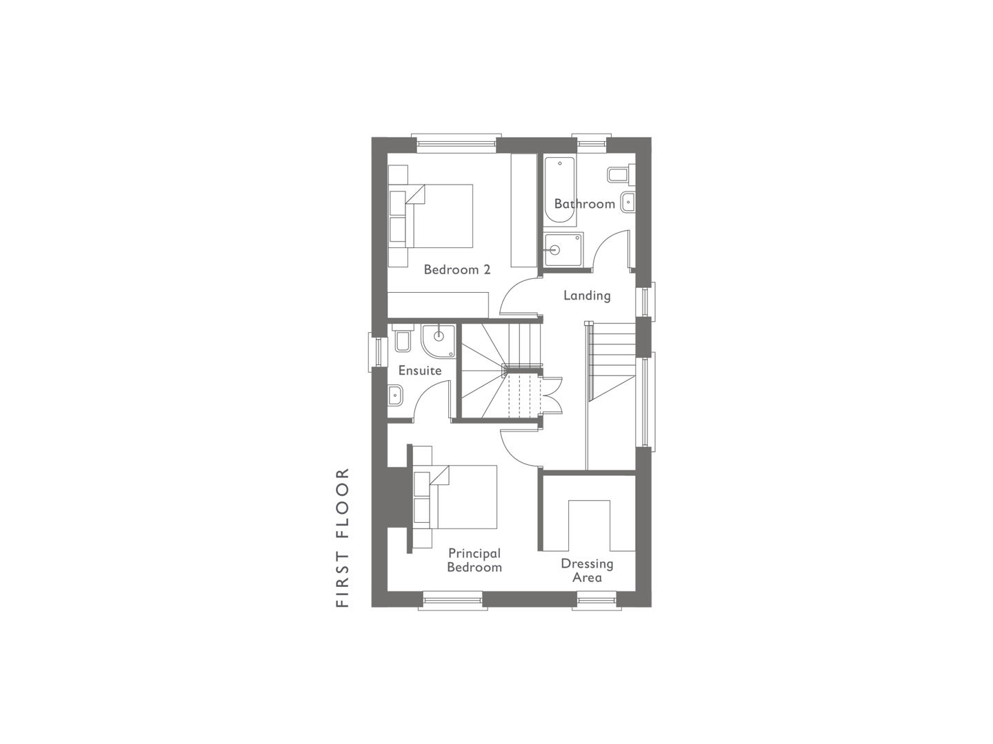
F I R S T F L O O R Ft/Inch (Metres)
Principal Bedroom: 12´5" x 11´1" (3.77m x 3.37m)
Ensuite
Dressing Area: 8´6" x 6´10" (2.60m x 2.08m)
Bedroom 2: 12´2" x 11´1" (3.71m x 3.37m)
Bathroom
S E C O N D F L O O R Ft/Inch (Metres)
Bedroom 3: 14´8" x 12´5" (4.46m x 3.77m)
Ensuite
Bedroom 4: 16´5" x 12´2" (5.00m x 3.71m)
4 B E D R O O M D E TA C H E D H O M E
SITE Nos. 1(H) & 8TOTAL FLOOR AREA 1689 sq. ft. approx
with optional garden room 1799 sq. ft. approx.
G R O U N D F L O O R Ft/Inch (Metres)
Entrance Hall
WC
Lounge: 14´0" x 11´0" (4.25m x 3.35m)
Kitchen | Dining: 18´0" x 12´4" (5.47m x 3.77m)
Snug: 7´3" x 6´0" (2.20m x 1.82m)
Utility
Optional Garden Room 10´4" x 10´0" (3.13m x 3.04m)
F I R S T F L O O R Ft/Inch (Metres)
Principal Bedroom: 12´5" x 11´1" (3.77m x 3.37m)
Ensuite
Dressing Area: 8´6" x 6´10" (2.60m x 2.08m)
Bedroom 2: 12´2" x 11´1" (3.71m x 3.37m)
Bathroom
S E C O N D F L O O R Ft/Inch (Metres)
Bedroom 3: 14´8" x 12´5" (4.46m x 3.77m)
Ensuite
Bedroom 4: 16´5" x 12´2" (5.00m x 3.71m)
Property Location
Mortgage Calculator
Contact Agent
Contact Hannath
Request More Information
Requesting Info about...
Ainesley Site 1 Bellfield Park, Portadown
By registering your interest, you acknowledge our Privacy Policy
By registering your interest, you acknowledge our Privacy Policy