Contact Agent

Contact Joyce Clarke

Contact Joyce Clarke

Site

Pair Of Building Sites

Blackisland Road, Portadown, BT62 1NH

fixed price £99,950
  • Status For Sale
  • Property Type Site
  • Stamp Duty
    Higher amount applies when purchasing as buy to let or as an additional property
    £0 / £4,998*
  • Typical Mortgage
    Click price to use our mortgage calculator

Key Features & Description

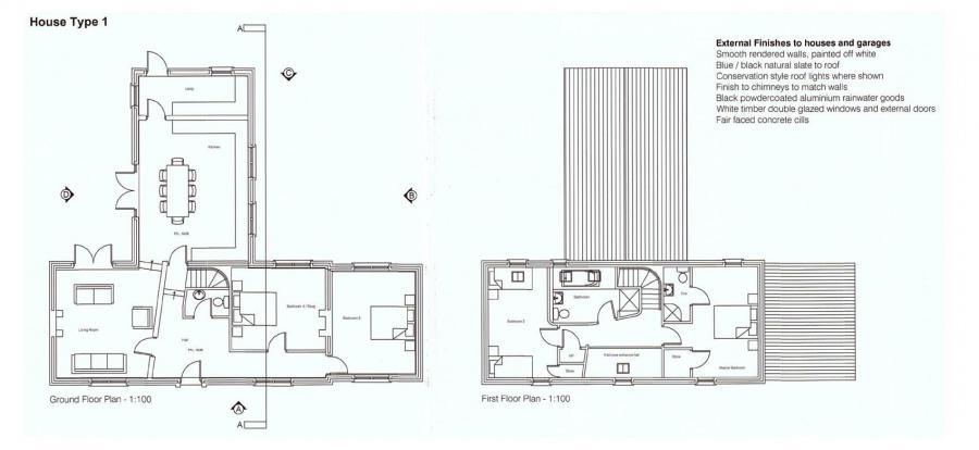
Planning for traditionally inspired detached family homes with garage
Excellent location within easy reach of M1
Desirable two storey properties approx 2000 sq ft
Generous plot sizes - total site area circa 1.7 acres
Description

This is a wonderful opportunity to acquire two building sites, each with the benefit of plans for a c.2,000sqft detached dwelling. The sites are situated on a prime rural location, a short drive from Portadown, Armagh and Dungannon and approximately 1.5 miles from Junction 13 of the M1 motorway.

Set well back from the country road, the sites enjoy fine views over the surrounding countryside whilst the proposed two storey homes have been designed to offer appealing external elevations, beautifully proportioned family accommodation and a stylish internal layout taking full advantage of their delightful position.

Property Location

Show Map

Mortgage Calculator

Disclaimer: The following calculations act as a guide only, and are based on a typical repayment mortgage model. Financial decisions should not be made based on these calculations and accuracy is not guaranteed. Always seek professional advice before making any financial decisions.

Contact Agent

Contact Joyce Clarke

Contact Joyce Clarke

Request More Information
Requesting Info about...
Pair Of Building Sites, Blackisland Road, Portadown, BT62 1NH Pair Of Building Sites, Blackisland Road, Portadown, BT62 1NH

By registering your interest, you acknowledge our Privacy Policy