Contact Agent
Contact Michael Chandler Estate Agents
4 Bed
39 Delhi Street
Ormeau, Belfast, BT7 3AJ
asking price
£285,000
- Status For Sale
- Bedrooms 4
- Receptions 2
- Bathrooms 3
- Heating Gas
-
Stamp Duty
Higher amount applies when purchasing as buy to let or as an additional property£4,250 / £18,500*
Key Features & Description
Description
This charming four-bedroom mid-terrace property is nestled just off the highly sought-after Ormeau Road, offering an ideal blend of contemporary comfort and traditional charm. This home is perfectly positioned for those seeking convenience, with a range of local amenities and excellent transport links nearby.
The property comprises a welcoming entrance hall, a bright and spacious living room which is currently set up as a fifth bedroom featuring a bay window that floods the room with natural light and a charming solid wood floor, a cozy family that flows into a well-appointed kitchen with ample dining space and a useful ground floor shower room, ideal for modern family living. Upstairs comprises four generously sized bedrooms, each offering comfortable and versatile accommodation, a family bathroom, beautifully designed and a separate shower. room. The property is also benefits from gas fired central heating, double glazed windows and a fully enclosed rear yard. To the front is a delightful seating area.
Delhi Street is located just a short walk away from the vibrant Ormeau Road offering a variety of cafes, shops, bars and restaurants. This property offers easy access to Belfast city centre whether it be on foot or via the excellent transport links nearby and is within the catchment area to a range of schools in the surrounding area.
Your Next Move...
Thinking of selling, it would be a pleasure to offer you a FREE VALUATION of your property.
Mortgage advice is also available from our in-house Mortgage Advisor, you can find out how much you can borrow within minutes instead of waiting weeks to go through your high street bank for a decision.
To arrange a viewing or for further information contact Michael Chandler Estate Agents on 02890 450 550 or email property@michael-chandler.co.uk
This charming four-bedroom mid-terrace property is nestled just off the highly sought-after Ormeau Road, offering an ideal blend of contemporary comfort and traditional charm. This home is perfectly positioned for those seeking convenience, with a range of local amenities and excellent transport links nearby.
The property comprises a welcoming entrance hall, a bright and spacious living room which is currently set up as a fifth bedroom featuring a bay window that floods the room with natural light and a charming solid wood floor, a cozy family that flows into a well-appointed kitchen with ample dining space and a useful ground floor shower room, ideal for modern family living. Upstairs comprises four generously sized bedrooms, each offering comfortable and versatile accommodation, a family bathroom, beautifully designed and a separate shower. room. The property is also benefits from gas fired central heating, double glazed windows and a fully enclosed rear yard. To the front is a delightful seating area.
Delhi Street is located just a short walk away from the vibrant Ormeau Road offering a variety of cafes, shops, bars and restaurants. This property offers easy access to Belfast city centre whether it be on foot or via the excellent transport links nearby and is within the catchment area to a range of schools in the surrounding area.
Your Next Move...
Thinking of selling, it would be a pleasure to offer you a FREE VALUATION of your property.
Mortgage advice is also available from our in-house Mortgage Advisor, you can find out how much you can borrow within minutes instead of waiting weeks to go through your high street bank for a decision.
To arrange a viewing or for further information contact Michael Chandler Estate Agents on 02890 450 550 or email property@michael-chandler.co.uk
Rooms
Entrance Hall
Living Room 11'1" X 14'9" (3.38m X 4.50m)
Family Room 11'0" X 9'11" (3.35m X 3.02m)
Kitchen/Dining Room 14'1" X 10'8" (4.29m X 3.25m)
Shower Room 6'4" X 8'4" (1.93m X 2.54m)
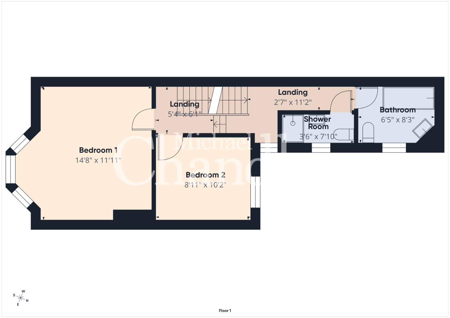
Bedroom 1 14'8" X 11'11" (4.47m X 3.63m)
Bedroom 2 8'11" X 10'2" (2.72m X 3.10m)
Bathroom 6'5" X 8'3" (1.96m X 2.51m)
Shower Room 3'6" X 7'10" (1.07m X 2.39m)
Bedroom 3 14'9" X 11'11" (4.50m X 3.63m)
Bedroom 4 8'11" X 10'3" (2.72m X 3.12m)
Michael Chandler Estate Agents have endeavoured to prepare these sales particulars as accurately and reliably as possible for the guidance of intending purchasers or lessees. These particulars are given for general guidance only and do not constitute any part of an offer or contract. The seller and agents do not give any warranty in relation to the property/ site. We would recommend that all information contained in this brochure is verified by yourself or your professional advisors. Services, fittings and equipment referred to in the sales details have not been tested and no warranty is given to their condition. All measurements contained within this brochure are approximate.
Virtual Tour
Broadband Speed Availability
Potential Speeds for 39 Delhi Street
Max Download
1800
Mbps
Max Upload
220
MbpsThe speeds indicated represent the maximum estimated fixed-line speeds as predicted by Ofcom. Please note that these are estimates, and actual service availability and speeds may differ.
Property Location
Mortgage Calculator
Contact Agent
Contact Michael Chandler Estate Agents
Request More Information
Requesting Info about...
39 Delhi Street, Ormeau, Belfast, BT7 3AJ
By registering your interest, you acknowledge our Privacy Policy
By registering your interest, you acknowledge our Privacy Policy