Contact Agent
Contact Michael Chandler Estate Agents
2 Bed Terrace House
62 Walmer Street
Ormeau, Belfast, BT7 3EB
asking price
£175,000
Key Features & Description
Description
A charming two bedroom mid-terrace property nestled just off the bustling Ormeau Road, offering a perfect blend of comfort and convenience. With this property being situated in a popular location it is sure to attract interest from first time buyers, professional couple and investors alike.
Downstairs comprises an open-plan living and dining area with a wood affect floor, creating an inviting ambiance. The focal point of this space is the feature fireplace housing a wood-burning stove, perfect for cozy evenings. The kitchen area benefits from high and low level units and is equipped with plumbing for white goods and a built in oven and hob.
Upstairs you'll find two generously sized bedrooms and a bathroom that features a three-piece suite. Additionally, the spacious landing area could accommodate a home office, making it an ideal setup for remote work or study.
This property also benefits from a yard area allowing for an added storage area. The oil fired central heating system and the double glazing throughout ensures warmth and comfort throughout the year
The Ormeau Road is a short stroll away offering a host of amenities and access to frequent local transport in and out of Belfast City Centre. There are some excellent bars and shops to enjoy and Ormeau Park is a delightful place to stretch the legs.
Your Next Move...
Thinking of selling, it would be a pleasure to offer you a FREE VALUATION of your property.
Mortgage advice is also available from our in-house Mortgage Advisor, you can find out how much you can borrow within minutes instead of waiting weeks to go through your high street bank for a decision.
To arrange a viewing or for further information contact Michael Chandler Estate Agents on 02890 450 550 or email property@michael-chandler.co.uk
A charming two bedroom mid-terrace property nestled just off the bustling Ormeau Road, offering a perfect blend of comfort and convenience. With this property being situated in a popular location it is sure to attract interest from first time buyers, professional couple and investors alike.
Downstairs comprises an open-plan living and dining area with a wood affect floor, creating an inviting ambiance. The focal point of this space is the feature fireplace housing a wood-burning stove, perfect for cozy evenings. The kitchen area benefits from high and low level units and is equipped with plumbing for white goods and a built in oven and hob.
Upstairs you'll find two generously sized bedrooms and a bathroom that features a three-piece suite. Additionally, the spacious landing area could accommodate a home office, making it an ideal setup for remote work or study.
This property also benefits from a yard area allowing for an added storage area. The oil fired central heating system and the double glazing throughout ensures warmth and comfort throughout the year
The Ormeau Road is a short stroll away offering a host of amenities and access to frequent local transport in and out of Belfast City Centre. There are some excellent bars and shops to enjoy and Ormeau Park is a delightful place to stretch the legs.
Your Next Move...
Thinking of selling, it would be a pleasure to offer you a FREE VALUATION of your property.
Mortgage advice is also available from our in-house Mortgage Advisor, you can find out how much you can borrow within minutes instead of waiting weeks to go through your high street bank for a decision.
To arrange a viewing or for further information contact Michael Chandler Estate Agents on 02890 450 550 or email property@michael-chandler.co.uk
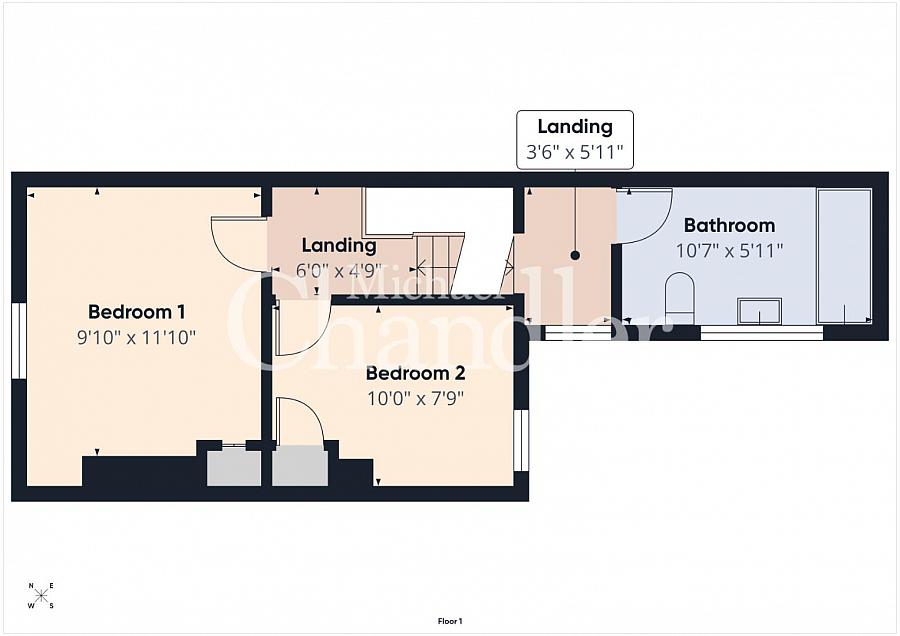
Rooms
Entrance Hall 12'4 X 3'2 (3.76m X 0.97m)
Living & Dining Room 20'3 X 9'5 (6.17m X 2.87m)
Kitchen 14'4 X 5'11 (4.37m X 1.80m)
Landing
Bedroom 1 9'10 X 11'10 (3.00m X 3.61m)
Bedroom 2 10'0 X 7'9 (3.05m X 2.36m)
Bathroom 10'7 X 5'11 (3.23m X 1.80m)
Michael Chandler Estate Agents have endeavoured to prepare these sales particulars as accurately and reliably as possible for the guidance of intending purchasers or lessees. These particulars are given for general guidance only and do not constitute any part of an offer or contract. The seller and agents do not give any warranty in relation to the property. We would recommend that all information contained in this brochure is verified by yourself or your professional advisors. Services, fittings and equipment referred to in the sales details have not been tested and no warranty is given to their condition, nor does it confirm their inclusion in the sale. All measurements contained within this brochure are approximate.
Virtual Tour
Broadband Speed Availability
Potential Speeds for 62 Walmer Street
Max Download
1800
Mbps
Max Upload
220
MbpsThe speeds indicated represent the maximum estimated fixed-line speeds as predicted by Ofcom. Please note that these are estimates, and actual service availability and speeds may differ.
Property Location
Mortgage Calculator
Contact Agent
Contact Michael Chandler Estate Agents
Request More Information
Requesting Info about...
62 Walmer Street, Ormeau, Belfast, BT7 3EB
By registering your interest, you acknowledge our Privacy Policy
By registering your interest, you acknowledge our Privacy Policy