Contact Agent
Contact Michael Chandler Estate Agents
4 Bed Terrace House
24 Delhi Street
Ormeau, Belfast, BT7 3AJ
per month
£2,000pm
Key Features & Description
4-Bed HMO
Suitable for young professionals
Gas Fired Central Heating
Spacious bedrooms and communal spaces
Close to local amenities and transport routes into the city centre
Description
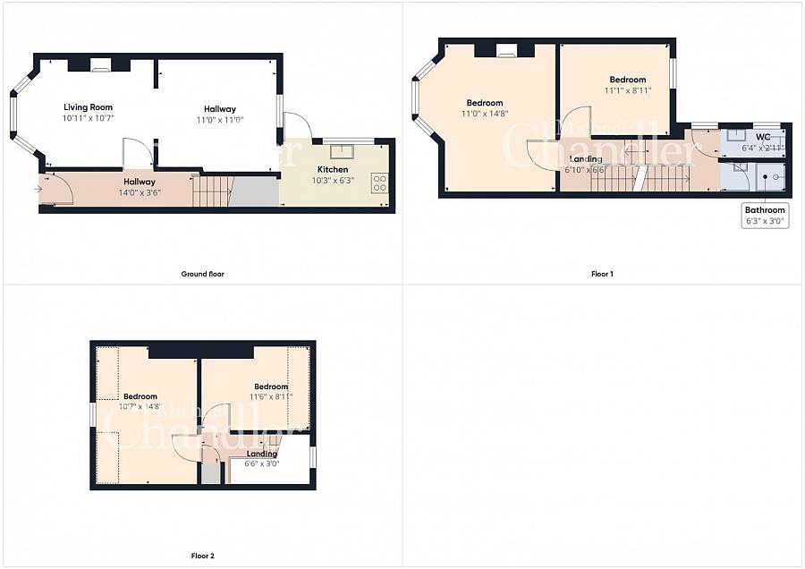
This fantastic mid terrace 4-Bed HMO property is in superb condition throughout and located only a moments walk from the ever popular Ormeau Road.
Downstairs comprises a welcoming entrance hall, a bright & spacious open plan living/dining room and a well fitted kitchen. The first floor is comprises of a shower room with a separate toilet and two double bedrooms, leading up to an additional two double bedrooms. To the front is a small hedged forecourt and an enclosed yard to the rear. Further benefits include gas fired central heating and double glazing throughout.
The Ormeau Road is a short stroll away offering a host of amenities and access to frequent local transport in and out of Belfast City Centre. There are some excellent bars and shops to enjoy and Ormeau Park is a delightful place to stretch the legs.
A deposit and the first month´s rent are payable in advance. The property is available from 1st April 2026 and is fully furnished furnished.
To arrange a viewing or for further information please call Michael Chandler Estate Agents on 02890 450550 or visit www.michael-chandler.co.uk
This fantastic mid terrace 4-Bed HMO property is in superb condition throughout and located only a moments walk from the ever popular Ormeau Road.
Downstairs comprises a welcoming entrance hall, a bright & spacious open plan living/dining room and a well fitted kitchen. The first floor is comprises of a shower room with a separate toilet and two double bedrooms, leading up to an additional two double bedrooms. To the front is a small hedged forecourt and an enclosed yard to the rear. Further benefits include gas fired central heating and double glazing throughout.
The Ormeau Road is a short stroll away offering a host of amenities and access to frequent local transport in and out of Belfast City Centre. There are some excellent bars and shops to enjoy and Ormeau Park is a delightful place to stretch the legs.
A deposit and the first month´s rent are payable in advance. The property is available from 1st April 2026 and is fully furnished furnished.
To arrange a viewing or for further information please call Michael Chandler Estate Agents on 02890 450550 or visit www.michael-chandler.co.uk
Virtual Tour
Broadband Speed Availability
Potential Speeds for 24 Delhi Street
Max Download
1800
Mbps
Max Upload
220
MbpsThe speeds indicated represent the maximum estimated fixed-line speeds as predicted by Ofcom. Please note that these are estimates, and actual service availability and speeds may differ.
Property Location
Contact Agent
Contact Michael Chandler Estate Agents
Request More Information
Requesting Info about...
24 Delhi Street, Ormeau, Belfast, BT7 3AJ
By registering your interest, you acknowledge our Privacy Policy
By registering your interest, you acknowledge our Privacy Policy