Contact Agent

Contact Michael Chandler Estate Agents

Contact Michael Chandler Estate Agents

3 Bed End Terrace

11 Cooke Court

Ormeau, Belfast, BT7 2ER

asking price £189,950
  • Status Sale Agreed
  • Property Type End Terrace
  • Bedrooms 3
  • Receptions 2
  • Bathrooms 1
  • Heating Gas
  • EPC Rating C73 / C73 -
  • Stamp Duty
    Higher amount applies when purchasing as buy to let or as an additional property
    £1,299 / £10,797*
  • Typical Mortgage
    Click price to use our mortgage calculator
EPC Rating

Key Features & Description

  • Well presented end terrace property ideally positioned off the lower Ormeau Road in South Belfast
  • Easy access to main arterial transport links leading to Belfast City Centre and further a field
  • Doorstep convenience to many popular shops, restaurants, bars and eateries
  • Close to excellent schools, parks, and Belfast City airport
  • Separate lounge with feature fireplace and laminate wood strip floor
  • Open Plan Kitchen Diner with modern fitted kitchen and space for casual dining area
  • Walk in Utility Area
  • Landing with additional storage
  • Three well appointed bedrooms - all with laminate wood strip floors
  • Modern fitted bathroom with white suite
  • Enclosed low maintenance rear garden with off road parking
  • Gas fired central heating and UPVC double glazed windows
  • Ideally suited to the first time buyer, young professional or investor alike
  • Description
    We are pleased to present this well-proportioned three-bedroom end-terrace home, ideally situated just off the Ormeau Road in South Belfast. This prime location provides convenient access to Belfast City Centre and Belfast City Airport, making it perfect for commuters. Additionally, it is within walking distance of a variety of popular shops and restaurants.

    The property features a welcoming entrance hall, a bright and spacious living room with a feature fireplace and lamiante wood strip floor, and an open-plan kitchen/dining area with a fitted kitchen and ample space for casual dining. A walk-in utility area adds extra convenience. Upstairs, a generous landing with additional storage leads to three well-sized bedrooms and a modern family bathroom with a sleek white suite.

    Additional benefits include UPVC double glazing throughout, gas-fired central heating, a private driveway for off-street parking to the rear, and a low-maintenance enclosed front garden.

    With its spacious rooms, private parking, and excellent proximity to Belfast City Centre and major transport links, this property is an excellent opportunity for buyers. Early viewing is highly recommended to fully appreciate all it has to offer.

    To arrange a viewing or for further information please call Michael Chandler Estate Agents on 02890 450 550 or visit www.michael-chandler.co.uk

    Your Next Move...

    Thinking of selling, it would be a pleasure to offer you a FREE VALUATION of your property.

    Mortgage advice is also available from our in-house Mortgage Advisor, you can find out how much you can borrow within minutes instead of waiting weeks to go through your high street bank for a decision.

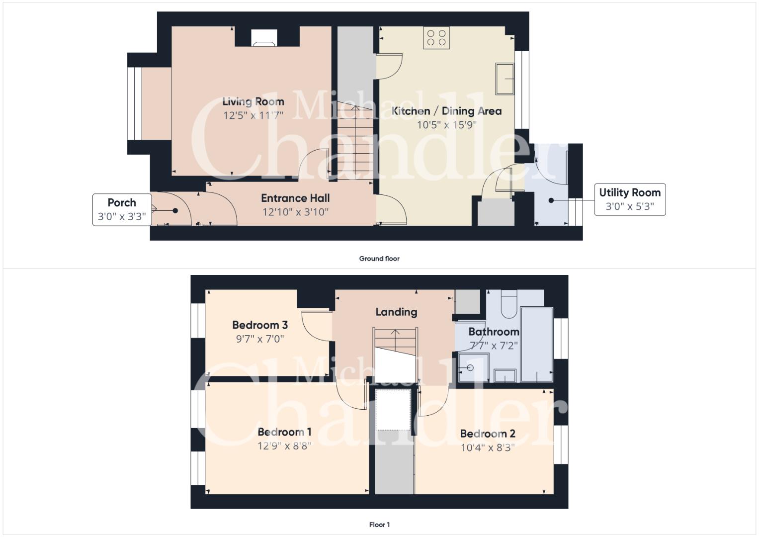
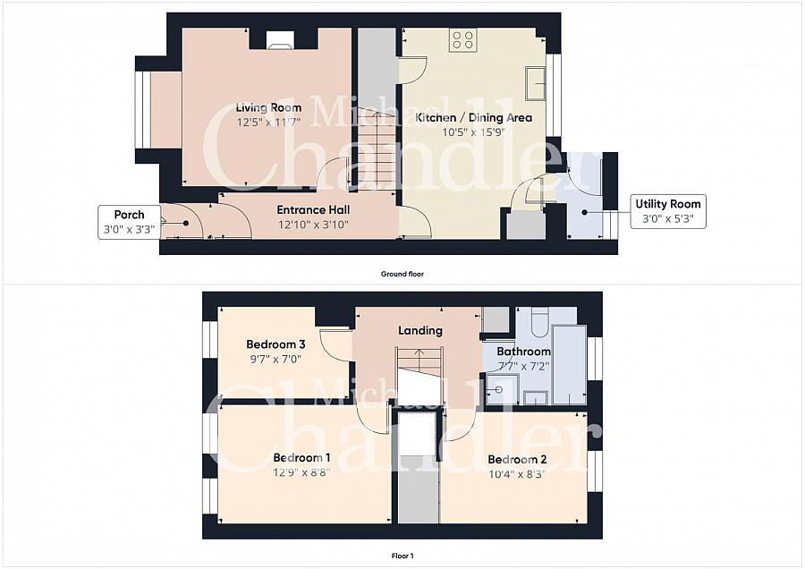
    Rooms

    Entrance Porch 3'0 X 3'3 (0.91m X 0.99m)
    Entrance Hall 12'10 X 3'10 (3.91m X 1.17m)
    Living Room 12'5 X 11'7 (3.78m X 3.53m)
    Kitchen / Dining Area 10'5 X 15'9 (3.18m X 4.80m)
    Utility Room 3'0 X 5'3 (0.91m X 1.60m)
    Landing
    Bedroom 1 12'9 X 8'8 (3.89m X 2.64m)
    Bedroom 2 10'4 X 8'3 (3.15m X 2.51m)
    Bedroom 3 9'7 X 7'0 (2.92m X 2.13m)
    Bathroom 7'7 X 7'2 (2.31m X 2.18m)
    Michael Chandler Estate Agents have endeavoured to prepare these sales particulars as accurately and reliably as possible for the guidance of intending purchasers or lessees. These particulars are given for general guidance only and do not constitute any part of an offer or contract. The seller and agents do not give any warranty in relation to the property. We would recommend that all information contained in this brochure is verified by yourself or your professional advisors. Services, fittings and equipment referred to in the sales details have not been tested and no warranty is given to their condition, nor does it confirm their inclusion in the sale. All measurements contained within this brochure are approximate.
    As an estate agency, we are required to verify the identity of both the vendor and the purchaser in accordance with Money Laundering Regulations 2017. In order to purchase a property in the United Kingdom, all agents have a legal obligation to conduct identity checks on all customers involved in the transaction to comply with Anti-Money Laundering regulations.
    We outsource these checks to a third-party provider and a charge of £20 + VAT per person will apply for this service.

    Virtual Tour

    Broadband Speed Availability

    Ultrafast

    Potential Speeds for 11 Cooke Court

    Max Download
    1800
    Mbps
    Max Upload
    220
    Mbps
    The speeds indicated represent the maximum estimated fixed-line speeds as predicted by Ofcom. Please note that these are estimates, and actual service availability and speeds may differ.

    Property Location

    Show Map

    Mortgage Calculator

    Disclaimer: The following calculations act as a guide only, and are based on a typical repayment mortgage model. Financial decisions should not be made based on these calculations and accuracy is not guaranteed. Always seek professional advice before making any financial decisions.

    Contact Agent

    Contact Michael Chandler Estate Agents

    Contact Michael Chandler Estate Agents

    Request More Information
    Requesting Info about...
    11 Cooke Court, Ormeau, Belfast, BT7 2ER 11 Cooke Court, Ormeau, Belfast, BT7 2ER

    By registering your interest, you acknowledge our Privacy Policy
    Ask Holmes
    Ask Holmes
    Let's find your next home

    Are you sure you want to reset the chat?

    Checking API...