Contact Agent

Contact Michael Chandler Estate Agents

Contact Michael Chandler Estate Agents

2 Bed Terrace House

25 Haywood Avenue

Ormeau, Belfast, BT7 3EU

asking price £205,000
  • Status For Sale
  • Property Type Terrace
  • Bedrooms 2
  • Receptions 1
  • Bathrooms 1
  • Heating Gas
  • EPC Rating G1 / G1 -
  • Stamp Duty
    Higher amount applies when purchasing as buy to let or as an additional property
    £1,600 / £11,850*
  • Typical Mortgage
    Click price to use our mortgage calculator
EPC Rating

Key Features & Description

  • A two-bedroom mid-terrace property located just off the popular Ormeau Road in South Belfast
  • Welcoming entrance hall leading into the main living areas
  • Bright & spacious open-plan living & dining room, suitable for both everyday living & entertaining
  • Modern kitchen with a range of high & low units, built-in appliances & plumbed for white goods
  • Spacious first-floor landing currently used as a home office with additional storage
  • Two well-proportioned double bedrooms
  • Main bathroom fitted with a stylish three-piece suite
  • Front garden laid in shrubs with space to sit, relax & watch the world go by
  • Fully enclosed rear yard providing private outdoor space
  • Convenient location within walking distance of Ormeau Road and Stranmillis, close to cafés, restaurants, parks, universities and transport links to Belfast city centre
  • Excellent transport links to and from Belfast City Centre nearby
  • Description
    A charming two bedroom mid-terrace property located just off the vibrant Ormeau Road in South Belfast. With beautiful original features, generous living space and in a fantastic location, this home has so much to offer it's lucky new owner!

    The property comprises a welcoming entrance hall, a bright and spacious open plan living/dining area benefitting from feature fireplaces and dual aspect windows allowing excellent natural light to fill the space. A modern kitchen with a number of high and low units, built in appliances and plumbed for white goods completes the downstairs. Upstairs comprises an excellent landing area - currently set up as a home office space & fantastic additional storage, two well proportioned double bedrooms and a charming main bathroom complete with a stylish three piece suite.

    Outside, the front garden is laid in shrubs with space to relax and watch the world go by whilst the fully enclosed rear yard provides private outdoor space to enjoy in the warmer months of the year.

    Ideally located just off the vibrant Ormeau Road and is within easy walking distance to Stranmillis, Haywood Avenue has a fantastic range of amenities including bars, cafes, restaurants, universities and parks all within walking distance. Excellent transport links to and from Belfast city centre are nearby and sits within the catchment to a fantastic range of primary and secondary schools in the area.

    Your Next Move...

    Thinking of selling, it would be a pleasure to offer you a FREE VALUATION of your property.

    To arrange a viewing or for further information contact Michael Chandler Estate Agents on 02890 450 550 or email property@michael-chandler.co.uk.

    Rooms

    Hallway 3'2 X 10'4 (0.97m X 3.15m)
    Living & Dining Room 10'3 X 22'1 (3.12m X 6.73m)
    Kitchen 6'10 X 12'11 (2.08m X 3.94m)
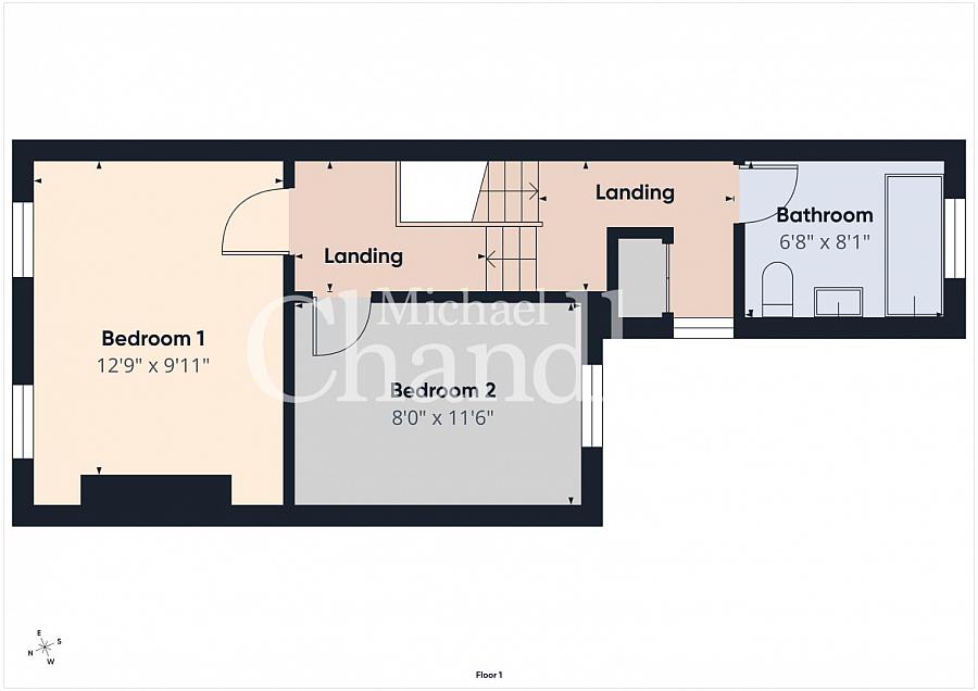
    Landing
    Bedroom 1 12'9 X 9'11 (3.89m X 3.02m)
    Bedroom 2 8'0 X 11'6 (2.44m X 3.51m)
    Bathroom 6'8 X 8'1 (2.03m X 2.46m)
    Michael Chandler Estate Agents have endeavoured to prepare these sales particulars as accurately and reliably as possible for the guidance of intending purchasers or lessees. These particulars are given for general guidance only and do not constitute any part of an offer or contract. The seller and agents do not give any warranty in relation to the property/ site. We would recommend that all information contained in this brochure is verified by yourself or your professional advisors. Services, fittings and equipment referred to in the sales details have not been tested and no warranty is given to their condition. All measurements contained within this brochure are approximate. Site sizes are approximate and have not been verified.
    As an estate agency, we are required to verify the identity of both the vendor and the purchaser in accordance with Money Laundering Regulations 2017. In order to purchase a property in the United Kingdom, all agents have a legal obligation to conduct identity checks on all customers involved in the transaction to comply with Anti-Money Laundering regulations.
    We outsource these checks to a third-party provider and a charge of £20 + VAT per person will apply for this service.

    Virtual Tour

    Broadband Speed Availability

    Ultrafast

    Potential Speeds for 25 Haywood Avenue

    Max Download
    1800
    Mbps
    Max Upload
    220
    Mbps
    The speeds indicated represent the maximum estimated fixed-line speeds as predicted by Ofcom. Please note that these are estimates, and actual service availability and speeds may differ.

    Property Location

    Show Map

    Mortgage Calculator

    Disclaimer: The following calculations act as a guide only, and are based on a typical repayment mortgage model. Financial decisions should not be made based on these calculations and accuracy is not guaranteed. Always seek professional advice before making any financial decisions.

    Contact Agent

    Contact Michael Chandler Estate Agents

    Contact Michael Chandler Estate Agents

    Request More Information
    Requesting Info about...
    25 Haywood Avenue, Ormeau, Belfast, BT7 3EU 25 Haywood Avenue, Ormeau, Belfast, BT7 3EU

    By registering your interest, you acknowledge our Privacy Policy
    Ask Holmes
    Ask Holmes
    Let's find your next home

    Are you sure you want to reset the chat?

    Checking API...