Contact Agent

Contact Templeton Robinson (Lisburn Road)

Contact Templeton Robinson (Lisburn Road)

4 Bed Townhouse

1 Annadale Square

Annadale Avenue, Belfast, BT7 3LT

offers over £275,000
  • Status Sale Agreed
  • Property Type Townhouse
  • Bedrooms 4
  • Receptions 1
  • Heating Gas
  • EPC Rating C73 / B85 -
  • Stamp Duty
    Higher amount applies when purchasing as buy to let or as an additional property
    £3,750 / £17,500*
  • Typical Mortgage
    Click price to use our mortgage calculator
EPC Rating

Key Features & Description

Excellent end townhouse in an highly sought after location just off Annadale Embankment
Bright living room with dining area and feature gas fire
Modern fully fitted kitchen with integrated appliances
Downstairs WC
Four well-proportioned bedrooms; Principal with ensuite shower room
Contemporary family bathroom
Gas heating/Double glazing throughout
Enclosed rear garden with raised patio area and utility room plumbed for washing machine
Driveway parking to the front
Early viewing highly recommended
Description
Fantastic end townhouse that offers modern and spacious accommodation throughout. Situated in a highly desirable location close to Ormeau, Stranmillis and Belfast City Centre. Internally the property consists of a bright living and dining room, leading to a well equipped kitchen with generous storage and integrated appliances. Upstairs, divided between two floor are four well-proportioned bedrooms; Principal with ensuite shower room to complement the contemporary family bathrooms. Additional features include a downstairs WC, gas heating, double glazing throughout, enclosed rear garden with recently paved patio area and utility room plumbed for washing machine. To the front is ample driveway parking. Recent sales have proven to be extremely popular, therefore early viewing is highly recommended.

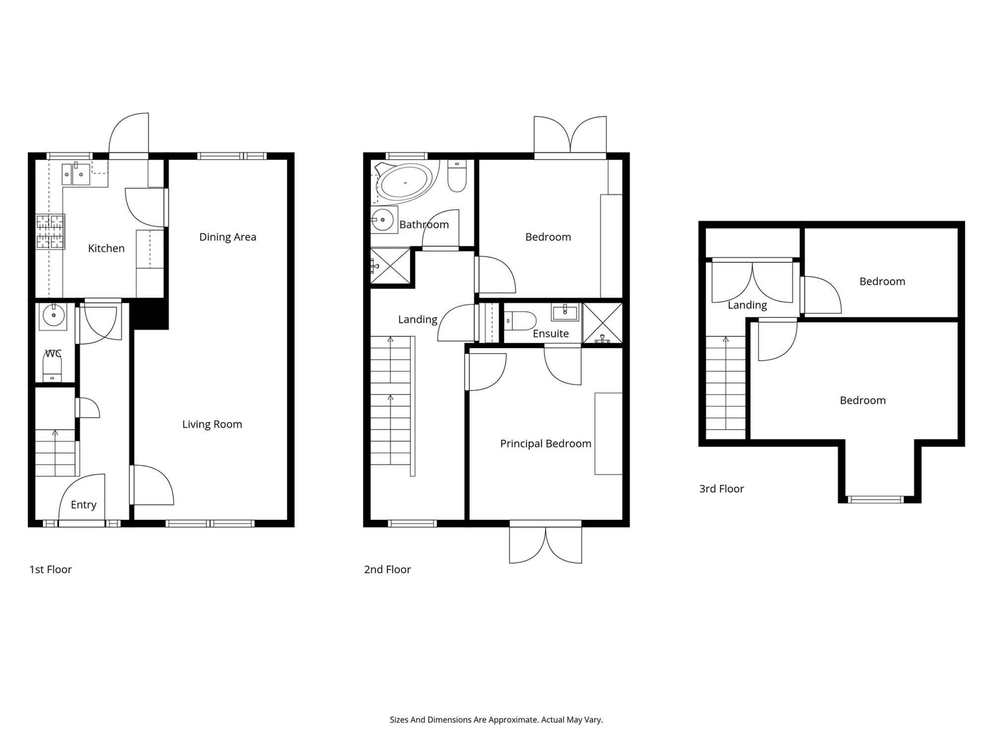
Rooms

HALLWAY: Hardwood front door, tiled flooring.
LIVING/DINING ROOM: 25' 4" X 11' 4" (7.72m X 3.45m) Laminate wood effect flooring, gas fire.
KITCHEN: 10' 1" X 9' 4" (3.07m X 2.84m) Range of high and low level units, built-in oven, gas four ring hob and extractor fan, integrated fridge/freezer and dishwasher, stainless steel sink unit with mixer tap, formica work surfaces, part tiled walls, tiled flooring.
DOWNSTAIRS W.C.: Low flush wc, wall hung wash hand basin, tiled floor, extractor fan.
LANDING: Carpeted, built-in storage.
PRINCIPAL BEDROOM: 12' 5" X 11' 4" (3.78m X 3.45m) Carpeted; double doors onto Juliette balcony.
ENSUITE SHOWER ROOM: Low flush wc, wall hung wash hand basin, walk-in shower, tiled flooring, extractor fan.
BEDROOM (2): 10' 9" X 9' 9" (3.28m X 2.97m) Carpeted, double doors onto Juliette balcony.
BATHROOM: Low flush wc, wall hung wash hand basin, corner bath, walk-in shower cubicle, tiled flooring, part tiled walls, extractor fan.
LANDING: Storage cupboard with boiler and additional storage in eaves.
BEDROOM (3): 14' 9" X 12' 7" (4.50m X 3.66m) Carpeted, storage in eaves.
BEDROOM (4): 11' 2" X 6' 5" (3.40m X 1.83m) Carpeted, Velux window.
Driveway parking to the side.
UTILITY AREA: Plumbed for washing machine, light and power.
ENCLOSED REAR GARDEN: Raised patio area, lawn.

Broadband Speed Availability

Ultrafast

Potential Speeds for 1 Annadale Square

Max Download
1800
Mbps
Max Upload
220
Mbps
The speeds indicated represent the maximum estimated fixed-line speeds as predicted by Ofcom. Please note that these are estimates, and actual service availability and speeds may differ.

Property Location

Show Map

Mortgage Calculator

Disclaimer: The following calculations act as a guide only, and are based on a typical repayment mortgage model. Financial decisions should not be made based on these calculations and accuracy is not guaranteed. Always seek professional advice before making any financial decisions.

Directions

Travelling along Annadale Embankment away from the Ormeau Road take 2nd left after Sunnyside Street into Annadale Drive which continues to Annadale Square.

Contact Agent

Contact Templeton Robinson (Lisburn Road)

Contact Templeton Robinson (Lisburn Road)

Request More Information
Requesting Info about...
1 Annadale Square, Annadale Avenue, Belfast, BT7 3LT 1 Annadale Square, Annadale Avenue, Belfast, BT7 3LT

By registering your interest, you acknowledge our Privacy Policy
Ask Holmes
Ask Holmes
Let's find your next home

Are you sure you want to reset the chat?

Checking API...