Contact Agent
Contact Templeton Robinson (Lisburn Road)
3 Bed Townhouse
12 Beech Heights
Ormeau, Belfast, BT7 3LQ
offers over
£395,000
- Status For Sale
- Property Type Townhouse
- Bedrooms 3
- Receptions 1
- Heating Gas
-
Stamp Duty
Higher amount applies when purchasing as buy to let or as an additional property£9,750 / £29,500*
Key Features & Description
End townhouse positioned at the end of a quiet cul-de-sac
Overlooking attractive open green space with balcony views
Three generously sized bedrooms all with ensuite facilities
Recently reconfigured and modernised throughout
Contemporary kitchen with double doors to spacious private garden
Integral garage and driveway providing off-street parking
uPVC double glazed throughout/ Gas Fired Central Heating
Early viewing highly recommended
Description
Nestled at the end of a quiet cul-de-sac, this beautifully reconfigured and modernised three-bedroom end townhouse offers privacy, space and open green views in a highly desirable BT7 location.
The property enjoys a prime end position overlooking an attractive open green area, creating a bright and airy outlook rarely found in similar homes. Internally, the accommodation has been thoughtfully redesigned to maximise both space and functionality, with a modern finish throughout that is ready for immediate occupation.
The ground floor comprises an integral garage, WC and contemporary kitchen with double doors leading to a spacious private garden. The first floor features a bright living area with balcony enjoying open green views, along with a well-proportioned bedroom and an ensuite. The top floor hosts two generous bedrooms, both benefiting from ensuite facilities.
Externally, the property benefits from a generous private garden â perfect for outdoor dining or simply enjoying the peaceful setting. A driveway provides off-street parking, complemented by an integral garage offering additional storage or secure parking.
With its quiet setting, open aspect views and contemporary upgrades, 12 Beech Heights presents an excellent opportunity for families and first-time buyers alike seeking a move-in ready home in a sought-after residential area.
Nestled at the end of a quiet cul-de-sac, this beautifully reconfigured and modernised three-bedroom end townhouse offers privacy, space and open green views in a highly desirable BT7 location.
The property enjoys a prime end position overlooking an attractive open green area, creating a bright and airy outlook rarely found in similar homes. Internally, the accommodation has been thoughtfully redesigned to maximise both space and functionality, with a modern finish throughout that is ready for immediate occupation.
The ground floor comprises an integral garage, WC and contemporary kitchen with double doors leading to a spacious private garden. The first floor features a bright living area with balcony enjoying open green views, along with a well-proportioned bedroom and an ensuite. The top floor hosts two generous bedrooms, both benefiting from ensuite facilities.
Externally, the property benefits from a generous private garden â perfect for outdoor dining or simply enjoying the peaceful setting. A driveway provides off-street parking, complemented by an integral garage offering additional storage or secure parking.
With its quiet setting, open aspect views and contemporary upgrades, 12 Beech Heights presents an excellent opportunity for families and first-time buyers alike seeking a move-in ready home in a sought-after residential area.
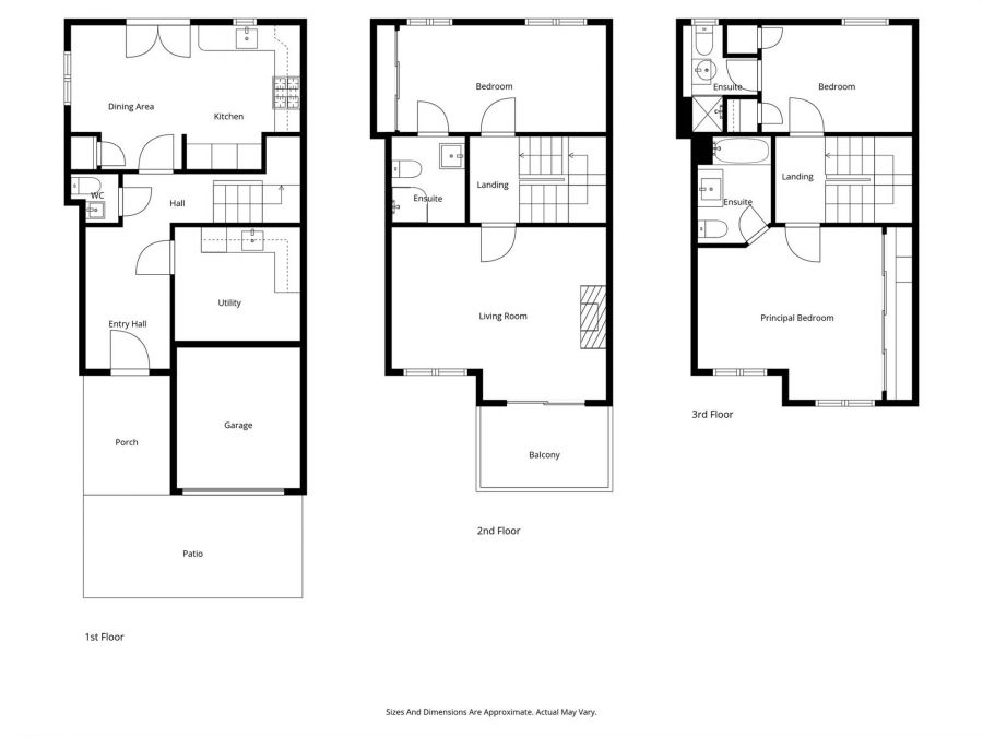
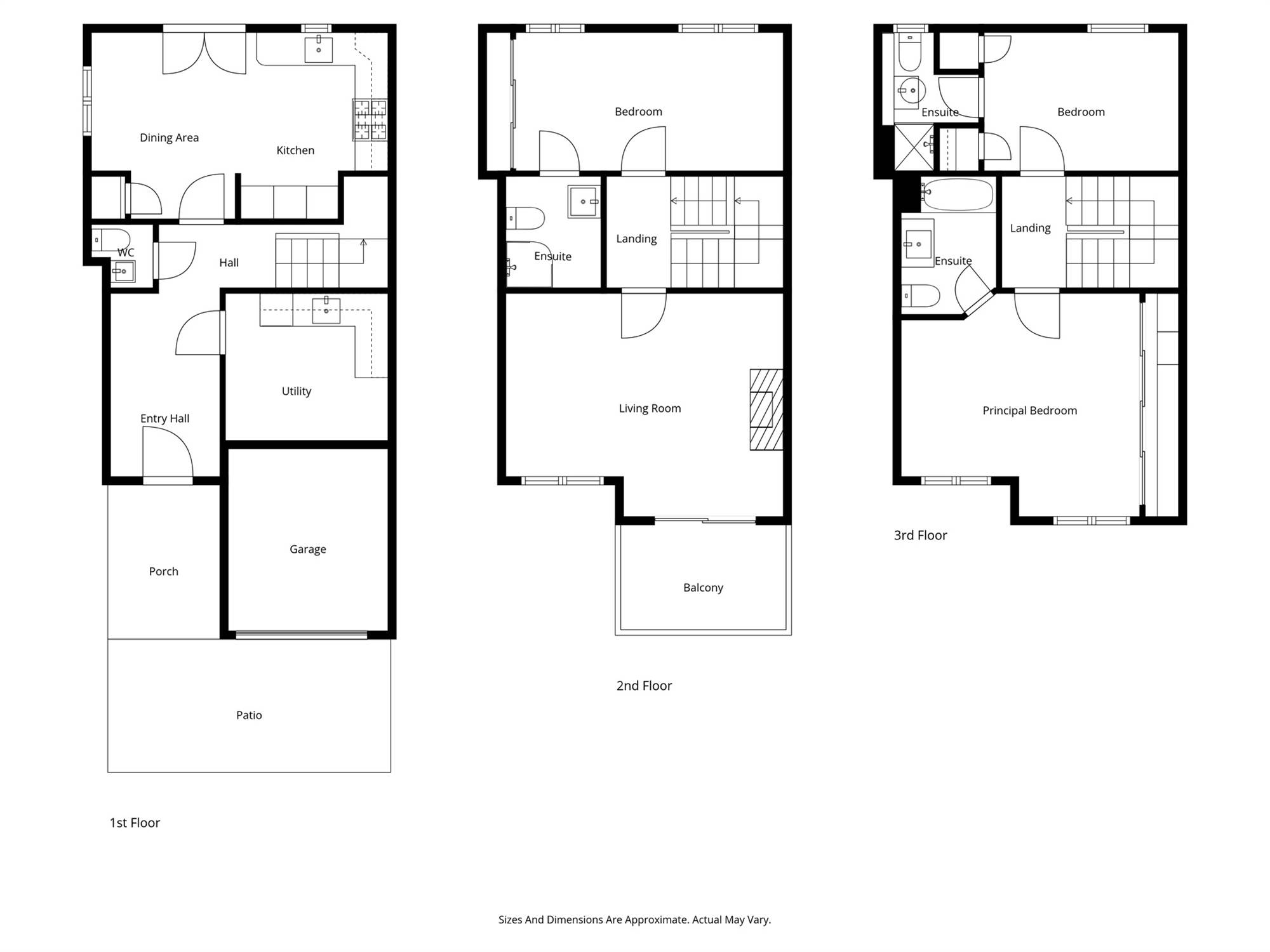
Rooms
Composite front door with glazed inset to...
RECEPTION HALL:
Engineered oak wooden floor, service door to...
INTEGRAL GARAGE: 9' 7" X 8' 7" (2.92m X 2.62m)
Range of low level units, granite worktops, single drainer 1.5 sink unit with mixer tap, plumbed for washing machine.
WC:
White suite comprising low flush WC, floating wash hand basin with chrome mixer tap, chrome heated towel rail, ceramic tiled floor, extractor fan.
KITCHEN/DINING AREA: 18' 5" X 12' 1" (5.61m X 3.68m)
Modern fully fitted kitchen with range of high and low level units, granite worktops, single drainer 1.5 sink unit, Quooker tap, built in integrated 5 ring gas hob, extractor fan above, engineered oak wooden floor, built in double Zanussi oven, fridge/freezer, upvc double glazed french doors to rear garden, dual aspect windows, concealed built in Worcester gas boiler.
LIVING ROOM: 16' 10" X 13' 6" (5.13m X 4.11m)
Timber surround fireplace with granite inset and hearth, gas coal fire, upvc double glazed sliding door to balcony, South facing balcony with mature outlook to front.
BEDROOM (2): 15' 9" X 8' 4" (4.80m X 2.54m)
Built in wall to wall mirror front sliding robes, low voltage spotlighting.
ENSUITE:
White suite comprising low flush WC, pedestal wash hand basin with chrome mixer tap, tiled splash back, built in shower cubicle with built in chrome overhead shower unit, tiled splashback, ceramic tiled floor, low voltage spotlighting, chrome heated towel rail.
LANDING:
BEDROOM (1): 14' 5" X 14' 6" (4.39m X 4.42m)
Wall to wall mirror front sliding robes, mature outlook to front, low voltage spotlighting.
ENSUITE:
White suite comprising vanity unit with chrome mixer tap, low flush WC, panelled bath, shower screen, built in shower unit, fully tiled walls, Velux window, low voltage spotlighting, porcelain tiled floor.
BEDROOM (3): 11' 9" X 8' 6" (3.58m X 2.59m)
Twin built in storage cupboards.
ENSUITE:
White suite comprising low flush WC, floating wash hand basin with chrome mixer tap, shower cubicle with built in shower unit, tiled splash back.
REAR:
Large enclosed rear garden laid in lawns with paved patio area ideal for BBQing and outdoor entertaining, mature aspect.
FRONT:
Paved driveway parking with off-street parking, front garden laid in lawns, mature tree.
£74 per quarter.
Broadband Speed Availability
Potential Speeds for 12 Beech Heights
Max Download
1800
Mbps
Max Upload
220
MbpsThe speeds indicated represent the maximum estimated fixed-line speeds as predicted by Ofcom. Please note that these are estimates, and actual service availability and speeds may differ.
Property Location
Mortgage Calculator
Directions
Annadale Embankment heading towards Ormeau Road, turn left into Wellington Square and turn right at roundabout.
Contact Agent
Contact Templeton Robinson (Lisburn Road)
Request More Information
Requesting Info about...
12 Beech Heights, Ormeau, Belfast, BT7 3LQ
By registering your interest, you acknowledge our Privacy Policy
By registering your interest, you acknowledge our Privacy Policy