Contact Agent
Contact Templeton Robinson (Lisburn Road)
6 Bed End Terrace
54 North Parade
Ormeau, Belfast, BT7 2GG
offers over
£375,000
Key Features & Description
Excellent End Terrace Victorian Property Situated in a Convenient and Highly Sought After Location
Spacious Living Room Opening To Dining Area
Fully Fitted Kitchen With Excellent Range Of High and Low Level Units
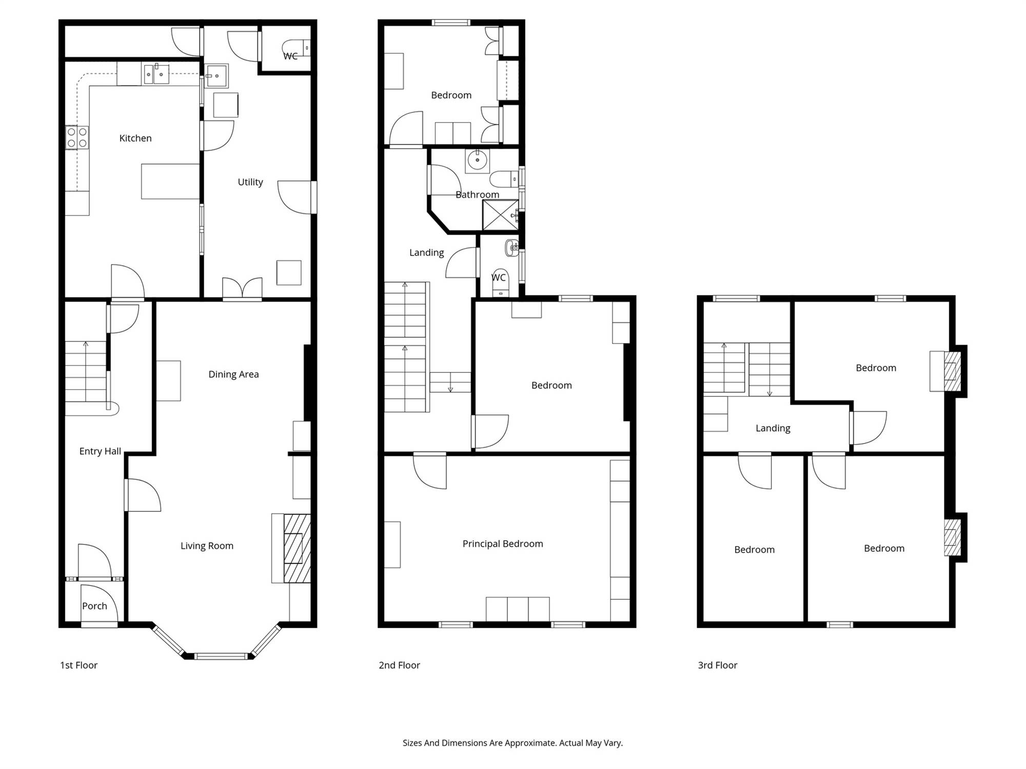
Six Bedrooms (One Of Which Can Be Used As First Floor Living Room)
Family Bathroom with Separate WC
South Facing Front Garden Area and Off Street Car Parking
Oil Fired Central Heating
Ideal For Those Seeking a Property to Add their Own Stamp, Early Viewing Highly Recommended
Description
An excellent extended Victorian end terrace townhouse situated in North Parade and the increasingly popular area of Ormeau in south east Belfast. The property is well situated for those seeking convenient access to the city centre, Queens University and the local hotspots and within walking distance to local schools.
The accommodation is suited for those wanting to add their own stamp. Briefly comprising on the ground floor, an impressive living room with open fire and adjoining dining area, an extended kitchen with an excellent range of high and low level units, utility area and store room to the side with WC facilities. Upstairs on the first-floor return is a double bedroom including the family bathroom and separate WC, additionally there are five other well-proportioned bedrooms divided between the first and second floors.
In addition, the property benefits from oil fired central heating, part uPVC framed double glazed windows, south facing front garden, off street car parking and an overall internal character and ambiance that will have wide ranging appeal. Early viewing is highly recommended.
An excellent extended Victorian end terrace townhouse situated in North Parade and the increasingly popular area of Ormeau in south east Belfast. The property is well situated for those seeking convenient access to the city centre, Queens University and the local hotspots and within walking distance to local schools.
The accommodation is suited for those wanting to add their own stamp. Briefly comprising on the ground floor, an impressive living room with open fire and adjoining dining area, an extended kitchen with an excellent range of high and low level units, utility area and store room to the side with WC facilities. Upstairs on the first-floor return is a double bedroom including the family bathroom and separate WC, additionally there are five other well-proportioned bedrooms divided between the first and second floors.
In addition, the property benefits from oil fired central heating, part uPVC framed double glazed windows, south facing front garden, off street car parking and an overall internal character and ambiance that will have wide ranging appeal. Early viewing is highly recommended.
Rooms
Glazed hardwood front door to:
RECEPTION PORCH:
Ceramic tiled floor. Stained glass inner door and side light, glazed toplight, cornice ceiling, picture rail to:
RECEPTION HALL:
Ceramic tiled floor, cornice ceiling. Storage under stairs.
LIVING ROOM: 28' 6" X 12' 6" (8.69m X 3.81m)
(measurements into bay window). Dual aspect windows. Cornice ceiling, picture rail. Original slate surround fireplace with cast iron and tiled inset, tiled hearth, open fire.
KITCHEN: 19' 4" X 11' 0" (5.89m X 3.35m)
Modern oak fully fitted kitchen with range of high and low level units, Corian worktops, stainless steel single drainer sink and a half sink unit with mixer taps, integrated dishwasher, built-in oven, four ring ceramic hob, extractor fan above, integrated fridge and freezer. Part tiled walls, ceramic tiled floor, tongue and groove ceiling. Open to breakfast bar with Corian worktops. Glazed access door to side lean to.
UTILITY ROOM: 22' 6" X 8' 1" (6.86m X 2.46m)
Ceramic tiled floor, wash hand basin, plumbed for washing machine. Oil fired boiler, low flush wc. Access to garden.
Exposed wooden floor.
SHOWER ROOM:
White suite comprising low flush wc, floating wash hand basin, PVC panelled splashback, chrome heated towel rail, built-in shower cubicle with Triton electric shower unit, PVC panelled splashback. Hatch to roofspace, extractor fan.
ADDITIONAL SEPARATE WC:
White suite comprising low flush wc, bidet, chrome mixer taps, part tiled walls.
BEDROOM (4): 10' 8" X 10' 4" (3.25m X 3.15m)
Built-in wardrobes and cupboards.
LANDING:
BEDROOM (1): 17' 3" X 13' 1" (5.26m X 3.99m)
Exposed wooden floor, picture rail, cornice ceiling. Extensive wall-to wall built-in wardrobes and cupboards.
BEDROOM (2): 12' 6" X 11' 10" (3.81m X 3.61m)
Laminate wooden floor, picture rail, cornice ceiling. Mature outlook.
LANDING:
BEDROOM (3): 13' 1" X 7' 1" (3.99m X 2.16m)
BEDROOM (5): 12' 9" X 11' 4" (3.89m X 3.45m)
Cast iron fireplace. Pedestal wash hand basin, tiled splashback.
BEDROOM (6): 12' 5" X 12' 0" (3.78m X 3.66m)
Cast iron fireplace. Exposed wooden floor.
Large corner site laid in loose stones, boundary hedging, mature aspect, oil PVC storage tank. Off-street parking accessed via timber gates to rear of property. Garden shed. Front garden laid in lawn with flowerbeds and shrubs.
Broadband Speed Availability
Potential Speeds for 54 North Parade
Max Download
1800
Mbps
Max Upload
220
MbpsThe speeds indicated represent the maximum estimated fixed-line speeds as predicted by Ofcom. Please note that these are estimates, and actual service availability and speeds may differ.
Property Location
Mortgage Calculator
Directions
Travelling along the Ormeau Road heading out of town take the first left opposite the Ormeau Bakery and number 54 is on the left hand side.
Contact Agent
Contact Templeton Robinson (Lisburn Road)
Request More Information
Requesting Info about...
54 North Parade, Ormeau, Belfast, BT7 2GG
By registering your interest, you acknowledge our Privacy Policy
By registering your interest, you acknowledge our Privacy Policy